Skip to content

Breda – Cosunpark 2D

Verkocht

Cosunpark 4

4814 ND Breda

Omschrijving

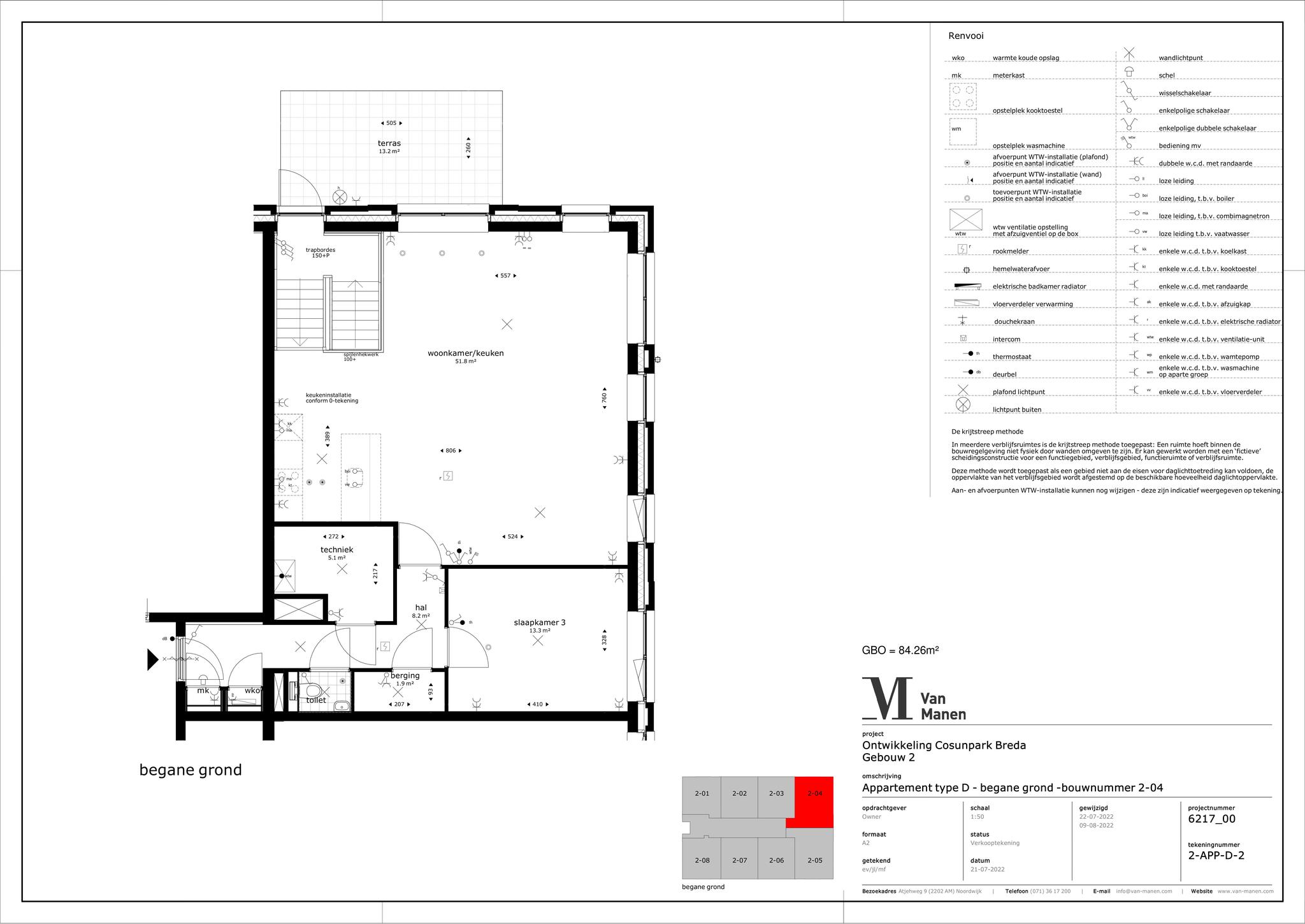
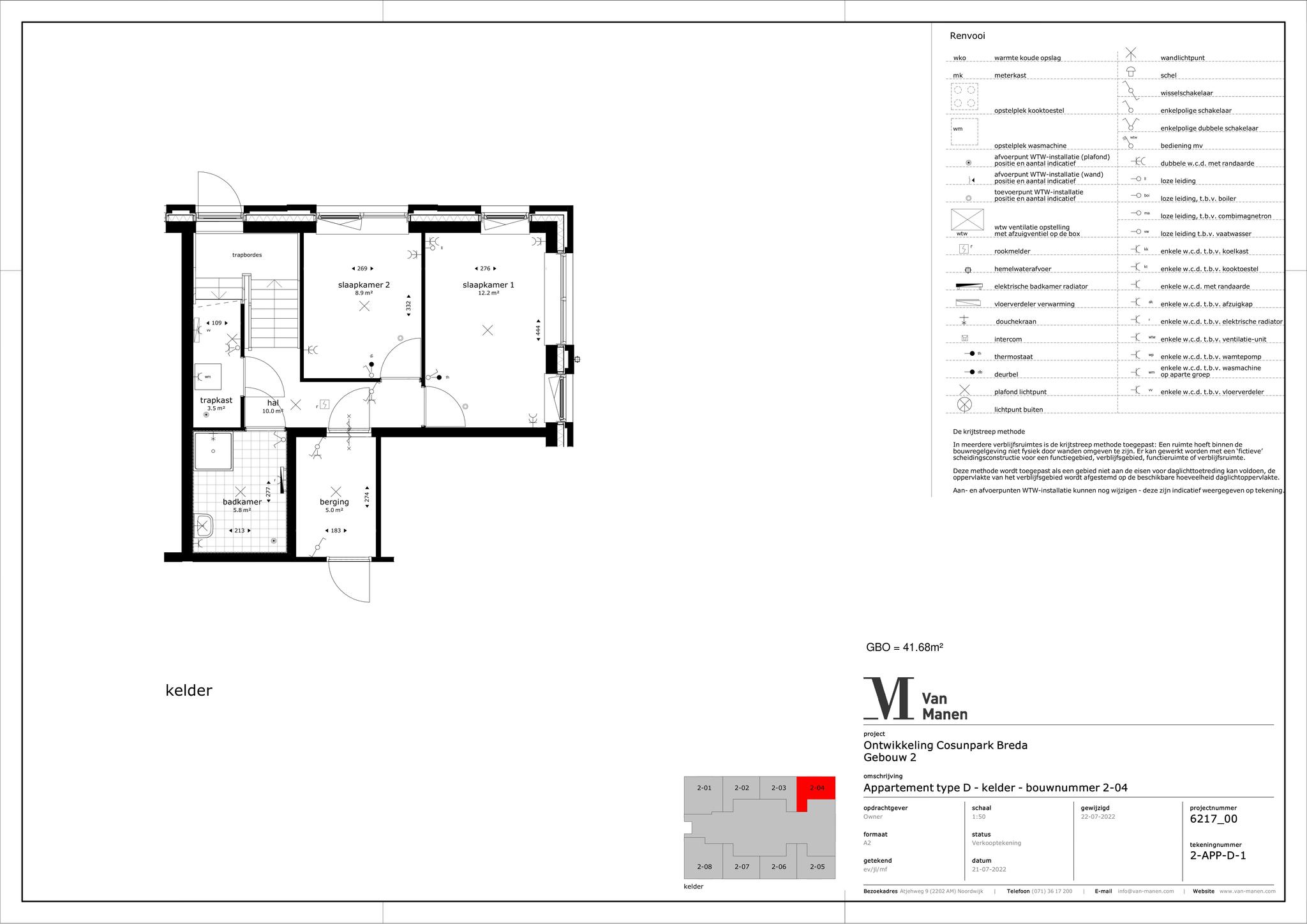
Cosun II biedt plaats aan 33 luxe koopappartementen verdeeld over 5 woonlagen. De woonoppervlaktes variëren van ca. 70 tot ca. 158 m². Alle woningen beschikken over royale buitenruimtes in de vorm van tuin, balkon of dakterras.

Cosun II heeft 3 hoofdwoningtypen, namelijk stadswoningen, appartementen met balkon en penthouses met balkon en dakterras.

Kenmerken:
• Ondergrondse private parkeerplaatsen
• Groene parksetting voor de deur
• Dichtbij binnenstad en uitvalswegen
• Aandacht voor duurzaamheid

STADSWONING MET TUIN
Deze stadswoning geven je de ruimte om comfortabel te wonen. Met een woonoppervlakte van ca. 125 m² een woonkamer met veel lichtinval en drie slaapkamers. Je vindt hier alles wat je nodig hebt om prettig te wonen.

• Gesitueerd op de begane grond en souterrain
• Royale woonoppervlakte van ca. 125 m²
• Met een tuin van ca. 14 m²
• Hoogwaardige afwerking inclusief luxe badkamer

INTERESSE
Wil je graag meer informatie over dit project? Bezoek dan de projectwebsite. Bij interesse in één van de appartementen/stadswoningen kun je contact opnemen met ons kantoor in Breda of laat je gegevens achter via de projectwebsite en geef de bouwnummers van je voorkeur op via "mijn omgeving".

Kenmerken

  • StatusVerkocht
  • Soort objectAppartement
  • Bouwjaar2023
  • Bouwjaar periodeVANAF_2021_TM_2030
  • BouwvormNieuwbouw
  • LiggingenAan park

Interesse in Cosunpark

"*" geeft vereiste velden aan

Vestiging Breda

Keizerstraat 91 - 93

4811 HL Breda

(076) 5 24 24 00