Skip to content

Tilburg – Paterstraat 18

Verkocht

Paterstraat 18

Tilburg

Omschrijving

In de wijk Sint Anna – op loopafstand van het bruisende stadscentrum – bieden wij u deze goed onderhouden, recent gemoderniseerde en instapklare middenwoning aan.

De woning is eind 2022 verbouwd en gemoderniseerd, met onder andere een nieuwe keukeninrichting, luxe badkamer, nieuwe bedrading, meterkast, schakelmateriaal, c.v. ketel en dergelijke.
De woning straalt nog wel charme uit door de prachtige glas in lood raampartijen. Een erg complete en instapklare woning dus!

De woning is voorzien van een groen energielabel C! Na het opstellen van het energielabel zijn de plafonds geïsoleerd, is er een nieuwe c.v. combi ketel geplaatst, de beglazing gedeeltelijk vernieuwd en zijn er 6 zonnepanelen geplaatst.

De woning is op een rustige, maar centrale locatie op loopafstand van het stadscentrum gelegen. Alle winkelvoorzieningen en onder andere het Stadspark, de Schouwburg, bioscoop en het Pieter Vreedeplein liggen nabij. Daarnaast zijn het Centraal Station en diverse uitvalswegen snel en makkelijk te bereiken.

Bouwjaar: ca. 1905
Inhoud: ca. 296m³
Perceeloppervlakte: 89m²
Aanvaarding: in onderling overleg

Indeling

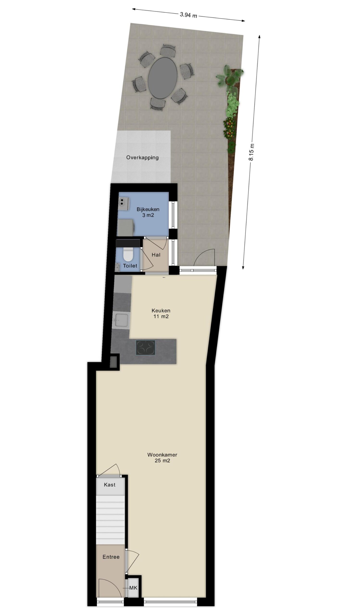
Begane grond
Entree, hal met vernieuwde voordeur, glas in lood raam en een vernieuwde en uitgebreide meterkast (2022).

De hal geeft toegang tot de woonkamer en trapopgang naar de eerste verdieping.

De uitermate sfeervolle en uitgebouwde woonkamer circa 36m² (inclusief keuken) is voorzien van een laminaatvloer, strak stucwerk wandafwerking en een wand met schoon metselwerk, balken plafond en een kelderkast. Aan de voorzijde zijn prachtige glas in lood raampartijen aanwezig.

Aangebouwde en ruime open keuken met deur naar de achtertuin en een lichtkoepel, die voor extra en een prettige lichtinval zorgt. De moderne keukeninrichting (2022) in hoekopstelling is voorzien van een granieten blad, quooker, inductie kookplaat met geïntegreerde afzuiging (BORA), koel-/ vriescombinatie, oven en een vaatwasser.

Een schuifdeur geeft toegang tot een achtergelegen portaal met een moderne toiletruimte voorzien van een vrij hangend toilet met fontein en een vaste kast met de c.v. combi ketel (Remeha Avanta Ace, 2022) en de aansluitingen voor de wasapparatuur.

Eerste verdieping
Overloop met laminaatvloer en strak stucwerk wandafwerking. De overloop geeft toegang tot twee slaapkamers en de badkamer.

Voorslaapkamer circa 13m² met dakkapel en een achterslaapkamer circa 7m². Beide slaapkamers zijn voorzien van een laminaatvloer en strak stucwerk wandafwerking.

Moderne en luxe badkamer (2022) voorzien van twee waskommen met meubel, inloopdouche met regendouche en thermostaatkraan, vrij hangend toilet en een design radiator. In de badkamer zijn daarnaast een dakkapel, elektrische vloerverwarming en strak stucwerk plafondafwerking aanwezig.

Tweede verdieping
Middels een vlizotrap te bereiken bergzolder.

Buiten
Gezellige stadstuin op het oosten. De achtertuin is bestraat, voorzien van een overkapping voor de fietsen en een achterom.

Algemeen
- Eind 2022 gemoderniseerde geschakelde woning.
- Prachtig afgewerkt en instap klaar.
- Fraaie glas in lood raampartijen.
- 6 zonnepanelen (2023).
- De woning is voorzien van dubbele beglazing en het schuine dak is geïsoleerd.
- De woning is op de eerste verdieping voorzien van kunststof kozijnen (waarvan een deel in 2025 is vernieuwd).
- Centrale ligging op loop- en fietsafstand van het stadscentrum.
- Gezien de leeftijd van de woning zal er bij verkoop onder andere een ouderdomsclausule en een asbestclausule worden opgenomen.
- Bij een verkoop wordt als basis gebruik gemaakt van het model van de koopovereenkomst, vastgesteld door de Nederlandse Vereniging van Makelaars in onroerende goederen NVM, de Consumentenbond en de Vereniging Eigen Huis. In deze koopovereenkomst wordt standaard de verplichting tot het storten van een waarborgsom of het stellen van een bankgarantie door de koper ter grootte van 10% van de koopsom opgenomen.
- Een koopovereenkomst komt tot stand onder de opschortende voorwaarde dat beide partijen de koopovereenkomst ondertekenen. Partijen kunnen derhalve noch aan een mondelinge overeenkomst, noch aan een schriftelijke bevestiging daarvan, rechten ontlenen.
- Deze brochure bestaat uit vrijblijvende informatie en is met de grootste zorg samengesteld, echter aan de inhoud van deze brochure kunnen geen rechten worden ontleend. Indelingstekeningen en maatvoeringen zijn slechts indicatief, kunnen afwijken van de werkelijke situatie en zijn uitsluitend bedoeld om een indruk te geven van de indeling.

Kenmerken

  • StatusVerkocht
  • Soort objectWoonhuis
  • Soort woningEengezinswoning
  • Type woningGeschakelde woning
  • Bouwjaar1905
  • Bouwjaar toelichtingeind 2022 gemoderniseerd
  • BouwvormBestaande bouw
  • LiggingenAan rustige weg, In centrum, In woonwijk

Interesse in Paterstraat 18?

Laat hieronder uw gegevens achter en onze makelaar zal contact met u opnemen. Wilt u niet wachten? Neem dan telefonisch contact op!

"*" geeft vereiste velden aan

Paul Hulskes

Makelaar RM

Aangepaste openingstijden

Tijdens eerste kerstdag, tweede kerstdag en Nieuwjaarsdag zijn wij gesloten. Daarnaast zijn wij ook woensdagmiddag 24 december vanaf 12:30 uur en 31 december de hele dag gesloten. Daar buiten staan wij voor u klaar zoals u van ons gewend bent.

Fijne feestdagen! 

Team Van de Water