Skip to content

Breda – Zilvervlek 23

Nieuw

Zilvervlek 23

Breda

Omschrijving

Welkom in dit comfortabele familiehuis aan de Zilvervlek 23 te Breda. Deze zonnige villa is op de begane grond met een extra woon/slaapkamer en een eigen badkamer ook zeer geschikt voor dubbele bewoning met een separate ingang. Ook bevindt zich er een inpandig zwembad met jet-stream en een sauna.
1e verdieping: 4 royale slaapkamers en 2 luxe badkamers.
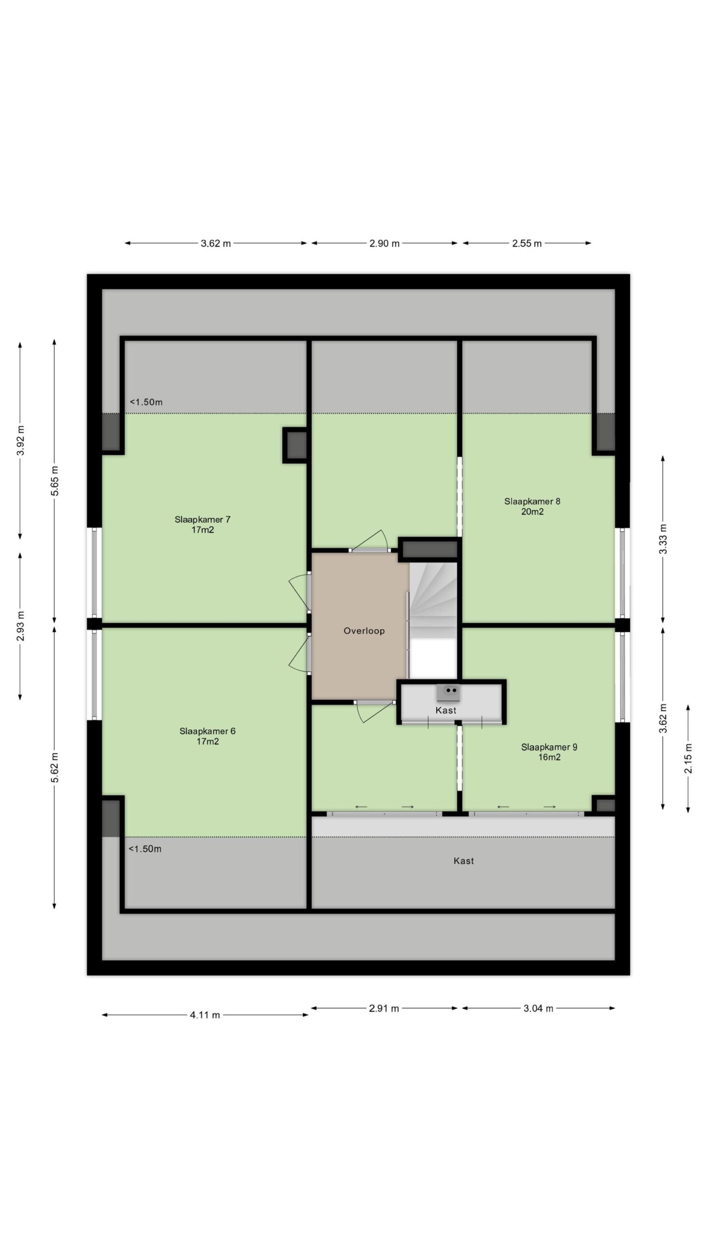
2e verdieping: 3 royale slaapkamers en multifunctionele ruimte.

Deze ruime villa is uitermate geschikt voor meerdere doeleinden, zoals groot gezin, kangoeroewoning (dubbele bewoning), praktijk aan huis.
Aan een rustige straat met vrijstaande villa's in de gewilde woonwijk "Westerpark" gelegen, verrassend royale, onder fraaie architectuur en tevens uitstekend onderhouden vrijstaande villa met een fraai aangelegde, volop privacy biedende achtertuin van ruim 400 m² op het zuidwesten gelegen.

In de periode 2021 tot heden is deze riante villa als volgt gerenoveerd:
-Drie compleet nieuwe badkamers geplaatst.
-Keuken en de bijkeuken voorzien van een nieuwe keukeninrichting.
-Nieuwe CV-combiketel geplaatst.
-Binnen en buiten compleet opnieuw geschilderd.
-18 zonnepanelen en een aan het CV systeem gekoppelde warmtepomp geplaatst.

Deze royale instapklare vrijstaande villa is gunstig gesitueerd ten opzichte van speel-/ sportaccommodaties, scholen, winkelcentra, woonboulevard, het Liesbos, het Mastbos, openbaar vervoer en diverse uitvalswegen voor woon- werk-verkeer. De gezellige Haagse markt van Princenhage en het bourgondische stadscentrum van Breda zijn tevens op korte afstand van deze woning gesitueerd. De verbindingen ten opzichte van de uitvalswegen (A16, A27 en A59) zijn uitstekend.

Bouwjaar: ca. 1997
Perceel oppervlakte: 803 m²
Inhoud: ca. 1500 m³
Woonoppervlakte: ca. 384 m²
Gebruiksoppervlak overige inpandige ruimte: ca. 26 m²
Aanvaarding: in onderling overleg

Begane grond:
Entree/portaal met meterkast; centrale hal met garderobenis, toilet met wandcloset en fonteintje, trapopgang naar de eerste verdieping en een glazen schuifpui naar de royale woonkamer (ca. 50 m²) en een deur naar de woonkeuken.

De woonkamer is voorzien van een Robijn houten vloer, schouw met houtkachel, openslaande deuren naar een volop privacy biedend terras in de zijtuin. Deze woonkamer staat in open verbinding met een royale serre met openslaande deuren naar de achtertuin.

Woonkeuken (ca. 20 m²) met houtkachel en een moderne U-vormige inrichting voorzien van fornuis met 4 pitten en een wokbrander en drie ovens, afzuigkap, koelkast, vaatwasser en een Quooker kraan. Vanuit de keuken toegang tot een praktische bijkeuken (ca. 13 m²) met een keukeninrichting voorzien van een combi magnetron/grill en aansluitingen ten behoeve van de wasapparatuur.

Vanuit de keuken en de bijkeuken tevens toegang tot een woon/slaapkamer (ca. 20 m²) met een glazen schuifpui naar de serre en openslaande deuren naar de achtertuin. Deze woon/slaapkamer met eigen ingang heeft een eigen badkamer (ca. 8 m²) met ligbad voorzien van whirlpool, inloopdouche, wastafel en wandcloset.

Inpandig zwembad voorzien van jet-stream, vier maal openslaande deuren naar de achtertuin en toegang tot een sauna.

De eerder vernoemde bijkeuken geeft ook toegang tot een inpandige garage (ca. 26 m²) met voldoende ruimte voor het parkeren van een auto en meerdere fietsen. Deze garage is voorzien van een kantel garagedeur. Deze garage heeft tevens een separate zij-ingang.

De gehele begane grond is zonder drempels en met extra brede deuren.

Eerste verdieping:
Riante overloop met vaste kast en trapopgang naar de tweede verdieping; een master bedroom (ca. 38 m²) met een slaapkamer, dressing en een luxe, geheel betegelde badkamer met ligbad, inloopdouche, wandcloset en twee wastafels in meubel; drie slaapkamers van respectievelijk (ca. 16, 13, en 16 m²) en een geheel betegelde tweede badkamer (ca. 7 m²) met inloopdouche, wandcloset en twee wastafels in meubel.

Tweede verdieping:
Overloop; drie slaapkamers van respectievelijk (ca. 17, 20, en 17 m²); multifunctionele ruimte (ca. 16 m²) met vaste kast voorzien van opstelling technische installaties en vier schuifdeuren met daarachter veel bergruimte.

Tuin:
Volop privacy biedende achtertuin gelegen op het zuidwesten met groen borders, diverse ruime terrassen met sierbestrating, grasveld, tuinhuis met een schuifdeur en een achterom.

Parkeren:
Voor de garage is een eigen brede oprit aanwezig waar 2 auto's naast elkaar geparkeerd kunnen worden.

Algemeen:
- Bij een verkoop wordt als basis gebruik gemaakt van het model van de koopovereenkomst, vastgesteld door de Nederlandse Vereniging van Makelaars in onroerende goederen NVM, de Consumentenbond en de Vereniging Eigen Huis. In deze koopovereenkomst wordt standaard de verplichting tot het storten van een waarborgsom of het stellen van een bankgarantie door de koper ter grootte van 10% van de koopsom opgenomen.
- Een koopovereenkomst komt tot stand onder de opschortende voorwaarde dat beide partijen de koopovereenkomst ondertekenen. Partijen kunnen derhalve noch aan een mondelinge overeenkomst, noch aan een schriftelijke bevestiging daarvan, rechten ontlenen.
- Deze vrijblijvende informatie is met de grootste zorg samengesteld, echter aan de inhoud hiervan kunnen geen rechten worden ontleend. Indelingstekeningen en maatvoeringen zijn slechts indicatief, kunnen afwijken van de werkelijke situatie en zijn uitsluitend bedoeld om een indruk te geven van de indeling.

Kenmerken

  • StatusBeschikbaar
  • Vraagprijs€ 1.345.000,- k.k.
  • Soort objectWoonhuis
  • Soort woningVilla
  • Type woningVrijstaande woning
  • Bouwjaar1996
  • BouwvormBestaande bouw
  • LiggingenAan rustige weg, In woonwijk, Beschutte ligging

Interesse in Zilvervlek 23?

Laat hieronder uw gegevens achter en onze makelaar zal contact met u opnemen. Wilt u niet wachten? Neem dan telefonisch contact op!

"*" geeft vereiste velden aan

Henk Lodewikus

Makelaar RM

Aangepaste openingstijden

Tijdens eerste kerstdag, tweede kerstdag en Nieuwjaarsdag zijn wij gesloten. Daarnaast zijn wij ook woensdagmiddag 24 december vanaf 12:30 uur en 31 december de hele dag gesloten. Daar buiten staan wij voor u klaar zoals u van ons gewend bent.

Fijne feestdagen! 

Team Van de Water