Skip to content

Tilburg – Paduaplein 8

Omschrijving

Op een uitermate centrale locatie – aan de voorzijde vrij gelegen aan een plein met speeltoestellen én op fiets- en wandelafstand van het stadscentrum – bieden wij u deze ruim opgezette en uitgebouwde middenwoning met vrijstaande stenen garage aan.

De woning is grotendeels voorzien van onderhoudsvriendelijke kunststof kozijnen met dubbele beglazing.

De woning is op de begane grond uitgebouwd en onder andere voorzien van een ruime woonkamer met open keuken, een werk-/ slaapkamer die bij de woonkamer betrokken kan worden en een praktische bijkeuken. Op de eerste verdieping zijn twee grote slaapkamers (voorheen drie slaapkamers) en de badkamer aanwezig. De tweede verdieping biedt ruimte aan een derde slaapkamer. De achtertuin ligt op het zonnige westen en heeft naast een achterom een stenen berging en een stenen garage.

De ligging van de woning is ideaal: het ligt op loopafstand van het Besterdplein met diverse winkelvoorzieningen, het Centraal Station en de populaire Spoorzone. Het stadscentrum met al zijn (winkel)voorzieningen ligt nabij. Op zo’n 450 meter afstand is een basisschool en kinderopvang gelegen en voor de deur een groen plein met diverse speeltoestellen. Een korte wandeling brengt je in het Spoorpark. Diverse sportgelegenheden en wandelmogelijkheden in Moerenburg liggen tevens nabij. Diverse uitvalswegen zijn via de Ringbanen makkelijk te bereiken.

Bouwjaar: ca. 1926
Inhoud: ca. 430m³
Perceeloppervlakte: 137m²
Aanvaarding: in onderling overleg

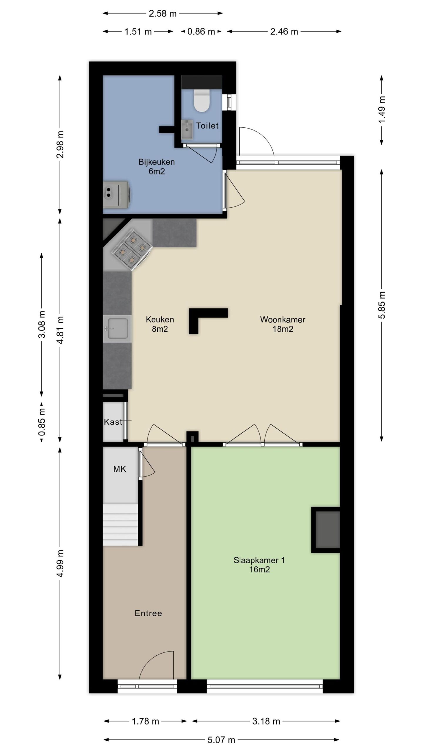
Begane grond
Entree, hal met tegelvloer en een trapkast met meterkast.

De hal geeft toegang tot de keuken/ woonkamer en trapopgang naar de eerste verdieping.

Aan de achterzijde van de woning gelegen woonkamer circa 26m² (inclusief keuken) met tegelvloer.

Open keuken met tegelvoer en een nette, doch eenvoudige keukeninrichting in hoekopstelling voorzien van een elektrische kookplaat, afzuigschouw en een oven. In de keuken is daarnaast een vaste kast aanwezig.

De woonkamer is op dit moment gesplitst met aan de voorzijde een werk-/ slaapkamer circa 16m². Als deze ruimte bij de woonkamer met open keuken wordt betrokken dan ontstaat er een totale leefruimte van maar liefst circa 42m².

Praktische bijkeuken met de aansluitingen voor de wasapparatuur en de c.v. combi ketel (Remeha Avanta).

Gedeeltelijk betegelde toiletruimte voorzien van een vrij hangend toilet met fontein.

Eerste verdieping
Overloop met laminaatvloer en die toegang geeft tot twee grote slaapkamers (voorheen drie slaapkamers) en de badkamer.

Voorslaapkamer circa 14m² (voorheen twee slaapkamers) en een achterslaapkamer circa 11m² met trapkast. Beide slaapkamers zijn voorzien van een laminaatvloer.

Licht betegelde badkamer voorzien van dubbele vaste wastafel met meubel, douche met thermostaatkraan en een 2e toilet.

Tweede verdieping
Via een vaste trap is de tweede verdieping te bereiken.

Zolderslaapkamer circa 11m² met laminaatvloer, twee dakramen en bergruimte onder de dakschuinte.

Buiten
Achtertuin op het zonnige westen. De achtertuin is bestraat, voorzien van een stenen berging, afgesloten overkapping en een achterom. Vanuit de tuin is er tevens toegang tot de garage.

Vrijstaande stenen garage circa 15m² met kanteldeur.

Algemeen
- Ruime middenwoning met vrijstaande stenen garage.
- Erg centraal en nabij het bruisende stadscentrum gelegen.
- De woning is grotendeels voorzien van kunststof kozijnen met dubbele beglazing.
- Bij verkoop zal er een niet zelfbewoningsclausule worden opgenomen, aangezien de verkoper de woning zelf niet bewoond heeft.
- Gezien de leeftijd van de woning zullen er daarnaast aanvullende clausules worden opgenomen. Voor vragen neem contact op met de makelaar.
- Bij een verkoop wordt als basis gebruik gemaakt van het model van de koopovereenkomst, vastgesteld door de Nederlandse Vereniging van Makelaars in onroerende goederen NVM, de Consumentenbond en de Vereniging Eigen Huis. In deze koopovereenkomst wordt standaard de verplichting tot het storten van een waarborgsom of het stellen van een bankgarantie door de koper ter grootte van 10% van de koopsom opgenomen.
- Een koopovereenkomst komt tot stand onder de opschortende voorwaarde dat beide partijen de koopovereenkomst ondertekenen. Partijen kunnen derhalve noch aan een mondelinge overeenkomst, noch aan een schriftelijke bevestiging daarvan, rechten ontlenen.
- Deze brochure bestaat uit vrijblijvende informatie en is met de grootste zorg samengesteld, echter aan de inhoud van deze brochure kunnen geen rechten worden ontleend. Indelingstekeningen en maatvoeringen zijn slechts indicatief, kunnen afwijken van de werkelijke situatie en zijn uitsluitend bedoeld om een indruk te geven van de indeling.

Kenmerken

  • StatusBeschikbaar
  • Vraagprijs€ 375.000,- k.k.
  • Soort objectWoonhuis
  • Soort woningEengezinswoning
  • Type woningTussenwoning
  • Bouwjaar1926
  • BouwvormBestaande bouw
  • LiggingenAan rustige weg, In centrum, In woonwijk

Interesse in Paduaplein 8?

Laat hieronder uw gegevens achter en onze makelaar zal contact met u opnemen. Wilt u niet wachten? Neem dan telefonisch contact op!

"*" geeft vereiste velden aan

Paul Hulskes

Makelaar RM

Aangepaste openingstijden

Tijdens eerste kerstdag, tweede kerstdag en Nieuwjaarsdag zijn wij gesloten. Daarnaast zijn wij ook woensdagmiddag 24 december vanaf 12:30 uur en 31 december de hele dag gesloten. Daar buiten staan wij voor u klaar zoals u van ons gewend bent.

Fijne feestdagen! 

Team Van de Water