Skip to content

Oosterhout – Talmastraat 7

Verkocht o.v.

Talmastraat 7

Oosterhout

Omschrijving

Aan rustige kindvriendelijke straat, in de gewilde 'Staatsliedenbuurt' in de wijk 'Dommelbergen-Noord' gelegen, zeer goed onderhouden helft van een geschakelde twee-onder-een-kapwoning met aanpandige garage (ca. 20m²), eigen oprit en een heerlijke tuin. De woning is compleet geïsoleerd en beschikt over een 8-tal zonnepanelen.

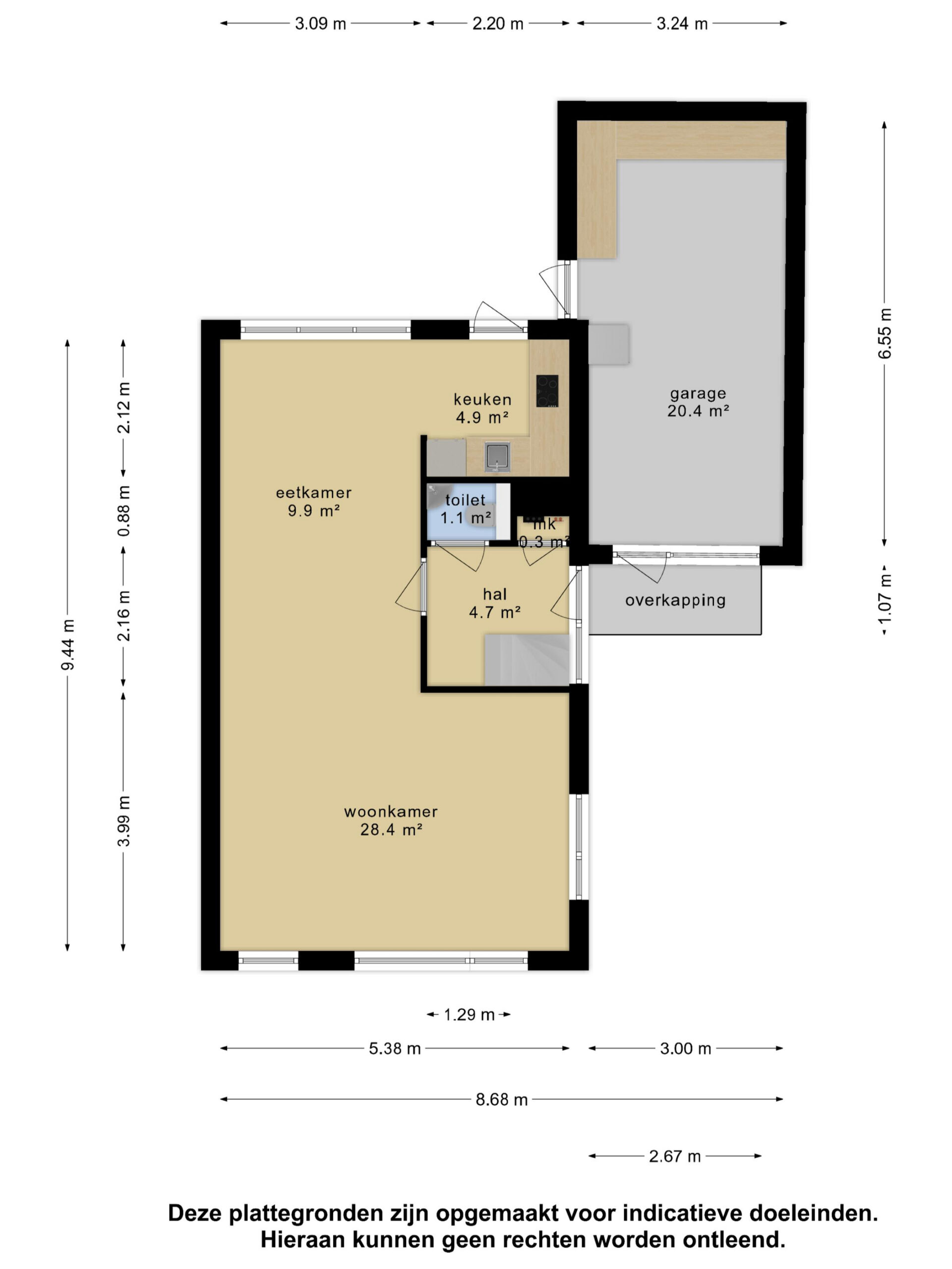
Indeling:

Begane grond:
Zij/entree, hal met parketvloer, meterkast, licht betegelde toiletruimte met vrij hangend closet en een hoekfonteintje. In de hal bevindt zich ook de trapopgang naar de eerste verdieping.
Ruime en lichte living (ca. 43m²) met parketvloer en half-open keuken aan de achterzijde. De half-open keuken is voorzien van een keukeninrichting in hoekopstelling en ingericht met diverse kastruimte en de navolgende inbouwapparatuur te weten: inductie-kookplaat, afzuigkap, combi oven/magnetron en een koelkast. Vanuit de keuken is er middels een loopdeur toegang tot de tuin.

Eerste verdieping:
Overloop met vaste trap naar de tweede verdieping en toegang tot de drie slaapkamers en de ruime badkamer.
Hoofd/achterslaapkamer (ca. 4,23x3,17m), eveneens zeer ruime tweepersoons slaapkamer (ca. 3,99x3,09m) aan de voorzijde en een derde, eveneens aan de voorzijde gesitueerde slaapkamer (ca. 3,99x2,18m) met een vaste kast.
De grote licht betegelde badkamer is ingericht met een inloopdouche, wastafel in wastafelmeubel met kastruimte en een tweede toilet. In de badkamer bevindt zich een zeer praktische afsluitbare ruimte waar de wasapparatuur geheel uit het zicht staat opgesteld.

Tweede verdieping:
Mooie en ruime open zolder met de mogelijkheid voor het creëren van een 4e slaapkamer. Deze ruimte is voorzien van groot dakraam en een gevelraam. Er is toegang tot de afgesloten cv-ruimte met opstelplaats van de Remeha HR CW4 ketel (2022) en middels knieschotten tot een afsluitbare berging.

Tuin:
Op het zuid-oosten gelegen ruime achtertuin welke is aangelegd met diverse plantenborders met volwassen beplanting, terrassen en een achterom. Vanuit de tuin is er toegang tot de garage. Aan de voorzijde is de tuin voorzien van een onderhoudsvriendelijke inrichting en een oprit voor een tweetal auto's.

Bijzonderheden:
- De woning beschikt over 8 zonnepanelen met een indicatieve opbrengst van ca. 3630 Watt.
- De woning is compleet geïsoleerd vanuit de bouw en in 2022 zijn de vloer en de gevels extra na-geïsoleerd met certificaat.
- Het energielabel B is afgegeven in 2019 nog voordat de vloer en de gevels zij na-geïsoleerd in 2022 (de zonnepanelen zijn aangebracht in 2021).
- De warmtepompairco in de woonkamer en hoofdslaapkamer is geïnstalleerd in 2022.
- Het buitenschilderwerk is in september 2022 uitgevoerd door Maas vastgoedonderhoud.
- Het platte dak van de garage is in 2023 voorzien van nieuwe dakbedekking
- De totale meterkast is in juli 2023 vernieuwd.
- Aanpandige garage met elektra en kanteldeur voorzien van geïntegreerde loopdeur.
- Parkeren op eigen oprit voor een tweetal auto's. Verder is er voor bezoekers ook voldoende parkeergelegenheid in de directe omgeving van de woning.

Algemeen:
- Bij een verkoop wordt als basis gebruik gemaakt van het model van de koopovereenkomst, vastgesteld door de Nederlandse Vereniging van Makelaars in onroerende goederen NVM, de Consumentenbond en de Vereniging Eigen Huis. In deze koopovereenkomst wordt standaard de verplichting tot het storten van een waarborgsom of het stellen van een bankgarantie door de koper ter grootte van 10% van de koopsom opgenomen.
- Een koopovereenkomst komt tot stand onder de opschortende voorwaarde dat beide partijen de koopovereenkomst ondertekenen. Partijen kunnen derhalve noch aan een mondelinge overeenkomst, noch aan een schriftelijke bevestiging daarvan, rechten ontlenen.
- Deze brochure bestaat uit vrijblijvende informatie en is met de grootste zorg samengesteld, echter aan de inhoud van deze brochure kunnen geen rechten worden ontleend. Indelingstekeningen en maatvoeringen zijn slechts indicatief, kunnen afwijken van de werkelijke situatie en zijn uitsluitend bedoeld om een indruk te geven van de indeling.

Kenmerken

  • StatusVerkocht o.v.
  • Vraagprijs€ 469.000,- k.k.
  • Soort objectWoonhuis
  • Soort woningEengezinswoning
  • Type woningTwee onder één kapwoning
  • Bouwjaar1991
  • BouwvormBestaande bouw
  • LiggingenIn woonwijk

Interesse in Talmastraat 7?

Laat hieronder uw gegevens achter en onze makelaar zal contact met u opnemen. Wilt u niet wachten? Neem dan telefonisch contact op!

"*" geeft vereiste velden aan

Robert Benschop

Makelaar RM

Aangepaste openingstijden

Tijdens eerste kerstdag, tweede kerstdag en Nieuwjaarsdag zijn wij gesloten. Daarnaast zijn wij ook woensdagmiddag 24 december vanaf 12:30 uur en 31 december de hele dag gesloten. Daar buiten staan wij voor u klaar zoals u van ons gewend bent.

Fijne feestdagen! 

Team Van de Water