Skip to content

Chaam – Baarleseweg 42

Omschrijving

Op zoek naar een verrassend royale 2-onder-1 kap woning met een multifunctioneel bijgebouw van circa 90 m²? Deze ruime woning op een fraai perceel zoekt een koper die hier geheel naar eigen wens zijn droomhuis van wil maken.

Aan de rand van de dorpskern aan een doorgaande weg gelegen royale 2-onder-1 kap woning voorzien van cv-gas, aanpandige royale garage/berging, voor- en achter-tuin op een royaal perceel van circa 369 m². Voor de garage is een diepe oprit gesitueerd voor het parkeren van meerdere auto's op eigen terrein.

Bouwjaar: ca. 1970
Perceeloppervlakte: ca. 327 m² (Moet nog kadastraal worden geregistreerd)
Inhoud: ca. 700 m³
Woonoppervlakte: ca. 130 m²
Overige aangebouwde ruimten: ca 93 m²
Aanvaarding: in onderling overleg

Begane grond:
Entree hal met trapopgang naar de eerste verdieping en een praktische trapkast; royale L-vormige living (ca. 37 m²) met met schouw voorzien van houtkachel; woonkeuken (ca. 2.95 x 3.35 m.) met keukenblok; zij entree met gedeeltelijk betegelde toiletruimte met toilet en fonteintje; slaapkamer (ca. 3.00 x 5.45 m.) met elektrische boiler (huur) en toegang tot een serre (ca. 2.75 x 6.00 m.) met schuifpui naar de achtertuin.

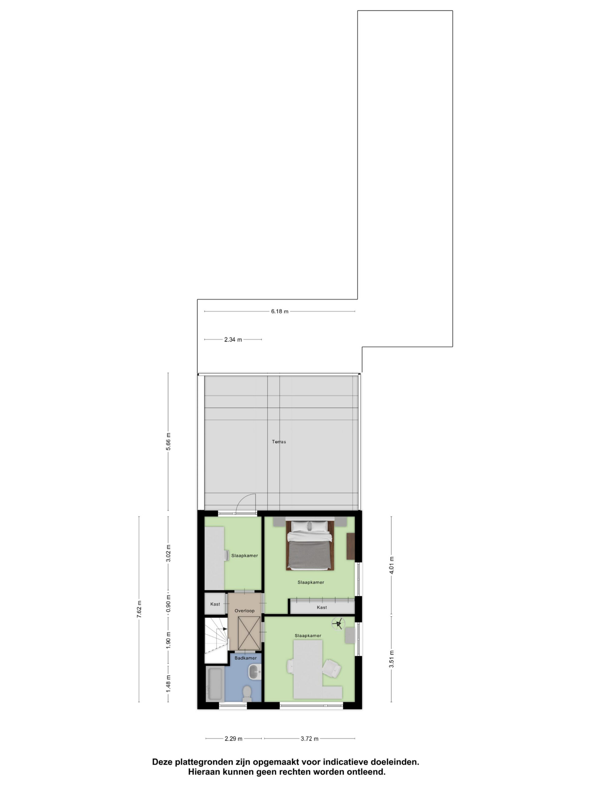
Eerste verdieping:
Overloop met vaste kast en luik met vlizotrap naar de royale bergzolder op stahoogte; slaapkamer achterzijde (ca. 2.34 x 3.00 m.) met deur naar het dakterras (ca. 5.60 x 6.15 m.) gelegen op het zuid-westen; slaapkamer achterzijde (ca. 3.70 x 4.00 m.) met vaste kastenwand; slaapkamer voorzijde (ca. 3.50 x 3.70 m.) en een betegelde badkamer met ligbad, wastafel en toilet.

Tweede verdieping:
Praktische bergzolder op stahoogte bereikbaar middels een vlizotrap. Bij het plaatsen van een vaste trap kan men hier een royale extra kamer realiseren.

Achtertuin:
Volop privacy biedende circa 15 meter diepe achtertuin gelegen op het Zuidwesten.

Garage/berging:
De garage (ca. 3.45 x 6.60 m.) is voorzien van een garagedeur en een loopdeur naar de achtertuin. De berging (ca. 3.45 x 6.60 m.) is voorzien van een loopdeur naar de achtertuin en een vaste kast met opstelling CV-combiketel.

Algemeen:
-Bij een verkoop wordt als basis gebruik gemaakt van het model van de koopovereenkomst, vastgesteld door de Nederlandse Vereniging van Makelaars en Taxateurs in onroerende goederen NVM, VastgoedPRO, VBO Makelaar, de Consumentenbond en Vereniging Eigen Huis. In deze koopovereenkomst wordt standaard de verplichting tot het storten van een waarborgsom of het stellen van een bankgarantie door de koper ter grootte van 10% van de koopsom opgenomen.
-Een koopovereenkomst komt tot stand onder de opschortende voorwaarde dat beide partijen de koopovereenkomst ondertekenen. Partijen kunnen derhalve noch aan een mondelinge overeenkomst, noch aan een schriftelijke bevestiging daarvan, rechten ontlenen.
-Verkoper attendeert koper uitdrukkelijk op het feit, dat hij het verkochte nooit zelf feitelijk heeft gebruikt en dat hij derhalve koper niet heeft kunnen informeren over de eigenschappen c.q. gebreken aan het verkochte waarvan hij op de hoogte zou zijn geweest indien verkoper het verkochte zelf feitelijk zou hebben gebruikt. In dit kader zijn partijen uitdrukkelijk overeengekomen dat dergelijke eigenschappen c.q. gebreken voor risico van de koper komen en dat bij de vaststelling van de koopsom hiermee rekening is gehouden.
-In de onroerende zaak kunnen, gezien het bouwjaar, asbesthoudende stoffen cq. materialen aanwezig zijn. In het geval deze worden verwijderd dienen door koper die maatregelen en voorzieningen te worden getroffen die de wetgeving voorschrijft. Koper verklaart met deze wetgeving bekend te zijn en vrijwaart verkoper voor alle aansprakelijkheid die uit de aanwezigheid en/of de verwijdering van asbest uit de desbetreffende onroerende zaak kan voortvloeien.
-Deze informatie is door ons met de nodige zorgvuldigheid samengesteld. Onzerzijds wordt echter geen enkele aansprakelijkheid aanvaard voor enige onvolledigheid, onjuistheid of anderszins, dan wel de gevolgen daarvan. Alle opgegeven maten en oppervlakten zijn indicatief.

Kenmerken

  • StatusBeschikbaar
  • Vraagprijs€ 415.000,- k.k.
  • Soort objectWoonhuis
  • Soort woningEengezinswoning
  • Type woningTwee onder één kapwoning
  • Bouwjaar1970
  • BouwvormBestaande bouw
  • LiggingenIn woonwijk, In bosrijke omgeving

Interesse in Baarleseweg 42?

Laat hieronder uw gegevens achter en onze makelaar zal contact met u opnemen. Wilt u niet wachten? Neem dan telefonisch contact op!

"*" geeft vereiste velden aan

Henk Lodewikus

Makelaar RM

Aangepaste openingstijden

Tijdens eerste kerstdag, tweede kerstdag en Nieuwjaarsdag zijn wij gesloten. Daarnaast zijn wij ook woensdagmiddag 24 december vanaf 12:30 uur en 31 december de hele dag gesloten. Daar buiten staan wij voor u klaar zoals u van ons gewend bent.

Fijne feestdagen! 

Team Van de Water