Skip to content

Breda – Vijfhagen 384

Verkocht o.v.

Vijfhagen 384

Breda

Omschrijving

Comfortabel wonen in het hippe complex "Easystreet". In dit onder fraaie, moderne architectuur gebouwde appartementencomplex is een verrassend royaal 2-kamer appartement gesitueerd, met een living van circa 29 m² en een royaal balkon van circa 13 m². Het appartement is gelegen op de zesde woonlaag met een vrij uitzicht op de directe omgeving.

Een strak vorm gegeven complex, op de hoek van de Ettensebaan en de Tuinzigtlaan gelegen, met gemeenschappelijke fietsenberging en voor dit appartement een eigen parkeerplaats in de naast het complex gelegen parkeerkelder.

Het complex ligt op circa 10 minuten fietsen van de binnenstad aan een doorgaande weg naar de snelwegen rondom Breda. In de omgeving van Easy Street bevinden zich al de nodige voorzieningen. Zo is er een sportschool in Westerpark, een bushalte voor de deur en een kleinschalig winkelcentrum met supermarkt op korte loopafstand.

Bouwjaar: ca. 2012
Verwarming/warmwatervoorziening: blokverwarming
Woonoppervlakte: ca. 62 m²
Balkon: ca. 13 m²
Isolatie: optimaal geïsoleerd
Aanvaarding: In onderling overleg

Indeling begane grond:
Centrale hal/entree met brievenbussen, bellen tableau (met intercomsysteem), lift en trappenhuis.

Indeling appartement:
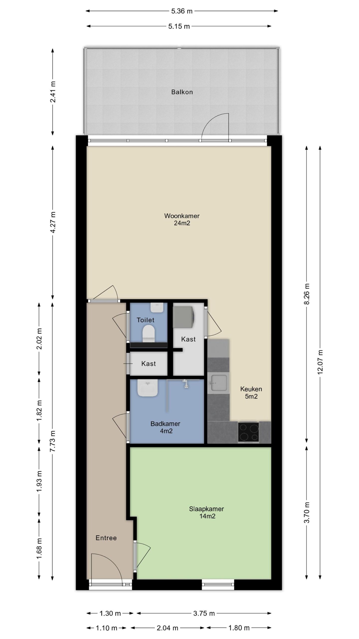
Entree/hal met laminaat vloer en toegang tot een living van ca. 29 m² met laminaatvloer, toegang tot een royaal balkon van ca. 13 m², half open keuken met een moderne keukeninrichting voorzien van inductie kookplaat, afzuigschouw, oven, koelkast en een magnetron; royale berging met unit mechanische ventilatie en aansluitingen ten behoeve van de wasapparatuur; vanuit de eerder genoemde gang tevens toegang tot de geheel betegelde badkamer (ca. 4 m²) welke is voorzien van een wastafel in meubel, royale inloopdouche en een design radiator; geheel betegelde toiletruimte met wandcloset voorzien van inbouw reservoir en fonteintje en een royale slaapkamer (ca. 14 m²) met laminaat vloer.

Algemeen:
- Als u een appartement koopt wordt u automatisch lid van de vereniging van eigenaren, de VvE. Aan deze vereniging betaalt u een bijdrage (de "servicekosten") van ca. € 160,-- per maand. Deze bijdrage omvat onder meer de opstalverzekering voor het complex, onderhoud van de gemeenschappelijke ruimtes en liftinstallatie en reservering voor groot en klein onderhoud.
- Bij een aan- / verkoop wordt gebruik gemaakt van het model van de koopovereenkomst, vastgesteld door de Nederlandse Vereniging van Makelaars in onroerende goederen NVM, de Consumentenbond en de Vereniging Eigen Huis. In deze koopovereenkomst wordt standaard de verplichting tot het storten van een waarborgsom of het stellen van een bankgarantie door de koper ter grootte van 10% van de koopsom opgenomen.
- Een koopovereenkomst komt tot stand onder de opschortende voorwaarde dat beide partijen de koopakte ondertekenen. Partijen kunnen derhalve aan een mondelinge overeenkomst geen rechten en plichten ontlenen.
- Deze vrijblijvende informatie is met de grootste zorg samengesteld, echter aan de inhoud hiervan kunnen geen rechten worden ontleend. Indelingstekeningen en maatvoeringen zijn slechts indicatief, kunnen afwijken van de werkelijke situatie en zijn uitsluitend bedoeld om een indruk te geven van de indeling.

Kenmerken

  • StatusVerkocht o.v.
  • Vraagprijs€ 315.000,- k.k.
  • Soort objectAppartement
  • Bouwjaar2012
  • BouwvormBestaande bouw
  • LiggingenIn woonwijk, Vrij uitzicht

Interesse in Vijfhagen 384?

Laat hieronder uw gegevens achter en onze makelaar zal contact met u opnemen. Wilt u niet wachten? Neem dan telefonisch contact op!

"*" geeft vereiste velden aan

Henk Lodewikus

Makelaar RM

Aangepaste openingstijden

Tijdens eerste kerstdag, tweede kerstdag en Nieuwjaarsdag zijn wij gesloten. Daarnaast zijn wij ook woensdagmiddag 24 december vanaf 12:30 uur en 31 december de hele dag gesloten. Daar buiten staan wij voor u klaar zoals u van ons gewend bent.

Fijne feestdagen! 

Team Van de Water