Skip to content

Tweekamerappartementen | Woonblok ‘Jeroen Bosch’

0 van de 8 vrij

Tweekamerappartementen | Woonblok 'Jeroen Bosch'

Omschrijving

Oude Haven te Raamsdonksveer

De appartementen aan de Jeroen Boschstraat komen in twee varianten: type B en type J. Beide zijn door hun vorm en indeling ideaal voor starters. De entree van de woningen bevindt zich op de begane grond, waarna je via een trap het woongedeelte bereikt. Type B is gesitueerd op de eerste verdieping, terwijl type J op de tweede verdieping ligt. Wil jij een goede start maken op de woningmarkt of ben je toe aan het comfort van nieuwbouw? Dan is deze woning iets voor jou!

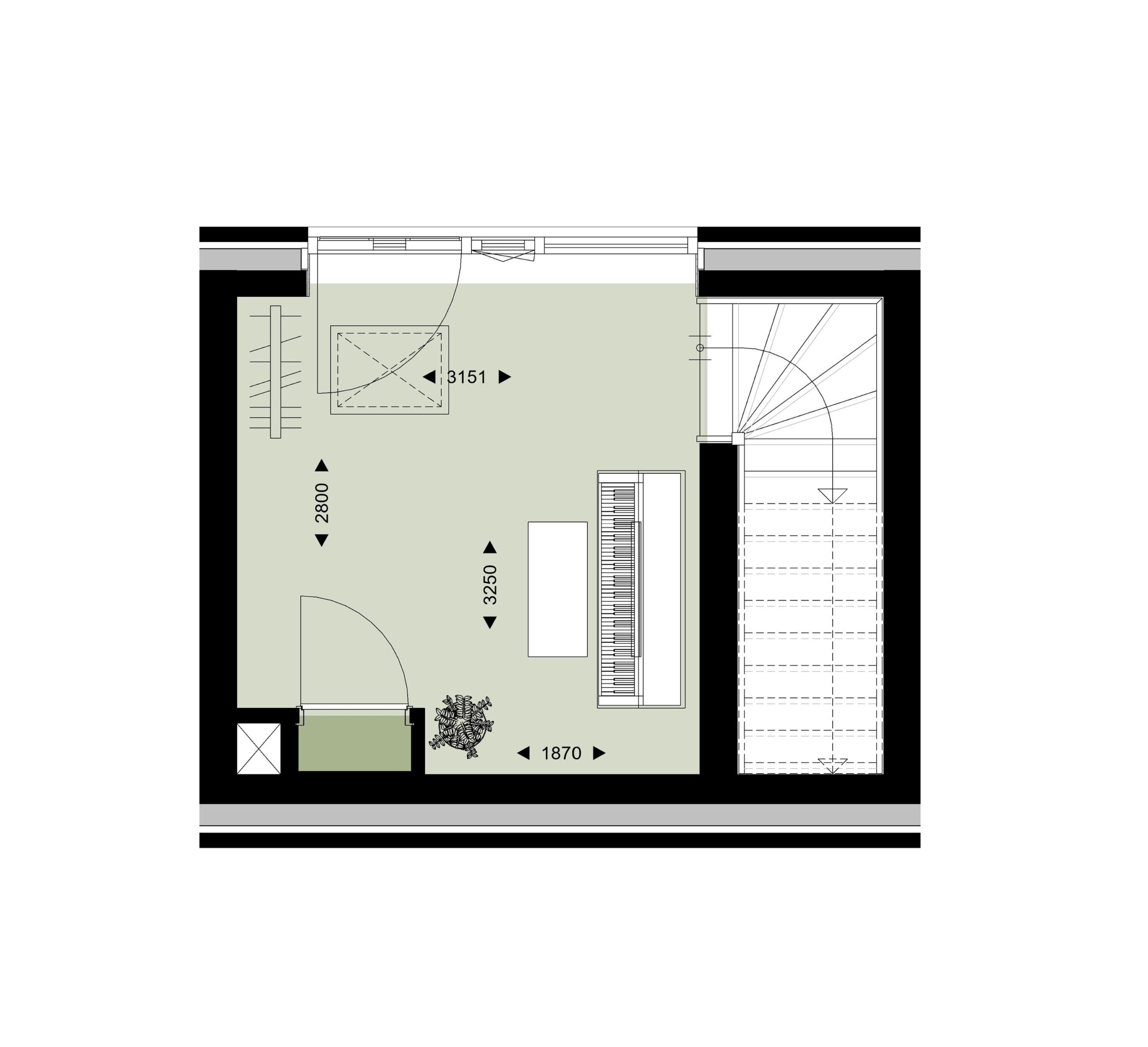
Type B
Type B heeft een woonoppervlak van ca. 71 m². Vanuit de ruime entree op de begane grond bereik je via de trap het woongedeelte op de eerste verdieping. Hier vind je aan de voorzijde van de woning de slaapkamer en aan de achterzijde de woonkamer. Centraal in de woning liggen de badkamer en een handige inpandige berging. Dit appartement beschikt over een balkon van ruim 5 m², geschikt voor een kopje koffie in de ochtendzon.

Type J
Met 82 m² aan woonoppervlakte is type J net iets ruimer dan de appartementen op de eerste verdieping. De entree bevindt zich op de begane grond, waarvandaan je via de trap de woonkamer op de tweede verdieping bereikt. Vervolgens stap je vanuit de hal de royale slaapkamer binnen, met direct aansluitend de badkamer. Het toilet is separaat en tevens via de hal toegankelijk. De woning beschikt over een inpandige berging, bereikbaar vanuit de woonkamer. Aan de woonkamer grenst bovendien een balkon van ruim 5 m², geschikt voor een kopje koffie in de ochtendzon.

Bij interesse in dit project, kunt u zich via de projectwebsite inschrijven voor een of meerdere bouwnummers. Indien het bouwnummer van uw voorkeur op dat moment nog beschikbaar is, dan kunnen wij het bouwnummer vrijblijvend voor u reserveren en plannen wij graag een afspraak in om het project en de woning uitgebreid aan u toe te lichten. Mocht het bouwnummer van uw voorkeur reeds gereserveerd zijn, dan wordt u automatisch op de reservelijst geplaatst en zullen wij contact met u opnemen indien het bouwnummer voor u vrijkomt. 

Kenmerken

  • StatusONDER_OPTIE
  • Prijs€ 301.455,- t/m € 301.455,-
  • Aantal bouwnummers8
  • ObjecttypeAppartement
  • LiggingenIn centrum, In woonwijk

Bouwnummers

Verkocht o.v.

Oude Haven 27

4941 ZB Raamsdonksveer

Verkocht o.v.

Oude Haven 26

4941 ZB Raamsdonksveer

Verkocht o.v.

Oude Haven 25

4941 ZB Raamsdonksveer

Verkocht o.v.

Oude Haven 24

4941 ZB Raamsdonksveer

Gereserveerd

Oude Haven 5

4941 ZB Raamsdonksveer

Verkocht o.v.

Oude Haven 6

4941 ZB Raamsdonksveer

Verkocht o.v.

Oude Haven 3

4941 ZB Raamsdonksveer

Verkocht o.v.

Oude Haven 4

4941 ZB Raamsdonksveer

Interesse in Tweekamerappartementen | Woonblok 'Jeroen Bosch'

"*" geeft vereiste velden aan

Vestiging Oosterhout

Keiweg 24

4901 JA Oosterhout

(0162) 447 447

Aangepaste openingstijden

Tijdens eerste kerstdag, tweede kerstdag en Nieuwjaarsdag zijn wij gesloten. Daarnaast zijn wij ook woensdagmiddag 24 december vanaf 12:30 uur en 31 december de hele dag gesloten. Daar buiten staan wij voor u klaar zoals u van ons gewend bent.

Fijne feestdagen! 

Team Van de Water