Skip to content

Raamsdonksveer – Oude Haven 4

Verkocht o.v.

Oude Haven 4

4941 ZB Raamsdonksveer

Omschrijving

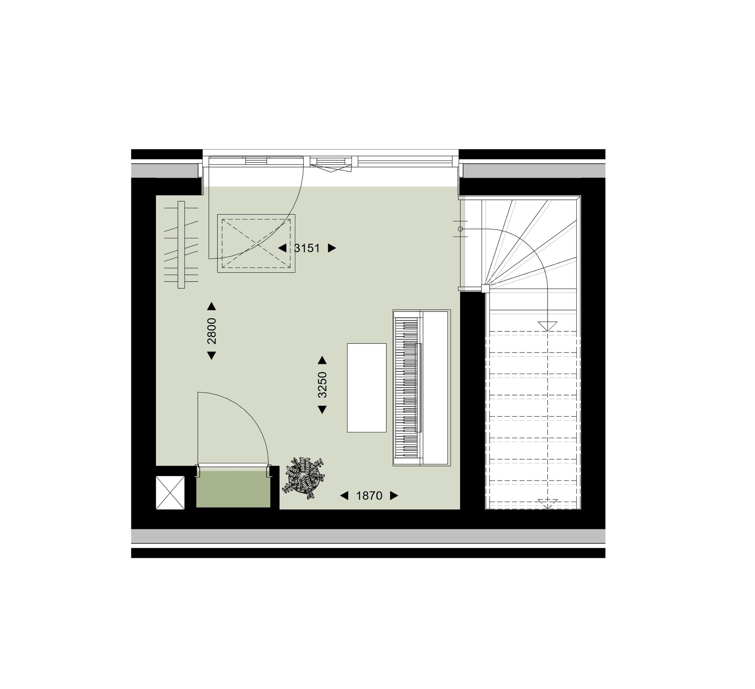
TWEEKAMERAPPARTEMENT - BOUWNUMMER 4

Type B heeft een woonoppervlak van ca. 71 m². Vanuit de ruime entree op de begane grond bereik je via de trap het woongedeelte op de eerste verdieping. Hier vind je aan de voorzijde van de woning de slaapkamer en aan de achterzijde de woonkamer. Centraal in de woning liggen de badkamer en een handige inpandige berging. Dit appartement beschikt over een balkon van ruim 5 m², geschikt voor een kopje koffie in de ochtendzon. Dit appartement valt buiten de KoopStart-regeling.

Dit appartement maakt onderdeel uit van nieuwbouwproject Oude Haven te Raamsdonksveer

-----------------------------------------------------------------------

Nieuwbouwproject Oude Haven
De oude haven van Raamsdonksveer krijgt zijn glans weer terug. Het wordt een plek om heerlijk aan het water te wonen, te genieten en elkaar te ontmoeten. Er worden in totaal 52 woningen gerealiseerd,
- 27 koopappartementen
- 16 vrije sector huurappartementen
- 9 eengezinswoningen

Centrale ligging
Oude Haven ligt centraal aan de Donge. Met het historisch centrum van Raamsdonksveer en het hart van vestingstad Geertruidenberg op loopafstand.
Met de auto zit je vanuit Oude Haven via de A59 en A27 zo in Oosterhout, Breda, Waalwijk of Tilburg. Daarnaast verplaats je je met de bus gemakkelijk in de omgeving. Zin om de natuur in te trekken? Op de fiets of – nog leuker – met de boot ben je in een paar minuten in de Biesbosch.

--------------------------------------------------------------------------

Bij interesse in dit project, kunt u zich via de projectwebsite inschrijven voor een of meerdere bouwnummers. Indien het bouwnummer van uw voorkeur op dat moment nog beschikbaar is, dan kunnen wij het bouwnummer vrijblijvend voor u reserveren en plannen wij graag een afspraak in om het project en de woning uitgebreid aan u toe te lichten. Mocht het bouwnummer van uw voorkeur reeds gereserveerd zijn, dan wordt u automatisch op de reservelijst geplaatst en zullen wij contact met u opnemen indien het bouwnummer voor u vrijkomt. 

Kenmerken

  • StatusVerkocht o.v.
  • Vraagprijs€ 301.455,- v.o.n.
  • Soort objectAppartement
  • Bouwjaar2027
  • BouwvormNieuwbouw
  • LiggingenIn centrum, In woonwijk

Interesse in Oude Haven

"*" geeft vereiste velden aan

Vestiging Oosterhout

Keiweg 24

4901 JA Oosterhout

(0162) 447 447

Aangepaste openingstijden

Tijdens eerste kerstdag, tweede kerstdag en Nieuwjaarsdag zijn wij gesloten. Daarnaast zijn wij ook woensdagmiddag 24 december vanaf 12:30 uur en 31 december de hele dag gesloten. Daar buiten staan wij voor u klaar zoals u van ons gewend bent.

Fijne feestdagen! 

Team Van de Water