Skip to content

Raamsdonksveer – Oude Haven 52

Oude Haven 52

4941 ZB Raamsdonksveer

Omschrijving

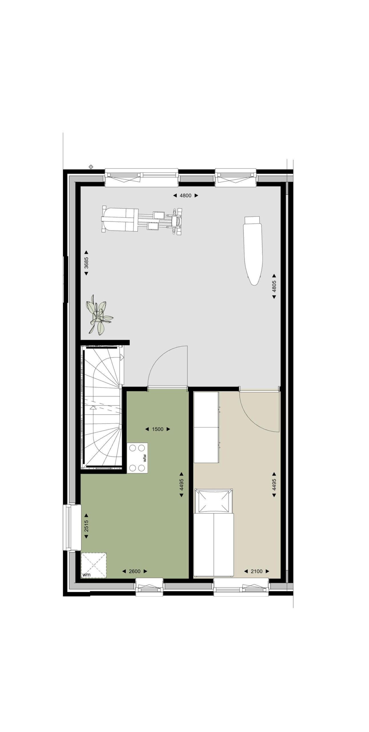
HOEKWONING - BOUWNUMMER 52

Deze hoekwoning aan de Haven met een woonoppervlakte van 135m² is perfect afgestemd op gezinnen die op zoek zijn naar een sfeervolle en comfortabele woning. Deze woning combineert een slimme indeling met volop licht, praktische ruimtes en de mogelijkheid om alles naar eigen wens in te richten. Dankzij het platte dak maak je in ieder vertrek optimaal gebruik van de ruimte. Op de begane grond vind je de sfeervolle woonkamer aan de tuinzijde en een open keuken aan de voorzijde van de woning. Standaard telt deze woning drie slaapkamers. Op de eerste verdieping tref je de badkamer en twee slaapkamers aan. De derde slaapkamer ligt op de bovenste verdieping. Hier vind je ook een handige bergruimte en meer dan voldoende plek voor een hobbykamer. De buitenruimte, gericht op het zuidwesten, is perfect voor zonnige dagen en gezellige avonden buiten.

Ook op het gebied van duurzaamheid zit je goed. Dankzij het (voorlopige) energielabel A+++ profiteer je van een lage energierekening. De woningen zijn uitgerust met een energiezuinige lucht/waterwarmtepomp, vloerverwarming en triple beglazing.

KENMERKEN BOUWNUMMER 52
- Woonoppervlakte 135 m²
- Kaveloppervlakte 89 m²
- 2 slaapkamers op de eerste verdieping
- 1 slaapkamer op de tweede verdieping
- Energielabel A+++
- Gelegen op het Zuidwesten

Deze woning maakt onderdeel uit van nieuwbouwproject Oude Haven te Raamsdonksveer

-----------------------------------------------------------------------

Nieuwbouwproject Oude Haven
De oude haven van Raamsdonksveer krijgt zijn glans weer terug. Het wordt een plek om heerlijk aan het water te wonen, te genieten en elkaar te ontmoeten. Er worden in totaal 52 woningen gerealiseerd,
- 27 koopappartementen
- 16 vrije sector huurappartementen
- 9 eengezinswoningen

Centrale ligging
Oude Haven ligt centraal aan de Donge. Met het historisch centrum van Raamsdonksveer en het hart van vestingstad Geertruidenberg op loopafstand.
Met de auto zit je vanuit Oude Haven via de A59 en A27 zo in Oosterhout, Breda, Waalwijk of Tilburg. Daarnaast verplaats je je met de bus gemakkelijk in de omgeving. Zin om de natuur in te trekken? Op de fiets of – nog leuker – met de boot ben je in een paar minuten in de Biesbosch.

--------------------------------------------------------------------------

Bij interesse in dit project, kunt u zich via de projectwebsite inschrijven voor een of meerdere bouwnummers. Indien het bouwnummer van uw voorkeur op dat moment nog beschikbaar is, dan kunnen wij het bouwnummer vrijblijvend voor u reserveren en plannen wij graag een afspraak in om het project en de woning uitgebreid aan u toe te lichten. Mocht het bouwnummer van uw voorkeur reeds gereserveerd zijn, dan wordt u automatisch op de reservelijst geplaatst en zullen wij contact met u opnemen indien het bouwnummer voor u vrijkomt. 

Kenmerken

  • StatusBeschikbaar
  • Vraagprijs€ 520.000,- v.o.n.
  • Soort objectWoonhuis
  • Soort woningEengezinswoning
  • Type woningHoekwoning
  • Bouwjaar2027
  • Bouwjaar periodeVANAF_2021_TM_2030
  • BouwvormNieuwbouw
  • LiggingenIn centrum, In woonwijk

Interesse in Oude Haven

"*" geeft vereiste velden aan

Vestiging Oosterhout

Keiweg 24

4901 JA Oosterhout

(0162) 447 447

Aangepaste openingstijden

Tijdens eerste kerstdag, tweede kerstdag en Nieuwjaarsdag zijn wij gesloten. Daarnaast zijn wij ook woensdagmiddag 24 december vanaf 12:30 uur en 31 december de hele dag gesloten. Daar buiten staan wij voor u klaar zoals u van ons gewend bent.

Fijne feestdagen! 

Team Van de Water