Skip to content

Raamsdonksveer – Oude Haven 48

Gereserveerd

Oude Haven 48

4941 ZB Raamsdonksveer

Omschrijving

TUSSENWONING - BOUWNUMMER 48

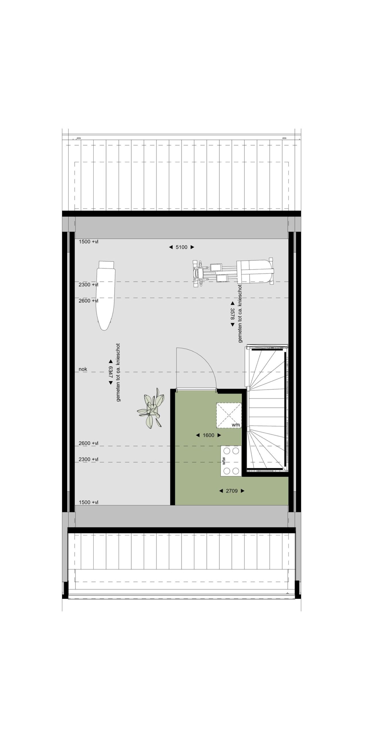
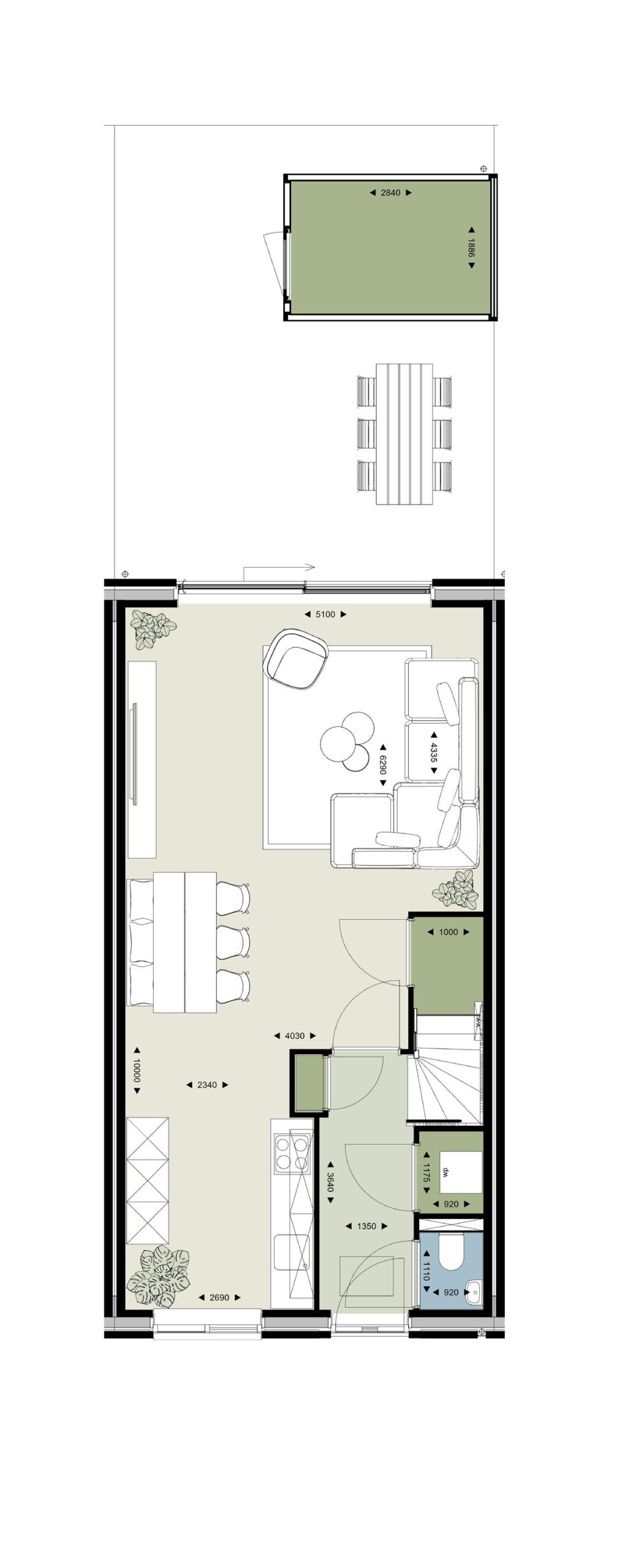
Deze tussenwoning aan de Haven is perfect afgestemd op gezinnen die op zoek zijn naar een sfeervolle en comfortabele woning. Met een woonoppervlak van ca. 135 m² biedt deze woning volop ruimte voor jou en je gezin. Op de begane rond tref je de riante woonkamer aan de tuinzijde en een open keuken aan de voorzijde. Op de eerste verdieping vind je de badkamer en drie slaapkamers, waaronder één grote master bedroom. Neem je nogmaals de trap naar boven dan kom je op de bovenste verdieping met een ruime zolder. Deze kun je naar wens omtoveren tot vierde slaapkamer. Of wat dacht je van een home gym, muziekstudio of thuiskantoor? De buitenruimte, gericht op het zuidwesten, is perfect voor zonnige dagen en gezellige avonden buiten.

Ook op het gebied van duurzaamheid zit je goed. Dankzij het (voorlopige) energielabel A+++ profiteer je van een lage energierekening. De woningen zijn uitgerust met een energiezuinige lucht/waterwarmtepomp, vloerverwarming en triple beglazing.

KENMERKEN BOUWNUMMER 48
- Woonoppervlakte 135 m²
- Kaveloppervlakte 90 m²
- 3 slaapkamers op de eerste verdieping
- vrij indeelbare ruime zolder
- Energielabel A+++
- Gelegen op het Zuidwesten

Deze woning maakt onderdeel uit van nieuwbouwproject Oude Haven te Raamsdonksveer

-----------------------------------------------------------------------

Nieuwbouwproject Oude Haven
De oude haven van Raamsdonksveer krijgt zijn glans weer terug. Het wordt een plek om heerlijk aan het water te wonen, te genieten en elkaar te ontmoeten. Er worden in totaal 52 woningen gerealiseerd,
- 27 koopappartementen
- 16 vrije sector huurappartementen
- 9 eengezinswoningen

Centrale ligging
Oude Haven ligt centraal aan de Donge. Met het historisch centrum van Raamsdonksveer en het hart van vestingstad Geertruidenberg op loopafstand.
Met de auto zit je vanuit Oude Haven via de A59 en A27 zo in Oosterhout, Breda, Waalwijk of Tilburg. Daarnaast verplaats je je met de bus gemakkelijk in de omgeving. Zin om de natuur in te trekken? Op de fiets of – nog leuker – met de boot ben je in een paar minuten in de Biesbosch.

--------------------------------------------------------------------------

Bij interesse in dit project, kunt u zich via de projectwebsite inschrijven voor een of meerdere bouwnummers. Indien het bouwnummer van uw voorkeur op dat moment nog beschikbaar is, dan kunnen wij het bouwnummer vrijblijvend voor u reserveren en plannen wij graag een afspraak in om het project en de woning uitgebreid aan u toe te lichten. Mocht het bouwnummer van uw voorkeur reeds gereserveerd zijn, dan wordt u automatisch op de reservelijst geplaatst en zullen wij contact met u opnemen indien het bouwnummer voor u vrijkomt. 

Kenmerken

  • StatusGereserveerd
  • Vraagprijs€ 505.000,- v.o.n.
  • Soort objectWoonhuis
  • Soort woningEengezinswoning
  • Type woningTussenwoning
  • Bouwjaar2027
  • Bouwjaar periodeVANAF_2021_TM_2030
  • BouwvormNieuwbouw
  • LiggingenIn centrum, In woonwijk

Interesse in Oude Haven

"*" geeft vereiste velden aan

Vestiging Oosterhout

Keiweg 24

4901 JA Oosterhout

(0162) 447 447

Aangepaste openingstijden

Tijdens eerste kerstdag, tweede kerstdag en Nieuwjaarsdag zijn wij gesloten. Daarnaast zijn wij ook woensdagmiddag 24 december vanaf 12:30 uur en 31 december de hele dag gesloten. Daar buiten staan wij voor u klaar zoals u van ons gewend bent.

Fijne feestdagen! 

Team Van de Water