Skip to content

Raamsdonksveer – Oude Haven 45

Gereserveerd

Oude Haven 45

4941 ZB Raamsdonksveer

Omschrijving

BOUWNUMMER 45

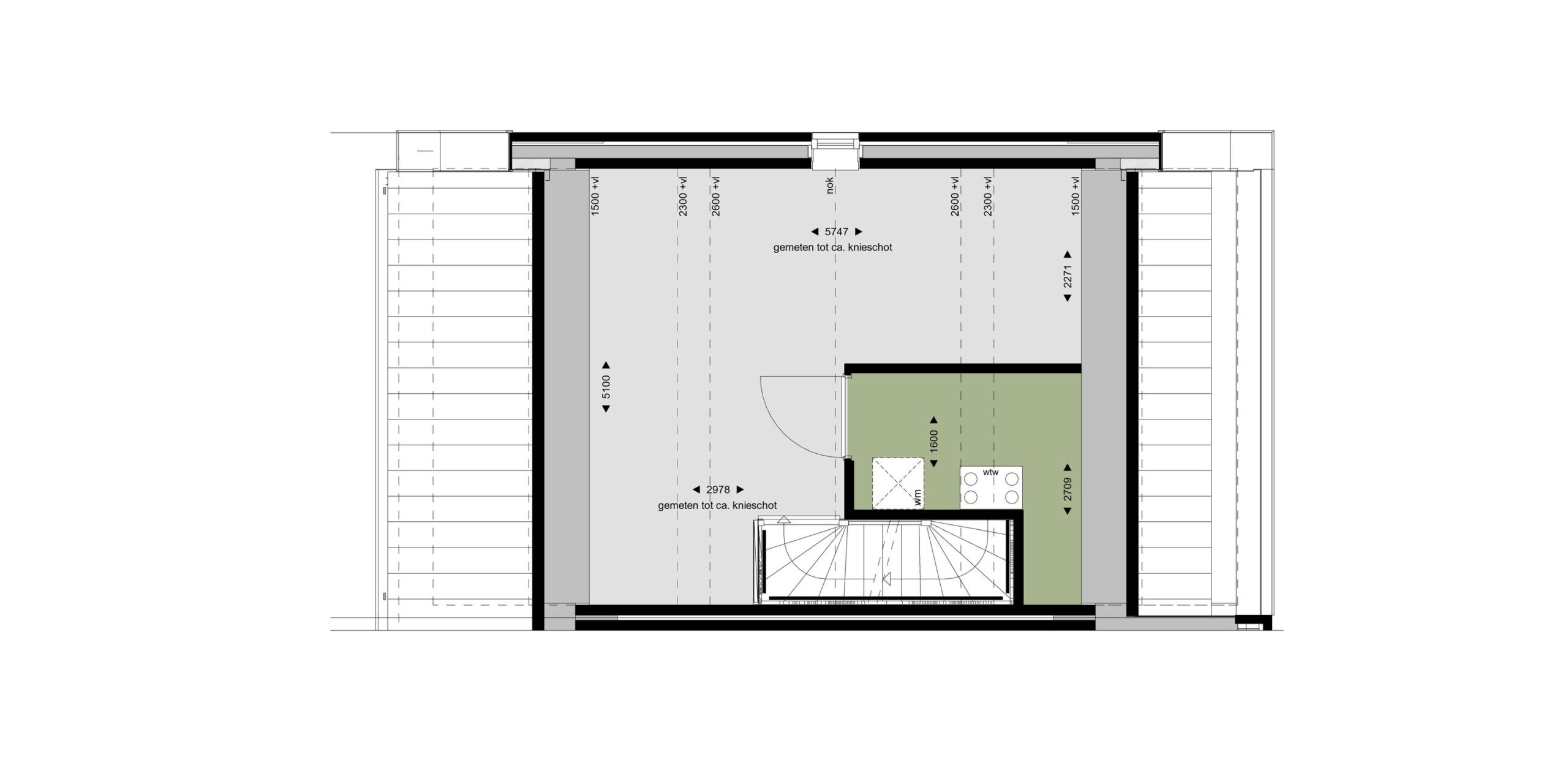
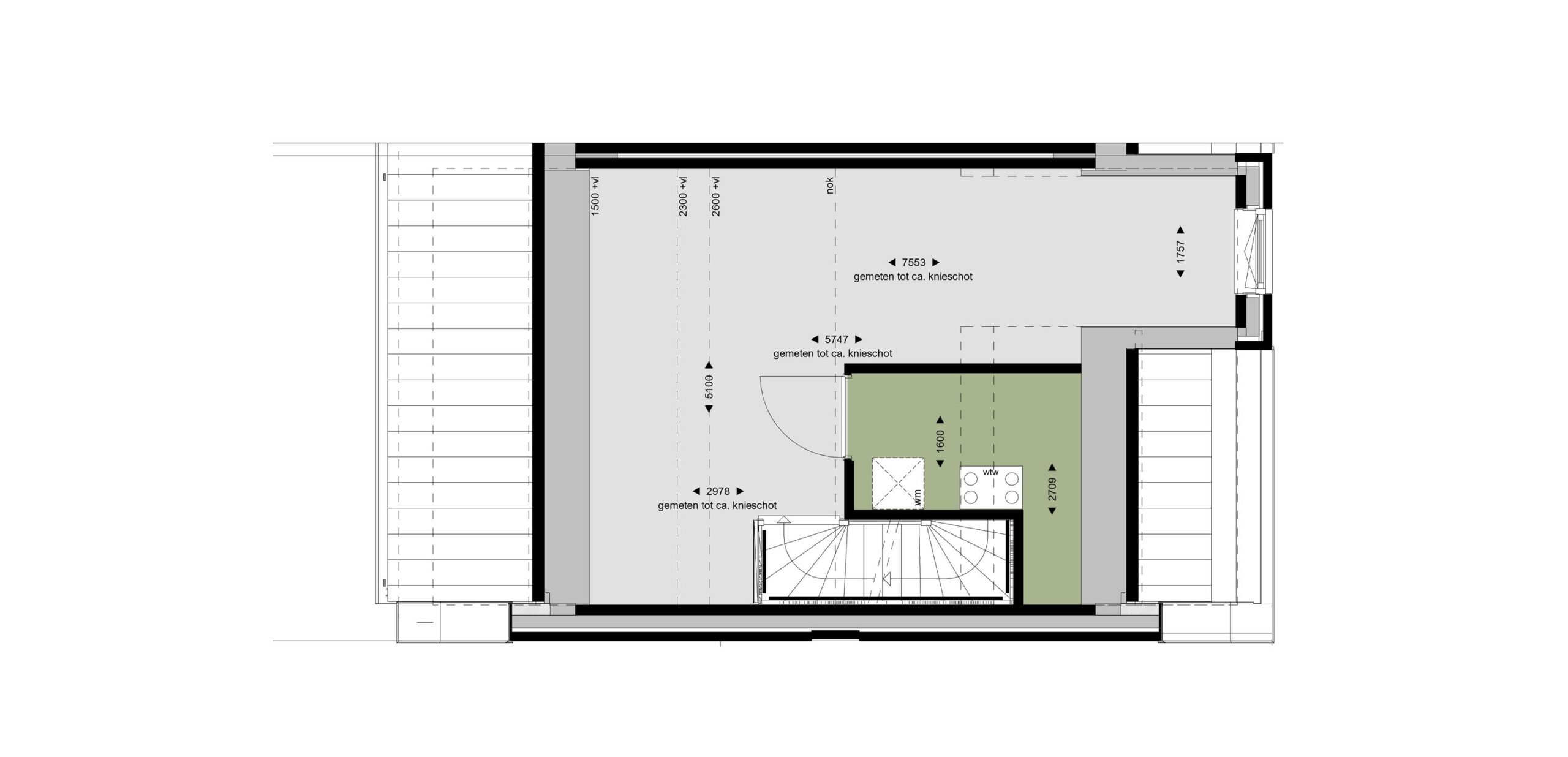
De twee-onder-een-kapwoning in de Oude Haven is ideaal voor gezinnen die op zoek zijn naar voldoende ruimte en mogelijkheden voor het hele gezin. De woning heeft standaard drie slaapkamers en een ruime zolder met veel indelingsmogelijkheden.

Met een woonoppervlak van ca. 135 m², drie slaapkamers en een tuin op het zuidoosten ervaar je hier maximaal wooncomfort. De ruime woonkamer met open keuken is ideaal voor het hele gezin. Naast drie slaapkamers vind je op de eerste verdieping een complete badkamer met een wastafel, douche en toilet. Alles is uiteraard naar eigen wens aan te passen. Op de bovenste verdieping vind je een grote, flexibele ruimte die je volledig naar eigen wens kunt indelen. Van thuiswerkplek tot extra slaapkamer of hobbyruimte. De twee-onder-een-kapwoningen bieden mogelijkheden voor elk gezin!

Ook op het gebied van duurzaamheid is deze woning een uitstekende keuze. Met het (voorlopige) energielabel A+++ geniet je van een lage energierekening. De energiezuinige lucht/waterwarmtepomp, vloerverwarming en triple beglazing maken het wooncomfort compleet

KENMERKEN BOUWNUMMER 45
- Woonoppervlakte 135 m²
- Kaveloppervlakte 116 m²
- 3 slaapkamers
- vrij indeelbare ruime zolder
- Energielabel A+++
- Gelegen op het Zuidoosten

Deze woning maakt onderdeel uit van nieuwbouwproject Oude Haven te Raamsdonksveer

-----------------------------------------------------------------------

Nieuwbouwproject Oude Haven
De oude haven van Raamsdonksveer krijgt zijn glans weer terug. Het wordt een plek om heerlijk aan het water te wonen, te genieten en elkaar te ontmoeten. Er worden in totaal 52 woningen gerealiseerd,
- 27 koopappartementen
- 16 vrije sector huurappartementen
- 9 eengezinswoningen

Oude Haven ligt centraal aan de Donge. Met het historisch centrum van Raamsdonksveer en het hart van vestingstad Geertruidenberg op loopafstand.

Centrale ligging
Oude Haven ligt centraal aan de Donge. Met het historisch centrum van Raamsdonksveer en het hart van vestingstad Geertruidenberg op loopafstand.
Met de auto zit je vanuit Oude Haven via de A59 en A27 zo in Oosterhout, Breda, Waalwijk of Tilburg. Daarnaast verplaats je je met de bus gemakkelijk in de omgeving. Zin om de natuur in te trekken? Op de fiets of – nog leuker – met de boot ben je in een paar minuten in de Biesbosch.

--------------------------------------------------------------------------

Bij interesse in dit project, kunt u zich via de projectwebsite inschrijven voor een of meerdere bouwnummers. Indien het bouwnummer van uw voorkeur op dat moment nog beschikbaar is, dan kunnen wij het bouwnummer vrijblijvend voor u reserveren en plannen wij graag een afspraak in om het project en de woning uitgebreid aan u toe te lichten. Mocht het bouwnummer van uw voorkeur reeds gereserveerd zijn, dan wordt u automatisch op de reservelijst geplaatst en zullen wij contact met u opnemen indien het bouwnummer voor u vrijkomt. 

Kenmerken

  • StatusGereserveerd
  • Vraagprijs€ 535.000,- v.o.n.
  • Soort objectWoonhuis
  • Soort woningEengezinswoning
  • Type woningTwee onder één kapwoning
  • Bouwjaar2027
  • Bouwjaar periodeVANAF_2021_TM_2030
  • BouwvormNieuwbouw
  • LiggingenIn centrum, In woonwijk

Interesse in Oude Haven

"*" geeft vereiste velden aan

Vestiging Oosterhout

Keiweg 24

4901 JA Oosterhout

(0162) 447 447

Aangepaste openingstijden

Tijdens eerste kerstdag, tweede kerstdag en Nieuwjaarsdag zijn wij gesloten. Daarnaast zijn wij ook woensdagmiddag 24 december vanaf 12:30 uur en 31 december de hele dag gesloten. Daar buiten staan wij voor u klaar zoals u van ons gewend bent.

Fijne feestdagen! 

Team Van de Water