Skip to content

Oosterhout – Prinses Amaliastraat 57

Verkocht

Prinses Amaliastraat 1.504

4902 NT Oosterhout

Omschrijving

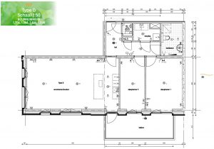
Type D
kenmerken

• Aantal: 4 (2e t/m 5e verdieping)
• Woonoppervlakte: ca 94 m² en een balkon van ca 14 m²
• Zonligging balkon: zuid (D) / west (D1)
• Parkeerplaats: toegewezen plaats op het terrein c.q. in garage
• Optie: slaapkamers samenvoegen of een slaapkamer bij de woonkamer betrekken

Dit zijn comfortabele appartementen op de eerste tot en met de vijfde verdieping. De vloeroppervlakten verschillen licht van elkaar.

Indelingsopties
Standaard worden deze appartementen opgeleverd met twee slaapkamers. In overleg met de wooncoach van de aannemer is het mogelijk om bijvoorbeeld van twee slaapkamers 1 grote slaapkamer te maken; een Masterbedroom
met hoofdletter M. Maar u kunt ook een van de slaapkamers opofferen voor een grotere woonkamer… Wat zijn úw wensen?

Ruime badkamer
De positie van de keuken staat in principe vast. De appartementen zijn vanzelfsprekend extra licht. Verder beschikt u over een ruime badkamer, een apart toilet, berging en een balkon of loggia. In beide gevallen bent u slechts een deur verwijderd van de frisse buitenlucht.

Zonnige balkons
Type A en B zijn georiënteerd op het oosten en hebben een loggia. Behalve type A op de vijfde verdieping: deze heeft een open balkon met fraai uitzicht. Typen C, D, E en F zijn uitgevoerd met een balkon. C en D zijn op het zonnige zuiden gericht, terwijl u bij E en F dankzij hun oriëntatie op het westen ook van de zonsondergang kunt genieten.

Kenmerken

  • StatusVerkocht
  • Soort objectAppartement
  • Bouwjaar2020
  • BouwvormNieuwbouw
  • LiggingenIn centrum, In woonwijk

Interesse in Prinses Amaliastraat

"*" geeft vereiste velden aan

Vestiging Oosterhout

Keiweg 24

4901 JA Oosterhout

(0162) 447 447

Aangepaste openingstijden

Tijdens eerste kerstdag, tweede kerstdag en Nieuwjaarsdag zijn wij gesloten. Daarnaast zijn wij ook woensdagmiddag 24 december vanaf 12:30 uur en 31 december de hele dag gesloten. Daar buiten staan wij voor u klaar zoals u van ons gewend bent.

Fijne feestdagen! 

Team Van de Water