Skip to content

Oosterhout – Prinses Amaliastraat 2

Verkocht

Prinses Amaliastraat 30

4902 NT Oosterhout

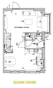
Omschrijving

4 Hoekwoningen van 5,70 m breed

Bouwnummers
1, 30, 39 en 46

Kenmerken
Wilt u echt iets anders, dan is dit uw kans. Deze hoekwoning is geheel anders van indeling. Door de voordeur aan de zijkant van de woning komt u in het midden van de woning binnen. In basis zit de keukenopstelling aan de voorkant van de woning. De woonkamer bevindt zich aan de royale tuin. En wat dacht u van de prachtige erker welke de woonkamer groter maakt en veel licht geeft? Vanuit uw luie stoel kijkt u door de erker naar wat er zich buiten afspeelt.
De mooie kopgevels zijn voorzien van een overstek met klossen om het dak extra accent te geven.

Uitbouwen
Optioneel is deze woning uit te bouwen aan de achterzijde. Door te kiezen voor een keukenopsteling aan de achterzijde van de woning ontstaat desgewenst een royale woonkeuken. Door de fraaie pui aan de achterzijde optioneel te voorzien van dubbele draaideuren creëert u bijna een buitenkeuken. Zittend aan de keukentafel door de erker wegkijkend wordt het genieten aan tafel.

Op de eerste verdiepingen vindt u drie volwaardige slaapkamers en een badkamer. De tweede verdieping kunt u naar eigen wens invullen.

Kenmerken

  • StatusVerkocht
  • Soort objectWoonhuis
  • Soort woningEengezinswoning
  • Type woningHoekwoning
  • Bouwjaar2021
  • BouwvormNieuwbouw
  • LiggingenIn woonwijk

Interesse in Prinses Amaliastraat

"*" geeft vereiste velden aan

Vestiging Oosterhout

Keiweg 24

4901 JA Oosterhout

(0162) 447 447

Aangepaste openingstijden

Tijdens eerste kerstdag, tweede kerstdag en Nieuwjaarsdag zijn wij gesloten. Daarnaast zijn wij ook woensdagmiddag 24 december vanaf 12:30 uur en 31 december de hele dag gesloten. Daar buiten staan wij voor u klaar zoals u van ons gewend bent.

Fijne feestdagen! 

Team Van de Water