Skip to content

Breda – Cosunpark 10A

Verkocht

Cosunpark 34

4814 ND Breda

Omschrijving

COSUN II

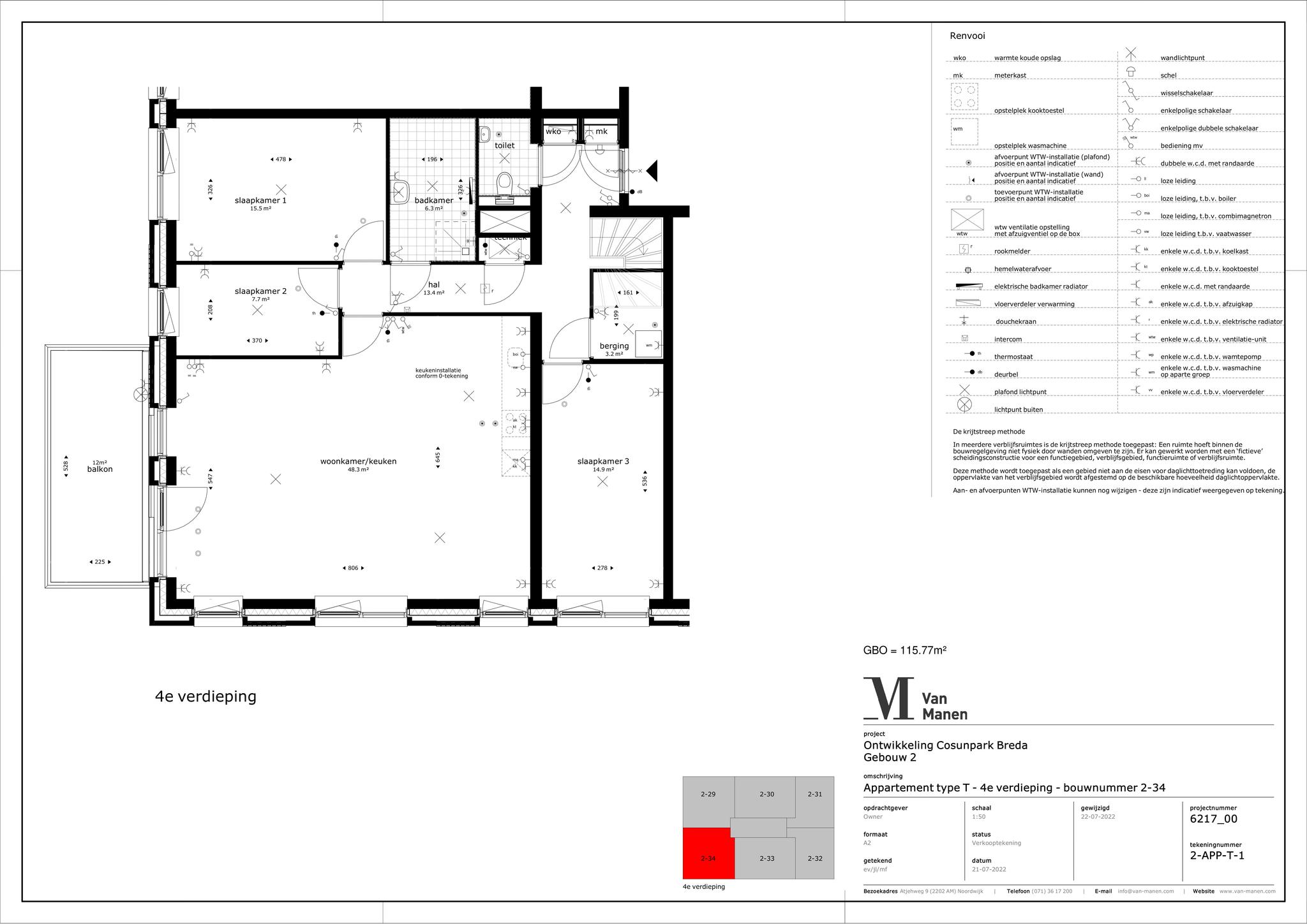
Cosun II biedt plaats aan 30 luxe koopappartementen verdeeld over 5 woonlagen. De woonoppervlaktes variëren van ca. 70 tot ca. 158 m². Alle woningen beschikken over royale buitenruimtes in de vorm van tuin, balkon of dakterras.

Cosun II heeft 3 hoofdwoningtypen, namelijk stadswoningen, appartementen met balkon en penthouses met balkon en dakterras.

Kenmerken:
• Ondergrondse private parkeerplaatsen
• Groene parksetting voor de deur
• Dichtbij binnenstad en uitvalswegen
• Aandacht voor duurzaamheid

PENTHOUSE MET BALKON EN DAKTERRAS
Dit unieke 5-kamer penthouse bestaat uit twee verdiepingen. Beide verdiepingen hebben een buitenruimte. De 4e verdieping beschikt over een balkon en de 5e verdieping over een riant dakterras, welke een schitterend uitzicht op de stad biedt.

• Gesitueerd op de 4e en 5e verdieping
• Royale woonoppervlakte van ca. 144 m²
• Met een balkon en ruim dakterras van ca. 34 m²
• Vier (slaap)kamers
• Hoogwaardige afwerking inclusief luxe badkamer

INTERESSE
Wil je graag meer informatie over dit project? Bezoek dan de projectwebsite. Bij interesse in één van de appartementen/stadswoningen kun je contact opnemen met ons kantoor in Breda of laat je gegevens achter via de projectwebsite en geef de bouwnummers van je voorkeur op via "mijn omgeving".

Kenmerken

  • StatusVerkocht
  • Soort objectAppartement
  • Bouwjaar2023
  • Bouwjaar periodeVANAF_2021_TM_2030
  • BouwvormNieuwbouw
  • LiggingenAan park

Interesse in Cosunpark

"*" geeft vereiste velden aan

Vestiging Breda

Keizerstraat 91 - 93

4811 HL Breda

(076) 5 24 24 00

Aangepaste openingstijden

Tijdens eerste kerstdag, tweede kerstdag en Nieuwjaarsdag zijn wij gesloten. Daarnaast zijn wij ook woensdagmiddag 24 december vanaf 12:30 uur en 31 december de hele dag gesloten. Daar buiten staan wij voor u klaar zoals u van ons gewend bent.

Fijne feestdagen! 

Team Van de Water