Skip to content

Breda – Cosunpark 2C

Verkocht

Cosunpark 3

4814 ND Breda

Omschrijving

** INLOOPOCHTEND OP DE BOUWLOCATIE: ZATERDAG 6 JULI TUSSEN 10.00 EN 12.00 UUR  **

INLOOPOCHTEND
Ben jij ook benieuwd naar de locatie van Cosun II en III en wil je een uniek kijkje achter de schermen? Op zaterdag 6 juli 2024 tussen 10.00 en 12.00 uur organiseren we een inloopochtend op de bouwlocatie.  Tijdens deze inloopochtend is er toegang tot Cosun VI. Dit gebouw bevindt zich in de afbouwfase, waardoor je optimaal kunt ervaren hoe wonen in een stadswoning straks kan zijn. De entree van de bouwplaats is te bereiken door te navigeren op de Zandoogjes 15. De auto kan geparkeerd worden op het nabijgelegen parkeerterrein en van daaruit zal er een looproute naar de bouwkeet worden uitgezet. TIP: trek makkelijke schoenen aan (die vies mogen worden).

Cosun II biedt plaats aan 33 luxe koopappartementen verdeeld over 5 woonlagen. De woonoppervlaktes variëren van ca. 70 tot ca. 158 m². Alle woningen beschikken over royale buitenruimtes in de vorm van tuin, balkon of dakterras.

Cosun II heeft 3 hoofdwoningtypen, namelijk stadswoningen, appartementen met balkon en penthouses met balkon en dakterras.

Kenmerken:
• Ondergrondse private parkeerplaatsen
• Groene parksetting voor de deur
• Dichtbij binnenstad en uitvalswegen
• Aandacht voor duurzaamheid

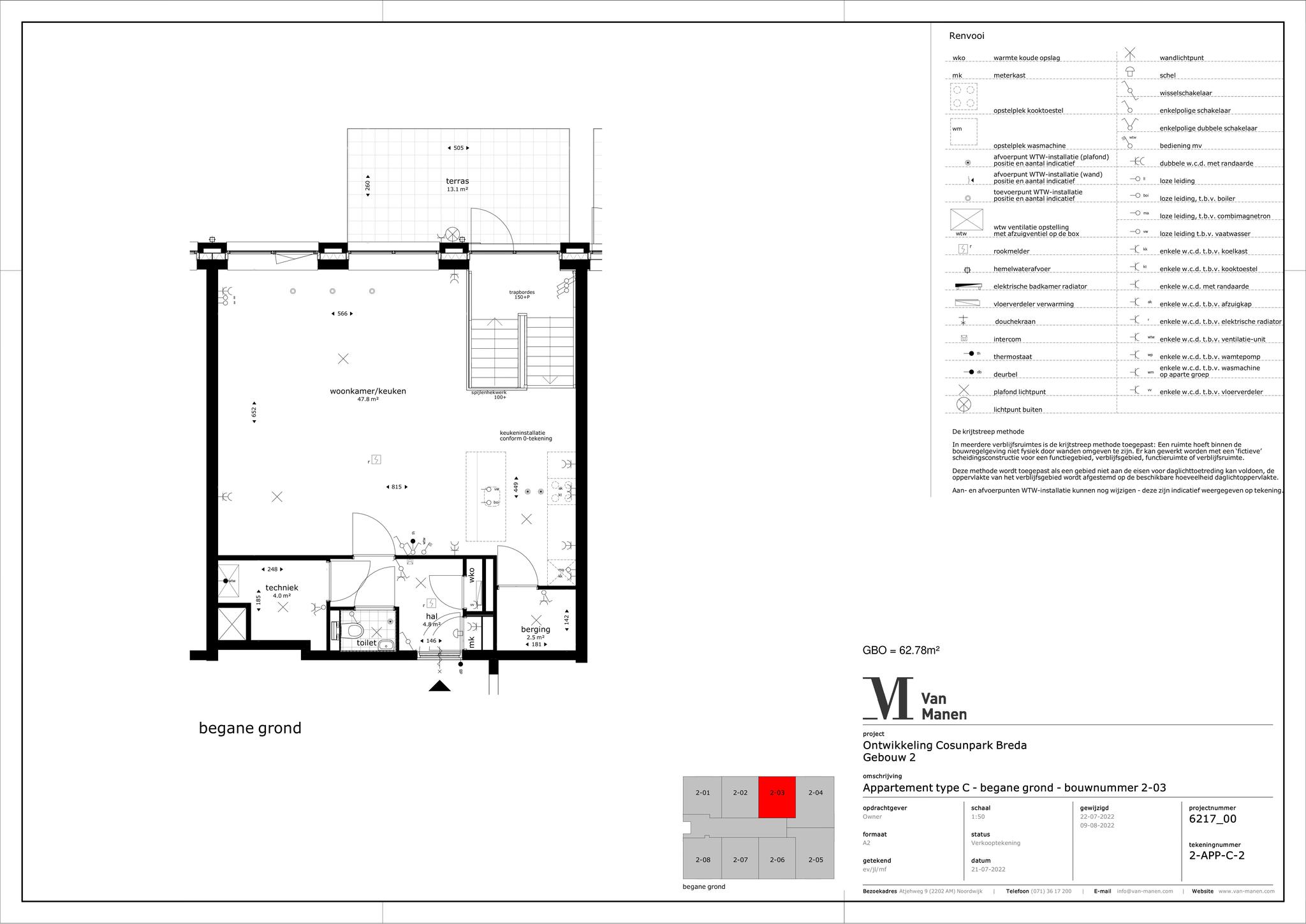
STADSWONING MET TUIN - BOUWNUMMER 3
Deze stadswoning geeft je de ruimte om comfortabel te wonen. Met een woonoppervlakte van ca. 105 m² een woonkamer met veel lichtinval en twee slaapkamers. Je vindt hier alles wat je nodig hebt om prettig te wonen.

• Gesitueerd op de begane grond en souterrain
• Royale woonoppervlakte van ca. 105 m²
• Met een tuin van ca. 13 m²
• Hoogwaardige afwerking inclusief luxe badkamer

Koopsom: € 460.000,00 v.o.n.

* In deze koopsom is het verplichte meerwerk reeds inbegrepen. Wil je hier meer informatie over ontvangen? Neem dan vrijblijvend contact met ons op.

INTERESSE
Wil je graag meer informatie over dit project? Bezoek dan de projectwebsite. Bij interesse in één van de appartementen/stadswoningen kun je contact opnemen met ons kantoor in Breda of laat je gegevens achter via de projectwebsite en geef de bouwnummers van je voorkeur op via "mijn omgeving".

Kenmerken

  • StatusVerkocht
  • Soort objectAppartement
  • Bouwjaar2023
  • Bouwjaar periodeVANAF_2021_TM_2030
  • BouwvormNieuwbouw
  • LiggingenAan park

Interesse in Cosunpark

"*" geeft vereiste velden aan

Vestiging Breda

Keizerstraat 91 - 93

4811 HL Breda

(076) 5 24 24 00

Aangepaste openingstijden

Tijdens eerste kerstdag, tweede kerstdag en Nieuwjaarsdag zijn wij gesloten. Daarnaast zijn wij ook woensdagmiddag 24 december vanaf 12:30 uur en 31 december de hele dag gesloten. Daar buiten staan wij voor u klaar zoals u van ons gewend bent.

Fijne feestdagen! 

Team Van de Water