Skip to content

Breda – Cosunpark 4F

Verkocht

Cosunpark 12

4814 ND Breda

Omschrijving

Cosun II biedt plaats aan 33 luxe koopappartementen verdeeld over 5 woonlagen. De woonoppervlaktes variëren van ca. 70 tot ca. 158 m². Alle woningen beschikken over royale buitenruimtes in de vorm van tuin, balkon of dakterras.

Cosun II heeft 3 hoofdwoningtypen, namelijk stadswoningen, appartementen met balkon en penthouses met balkon en dakterras.

Kenmerken:
• Ondergrondse private parkeerplaatsen
• Groene parksetting voor de deur
• Dichtbij binnenstad en uitvalswegen
• Aandacht voor duurzaamheid

HET APPARTEMENT
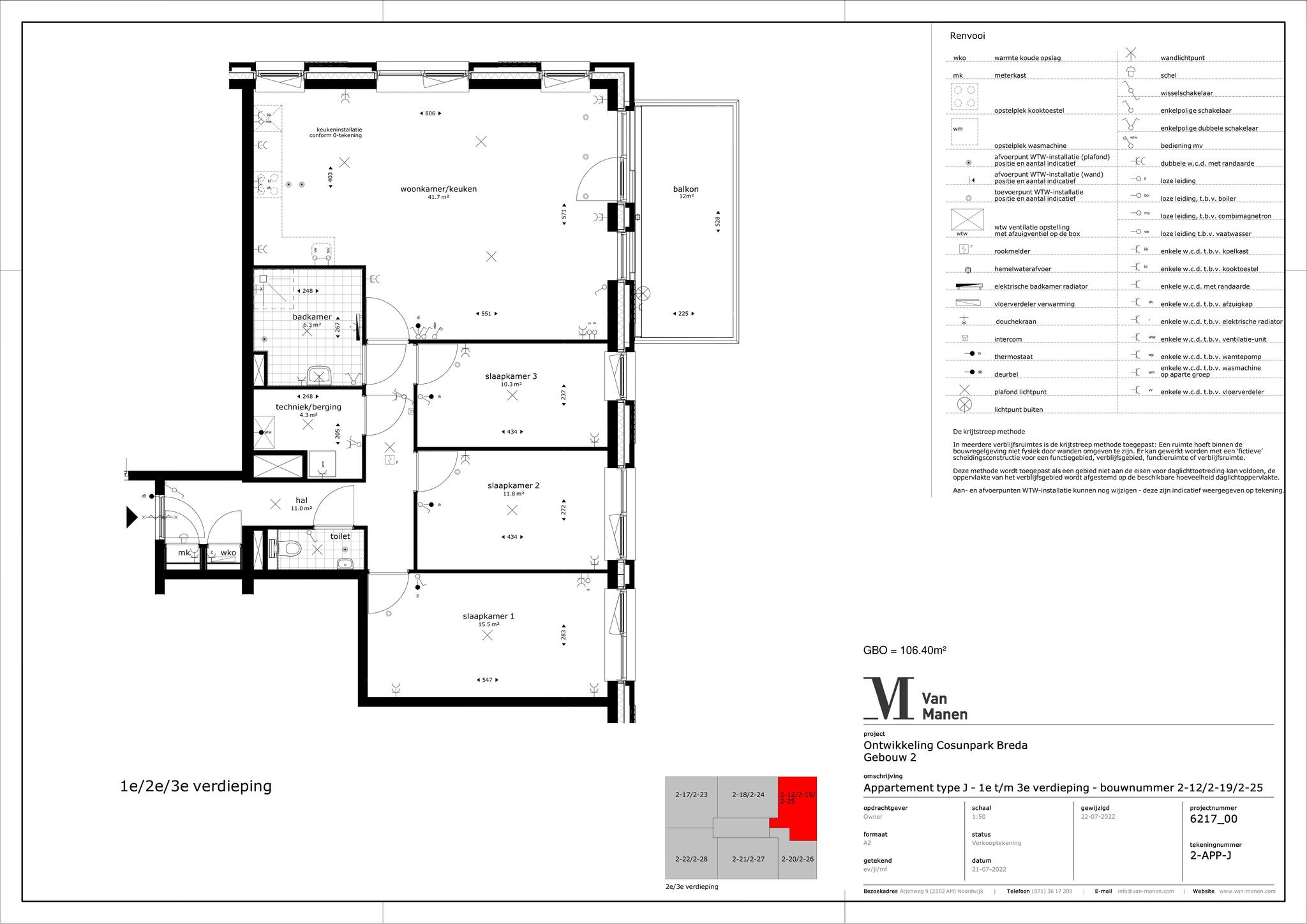
Het vierkamerappartement is gesitueerd op de eerste verdieping van het appartementencomplex. Alle appartementen beschikken over een buitenruimte waar je het hele jaar door heerlijk kunt vertoeven. Als dat niet genieten is?

• Gesitueerd op de 1e verdieping
• Royale woonoppervlakte van ca. 106 m²
• Met een balkon van ca. 12 m²
• Hoogwaardige afwerking inclusief luxe badkamer

IINTERESSE
Wil je graag meer informatie over dit project? Bezoek dan de projectwebsite. Bij interesse in één van de appartementen/stadswoningen kun je contact opnemen met ons kantoor in Breda of laat je gegevens achter via de projectwebsite en geef de bouwnummers van je voorkeur op via "mijn omgeving".

Kenmerken

  • StatusVerkocht
  • Soort objectAppartement
  • Bouwjaar2023
  • Bouwjaar periodeVANAF_2021_TM_2030
  • BouwvormNieuwbouw
  • LiggingenAan park

Interesse in Cosunpark

"*" geeft vereiste velden aan

Vestiging Breda

Keizerstraat 91 - 93

4811 HL Breda

(076) 5 24 24 00

Aangepaste openingstijden

Tijdens eerste kerstdag, tweede kerstdag en Nieuwjaarsdag zijn wij gesloten. Daarnaast zijn wij ook woensdagmiddag 24 december vanaf 12:30 uur en 31 december de hele dag gesloten. Daar buiten staan wij voor u klaar zoals u van ons gewend bent.

Fijne feestdagen! 

Team Van de Water