Skip to content

Breda – Charles Petitweg 37A10

Verhuurd

Charles Petitweg 37A10

Breda

Omschrijving

CHARLES PETITWEG 37-10, BREDA

Object:
De bedrijfsunit maakt deel uit van een kleinschalig bedrijfsverzamelcomplex nabij de noordelijke rondweg in Breda en heeft een totale oppervlakte van circa 190 m², verdeeld over de begane grond en eerste verdieping. De unit is luxe afgewerkt maakt deel uit van een kleinschalig bedrijfsverzamelcomplex

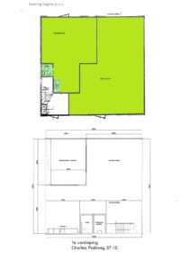
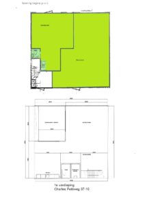
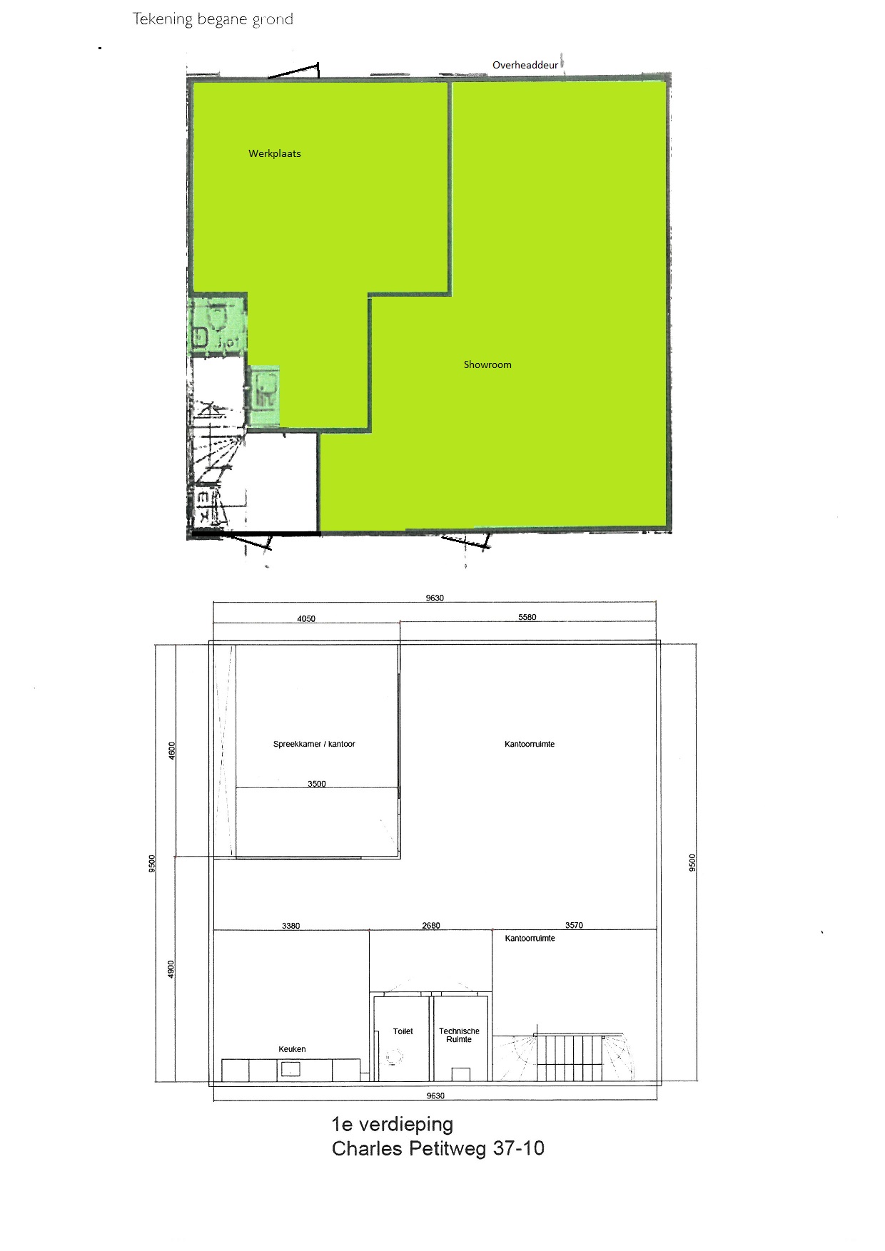
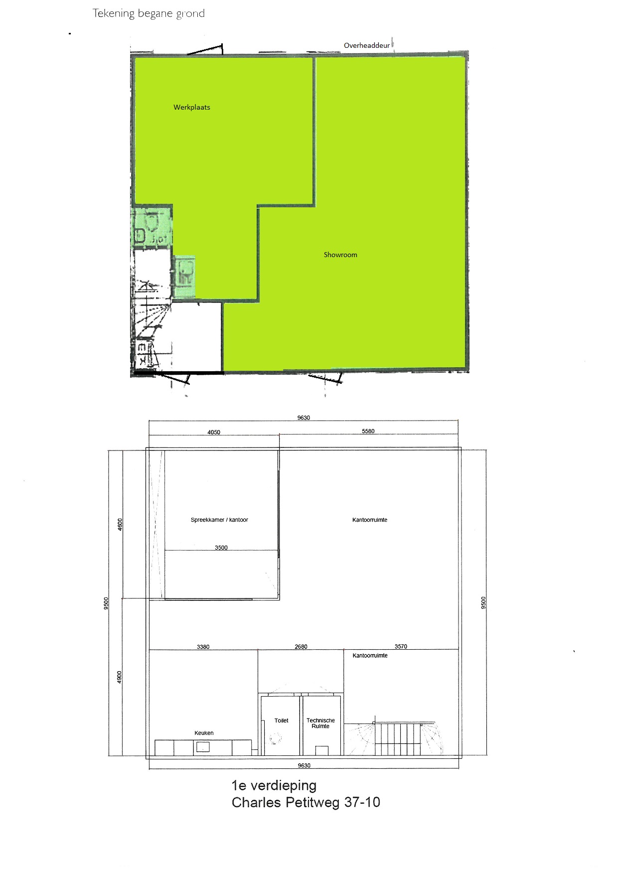
De begane grond omvat ca. 90 m² en bestaat uit een showroom met aansluitende werkplaats, voorzien van keukenblok en toiletruimte en de entree naar de bovenverdieping. Zowel de showroom als de werkplaats zijn eveneens als kantoorruimte te gebruiken. De eerste verdieping bestaat uit circa 90 m² kantoorruimte met kantine. Bij de bedrijfsunit zijn twee parkeerplaatsen gelegen voor eigen gebruik. Aan de achterzijde bevindt zich de overheaddeur naar de showroom en een extra toegangsdeur naar de werkplaats. Voor de overheaddeur is een extra kozijn geplaatst met openslaande deuren voor meer daglichttoetreding

Het object is goed bereikbaar door de aanwezigheid van diverse uitvalswegen in de directe nabijheid, welke in verbinding staan met de snelwegen A16, A27 en A58.

Oppervlakte:
De bedrijfsunit omvat totaal circa 190 m² kantoorruimte, verdeeld over begane grond en verdieping.

Parkeren:
Er behoren twee eigen parkeerplaatsen bij de bedrijfsunit.

Huurprijs:
De huurprijs bedraagt € 1.500,-- per maand exclusief servicekosten en BTW.

Indexering:
Jaarlijkse indexering voor het eerst één jaar na huuringangsdatum op basis van de Consumenten Prijs Index (CPI) Alle Huishoudens (2015=100) samengesteld door het Centraal Bureau voor de Statistiek.

Servicekosten:
De servicekosten bedragen € 75,-- per maand exclusief BTW als voorschot op de werkelijk gemaakte kosten voor:
- glasbewassing van de gehele unit;
- gevelschoonmaak van het complex;
- onderhoud aan het buitenterrein;
- dak inspectie;
- administratiekosten;
- waterverbruik.

De kosten van gas en elektra zijn niet bij de huurprijs inbegrepen. Deze kosten dienen door huurder rechtstreeks aan de desbetreffende nutsinstellingen te worden voldaan.

Opleveringsdatum:
in onderling overleg.

Voorzieningen:
Het object beschikt onder andere over de navolgende voorzieningen:

• airconditioning;
• CV met radiatoren;
• diverse scheidingswanden;
• kabelgoten met databekabeling;
• keuken met inbouwapparatuur;
• laminaatvloer op de verdieping en de werkplaats;
• gietvloer in de showroom;
• meterkast met aansluitingen gas, water elektra, data en telefonie;
• overheaddeur aan de achterzijde;
• extra openslaande dueren in de showroom aan de achterzijde;
• overheaddeur bij de showroom;
• systeemplafonds met LED-verlichtingsarmaturen;
• toiletruimte op de begane grond en verdieping.

Huurperiode:
Vijf jaar, met verlenging van telkens vijf jaar. Een kortere huurperiode is in overleg bespreekbaar.

Contract:
Standaard R.O.Z. contract.

Zekerheidsstelling:
Bankgarantie of waarborgsom ter hoogte van drie maanden huur inclusief servicekosten en BTW.

Huurbetaling:
Huurbetaling per maand vooruit.

Voorbehoud:
Een en ander geschiedt onder aanvaarding en uitdrukkelijk voorbehoud goedkeuring eigenaar.

BTW:
Indien huurder niet aan het 90% criterium voldoet, zal er van rechtswege sprake zijn van omzetbelasting vrijgestelde verhuur. Alsdan wordt de overeengekomen kale huurprijs exclusief omzetbelasting, zodanig verhoogd dat het voor verhuurder ontstane financiële nadeel wordt gecompenseerd.

Alle door ons verstrekte informatie is geheel vrijblijvend en uitsluitend bestemd voor geadresseerde. Alle gegevens zijn met zorg samengesteld en uit ons inziens betrouwbare bron afkomstig. Ten aanzien van de juistheid ervan kunnen wij echter geen aansprakelijkheid aanvaarden.

Kenmerken

  • StatusVerhuurd
  • Prijs€ 1.500,- p/m.
  • Servicekosten€ 75,- p/m.
  • BouwvormBestaande bouw
  • Bouwjaar1999

Interesse in Charles Petitweg 37A10

Laat hieronder uw gegevens achter en onze makelaar zal contact met u opnemen. Wilt u niet wachten? Neem dan telefonisch contact op!

"*" geeft vereiste velden aan

Vestiging Breda

Keizerstraat 91 - 93

4811 HL Breda

(076) 5 24 24 00

Aangepaste openingstijden

Tijdens eerste kerstdag, tweede kerstdag en Nieuwjaarsdag zijn wij gesloten. Daarnaast zijn wij ook woensdagmiddag 24 december vanaf 12:30 uur en 31 december de hele dag gesloten. Daar buiten staan wij voor u klaar zoals u van ons gewend bent.

Fijne feestdagen! 

Team Van de Water