Skip to content

Tilburg – Naardenstraat 6

Verkocht o.v.

Naardenstraat 6

Tilburg

Omschrijving

Aan een rustige straat bieden wij u deze moderne en goed onderhouden geschakelde twee onder een kapwoning met eigen oprit, carport en garage aan. De woning is instap klaar en voorzien van een luxe badkamer, in 2021 van een vernieuwde toiletruimte en in 2022 van een nieuwe keukeninrichting. Op de begane grond is een extra kamer aanwezig, die ideaal gebruikt kan worden als werk-/ speel-/ slaapkamer, waardoor de woning de mogelijkheid heeft voor vijf slaapkamers.

De woning is voorzien van dakisolatie, muurisolatie, vloerisolatie en dubbele beglazing. Hierdoor heeft de woning een groen energielabel B!

Deze ideale gezinswoning is erg praktisch ingedeeld en op de begane grond onder andere voorzien van een sfeervolle woonkamer, semi open keuken met moderne keukeninrichting, bijkeuken, multifunctionele ruimte en een inpandig bereikbare garage. Op de eerste verdieping zijn drie slaapkamers en een luxe badkamer aanwezig. Via een vaste trap is een open zolderruimte te bereiken die als extra slaapkamer kan worden gebruikt. De achtertuin is ruim van opzet en onder andere voorzien van een terras, gezellige veranda en een achterom. De tuin biedt volop privacy.

De woning ligt in een rustig deel van de straat in een kindvriendelijke omgeving in de wijk “Tuindorp De Kievit”. Om de hoek ligt een groen veld met diverse speeltoestellen. Het winkelcentrum “Heyhoef” en “De Vallei”, diverse scholen, station Reeshof, sportaccommodaties en een medisch centrum liggen nabij.
Diverse uitvalswegen zijn makkelijk te bereiken.

Bouwjaar: ca. 1996
Inhoud: ca. 527m³
Perceeloppervlakte: 264m²
Aanvaarding: in onderling overleg

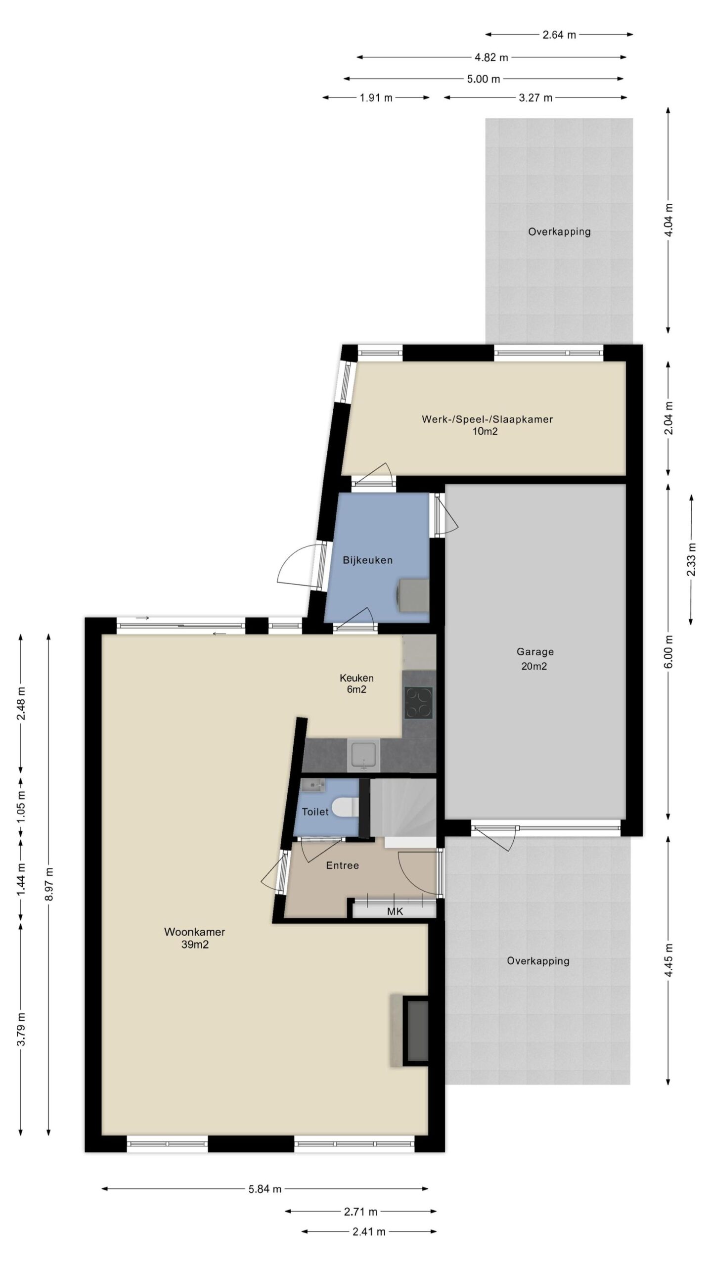
Begane grond
Entree, hal met marmeren vloer, meterkast (met glasvezel aansluiting) en een moderne toiletruimte (2021) voorzien van een vrij hangend toilet, fontein en strak stucwerkplafondafwerking met een inbouwspot.
De hal geeft toegang tot de woonkamer en trapopgang naar de eerste verdieping.

Sfeervolle en ruime woonkamer circa 45m² (inclusief keuken) met marmeren vloer voorzien van vloerverwarming, spachtelputz wandafwerking, schuurwerk plafondafwerking en een schouw met open haard (op dit moment niet in gebruik). Het zitgedeelte is op een iets hoger niveau gelegen. Aan de achterzijde bevindt zich het eetgedeelte met een schuifpui naar de achtertuin. In de woonkamer is veel glas aanwezig wat voor veel lichtinval zorgt.

Aan de achterzijde van de woning is de semi open gelegen met moderne keukeninrichting (2022) in hoekopstelling. De keukeninrichting is voorzien van een inductie kookplaat, afzuigkap, koelkast en een combi magnetron. In keuken zijn daarnaast inbouwspots aanwezig.

Praktische bijkeuken met dezelfde doorlopende marmeren vloer, spachtelputz wandafwerking en schuurwerk plafondafwerking. In de bijkeuken bevinden zich de aansluitingen voor de wasapparatuur en de unit voor de mechanische ventilatie.

Werk-/ speel-/ slaapkamer circa 10m² met laminaatvloer, spachtelputz wandafwerking en schuurwerk plafondafwerking met inbouwspots. Deze ruimte geeft zicht op de achtertuin.

Inpandig bereikbare garage met tegelvloer en een kantel- en loopdeur naar de oprit.

Eerste verdieping
In de trapopgang naar de eerste verdieping bevindt zich een lichtkoepel, wat voor een prettige en extra lichtinval zorgt.
De overloop geeft toegang tot drie slaapkamers en de badkamer.

Voorslaapkamer circa 15m² met twee vaste kasten, rolluiken en een deur naar het balkon, voorslaapkamer circa 11m² met vaste kast en een achterslaapkamer circa 6m². Alle slaapkamers zijn voorzien van een laminaatvloer en strakke wandafwerking.

Moderne en luxe badkamer voorzien van een dubbele vaste wastafel met meubel en spiegelkast, ligbad met thermostaat kraan, inloopdouche met regendouche en inbouwkranen, vrij hangend toilet en een design radiator. De badkamer is daarnaast voorzien van strak stucwerk plafondafwerking met inbouwspots.

Tweede verdieping
Via een vaste trap is een open zolderruimte circa 21m² te bereiken, die op dit moment in gebruik is als logeerkamer. Deze ruimte is voorzien van een laminaatvloer en strakke wandafwerking.

Buiten
Onderhoudsvriendelijke voortuin. De diepe oprit met carport geeft toegang tot de entree van de woning en de garage.

De ruime achtertuin is heerlijk diep en breed van opzet. De fraai aangelegde achtertuin ligt op het oosten en is voorzien van een terras, gezellige houten veranda, kunstgras, diverse borders en een achterom (de poort is in 2023 vernieuwd). Aan de achterzijde van de woning is in 2024 een nieuwe elektrisch bedienbare zonwering geplaatst.

Algemeen
- Ruime geschakelde twee onder een kapwoning met eigen oprit, carport en garage.
- De woning is goed onderhouden en instap klaar.
- Keukeninrichting 2022.
- Toilet 2021.
- Luxe badkamer.
- De woning is volledig geïsoleerd en voorzien van dubbele beglazing.
- Het meubilair kan in overleg worden overgenomen.
- Bij een verkoop wordt als basis gebruik gemaakt van het model van de koopovereenkomst, vastgesteld door de Nederlandse Vereniging van Makelaars in onroerende goederen NVM, de Consumentenbond en de Vereniging Eigen Huis. In deze koopovereenkomst wordt standaard de verplichting tot het storten van een waarborgsom of het stellen van een bankgarantie door de koper ter grootte van 10% van de koopsom opgenomen.
- Een koopovereenkomst komt tot stand onder de opschortende voorwaarde dat beide partijen de koopovereenkomst ondertekenen. Partijen kunnen derhalve noch aan een mondelinge overeenkomst, noch aan een schriftelijke bevestiging daarvan, rechten ontlenen.
- Deze brochure bestaat uit vrijblijvende informatie en is met de grootste zorg samengesteld, echter aan de inhoud van deze brochure kunnen geen rechten worden ontleend. Indelingstekeningen en maatvoeringen zijn slechts indicatief, kunnen afwijken van de werkelijke situatie en zijn uitsluitend bedoeld om een indruk te geven van de indeling.

Kenmerken

  • StatusVerkocht o.v.
  • Vraagprijs€ 569.000,- k.k.
  • Soort objectWoonhuis
  • Soort woningEengezinswoning
  • Type woningGeschakelde twee onder één kapwoning
  • Bouwjaar1996
  • BouwvormBestaande bouw
  • LiggingenAan rustige weg, In woonwijk

Interesse in Naardenstraat 6?

Laat hieronder uw gegevens achter en onze makelaar zal contact met u opnemen. Wilt u niet wachten? Neem dan telefonisch contact op!

"*" geeft vereiste velden aan

Paul Hulskes

Makelaar RM

Aangepaste openingstijden

Tijdens eerste kerstdag, tweede kerstdag en Nieuwjaarsdag zijn wij gesloten. Daarnaast zijn wij ook woensdagmiddag 24 december vanaf 12:30 uur en 31 december de hele dag gesloten. Daar buiten staan wij voor u klaar zoals u van ons gewend bent.

Fijne feestdagen! 

Team Van de Water