Skip to content

Tilburg – Molenbochtstraat 79

Verkocht o.v.

Molenbochtstraat 79

Tilburg

Omschrijving

Op een rustige locatie – op loopafstand van het stadscentrum én het Besterdplein – bieden wij u deze karakteristieke hoekwoning met diepe achtertuin en grote stenen berging aan. De woning is goed onderhouden en in 2019 onder andere voorzien van een nieuwe meterkast, op een aantal plaatsen nieuwe vloer, een nieuwe keukeninrichting en in 2022 van een nieuwe badkamer.

De woning beschikt op de begane grond over een sfeervolle woonkamer, moderne en uitgebreide keuken, bijkeuken en een moderne badkamer. Op de eerste verdieping zijn drie ruime slaapkamers (waarvan twee met dakkapel) aanwezig. De tweede verdieping bestaat uit een ruime bergzolder. De diepe achtertuin biedt volop mogelijkheden en is naast een grote stenen berging voorzien van een achterom.

De woning is in de geliefde wijk “De Besterd” gelegen. Om de hoek ligt het Besterdplein met al zijn (winkel-)voorzieningen en op loopafstand zijn het bruisende stadscentrum, de populaire Spoorzone en het Centraal Station gelegen. Diverse scholen, kinderopvang en sportfaciliteiten zijn in de buurt aanwezig.
Via de Ringbaan-Oost is er een goede ontsluiting naar de A65 en A58 richting onder andere de steden Breda, Eindhoven en 's-Hertogenbosch.

Bouwjaar: ca. 1926
Inhoud: ca. 334m³
Perceeloppervlakte: 190m²
Aanvaarding: in onderling overleg

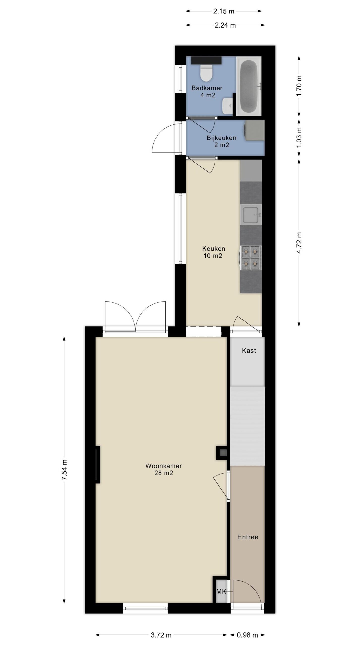
Begane grond
Entree, hal met prachtige tegelvloer (2019), spachtelputz wandafwerking en een vernieuwde meterkast (2019). De hal geeft toegang tot de woonkamer en trapopgang naar de eerste verdieping.

Sfeervolle woonkamer circa 28m² (exclusief keuken) met PVC vloer, spachtelputz wandafwerking, balken plafond met inbouwspots en twee openslaande tuindeuren.

Semi open keuken circa 10m² met moderne keukeninrichting (2019) in rechte opstelling. De keukeninrichting is voorzien van een granieten blad, 5-pits gasstel met 3 ovens (Stoves), afzuigkap, koelkast met vriesvak en een vaatwasser. In de keuken zijn inbouwspots aanwezig en in 2019 is de keuken tevens voorzien van een prachtige tegelvoer en strak stucwerk wand- en plafondafwerking. Er is daarnaast een praktische trapkast aanwezig voor extra provisie.

Bijkeuken met dezelfde doorlopende tegelvoer (2019), de aansluitingen voor de wasapparatuur, de c.v. combi ketel (Vaillant hrSolide plus VHR circa 2010) en een deur naar de achtertuin.

Moderne badkamer (2022) voorzien van een waskom, ligbad met douchegelegenheid en een regendouche, vrij hangend toilet en strak stucwerk wandafwerking.

Eerste verdieping
Overloop met laminaatvloer, spachtelputz wandafwerking, stucwerk plafondafwerking en een kunststof dakkapel. De overloop geeft toegang tot drie slaapkamers.

Voorslaapkamer circa 13m² met kunststof dakkapel, voorslaapkamer circa 5m² met dakraam en een vaste kastenwand en een achterslaapkamer circa 8m² met kunststof dakkapel.

Alle slaapkamers zijn voorzien van een laminaatvloer, spachtelputz wandafwerking en stucwerk plafondafwerking.

Tweede verdieping
Middels een vlizotrap is vanuit de achterslaapkamer een ruime bergzolder te bereiken.

Buiten
Ruim 18 meter diepe achtertuin op het noorden gelegen. Vanwege de diepte van de achtertuin is er altijd wel een plekje waar u van de zon kunt genieten!

De achtertuin is bestraat, voorzien van een groot verhoogd terras en achterin de tuin is een grote stenen berging met elektra en water aanwezig. De achterom komt via een breed pad aan de Molenbochtstraat uit.

Algemeen
- Karakteristieke hoekwoning met grote stenen berging.
- Diepe achtertuin.
- Keukeninrichting 2019.
- Nieuwe meterkast 2019.
- Badkamer 2022.
- Op loopafstand van het stadscentrum en het Besterdplein.
- De dakbedekking van de aanbouw en berging zijn in 2015 vernieuwd.
- De woning is voorzien van dubbele beglazing (exclusief voordeur).
- De woning is grotendeels voorzien van kunststof kozijnen.
- Gezien de leeftijd van de woning zal er bij verkoop een ouderdomsclausule en een asbestclausule in de koopovereenkomst worden opgenomen. Voor toelichting neem contact op met de makelaar.
- Bij een verkoop wordt als basis gebruik gemaakt van het model van de koopovereenkomst, vastgesteld door de Nederlandse Vereniging van Makelaars in onroerende goederen NVM, de Consumentenbond en de Vereniging Eigen Huis. In deze koopovereenkomst wordt standaard de verplichting tot het storten van een waarborgsom of het stellen van een bankgarantie door de koper ter grootte van 10% van de koopsom opgenomen.
- Een koopovereenkomst komt tot stand onder de opschortende voorwaarde dat beide partijen de koopovereenkomst ondertekenen. Partijen kunnen derhalve noch aan een mondelinge overeenkomst, noch aan een schriftelijke bevestiging daarvan, rechten ontlenen.
- Deze brochure bestaat uit vrijblijvende informatie en is met de grootste zorg samengesteld, echter aan de inhoud van deze brochure kunnen geen rechten worden ontleend. Indelingstekeningen en maatvoeringen zijn slechts indicatief, kunnen afwijken van de werkelijke situatie en zijn uitsluitend bedoeld om een indruk te geven van de indeling.

Kenmerken

  • StatusVerkocht o.v.
  • Vraagprijs€ 385.000,- k.k.
  • Soort objectWoonhuis
  • Soort woningEengezinswoning
  • Type woningHoekwoning
  • Bouwjaar1926
  • BouwvormBestaande bouw
  • LiggingenAan rustige weg, In centrum, In woonwijk

Interesse in Molenbochtstraat 79?

Laat hieronder uw gegevens achter en onze makelaar zal contact met u opnemen. Wilt u niet wachten? Neem dan telefonisch contact op!

"*" geeft vereiste velden aan

Paul Hulskes

Makelaar RM

Aangepaste openingstijden

Tijdens eerste kerstdag, tweede kerstdag en Nieuwjaarsdag zijn wij gesloten. Daarnaast zijn wij ook woensdagmiddag 24 december vanaf 12:30 uur en 31 december de hele dag gesloten. Daar buiten staan wij voor u klaar zoals u van ons gewend bent.

Fijne feestdagen! 

Team Van de Water