Skip to content

Tilburg – IJzerstraat 13

Verkocht

IJzerstraat 13

Tilburg

Omschrijving

Welkom in dit unieke herenhuis in het centrum van Tilburg, verdeeld over meerdere verdiepingen en met een verrassend ruime en veelzijdige indeling. De woning beschikt over onder andere een volwaardige studio op de derde en bovenste verdieping, meerdere slaapkamers, twee terrassen en een praktische berging met kelder.

De woning is uitstekend geïsoleerd en voorzien van dak-, muur- en vloerisolatie, evenals dubbele beglazing. In 2022 is een groen energielabel A toegekend. Sindsdien zijn diverse energiebesparende maatregelen verder doorgevoerd, waardoor de woning inmiddels nóg duurzamer en energiezuiniger is geworden.

Zo zijn er zonnepanelen geplaatst en is er een nieuwe cv-ketel geïnstalleerd. Daarnaast beschikt de tweede verdieping over een moderne airco-installatie die niet alleen koelt, maar ook efficiënt kan verwarmen. Deze installatie heeft voldoende capaciteit om de gehele tweede verdieping comfortabel te verwarmen, wat bijdraagt aan een lager gasverbruik.

Ligging:
Waar licht, rust en stad elkaar ontmoeten. Wonen op een toplocatie in hartje Tilburg betekent dat de stad altijd bruist, terwijl je zelf de rust vindt in een prachtig herenhuis. Dit fraaie herenhuis ligt op een A-locatie in het centrum: de terrassen, restaurants en winkels liggen letterlijk om de hoek. Op loopafstand vind je bovendien het Centraal Station en de gezellige Piushaven, dé plek voor een hapje, drankje of een ontspannen wandeling langs het water.

Bouwjaar: ca. 2008
Woonoppervlakte: ca. 182 m²
Inhoud: ca. 717 m³
Twee dakterrassen: samen ca. 33 m²
Aanvaarding: In onderling overleg

Indeling:
Kelder:
Sta hoogte kelder, toegankelijk vanuit de berging/garage.

Begane grond:
Entree met hal, garderobe en meterkast. Vanuit hier is er toegang tot de berging/garage, voorzien van een tegelvloer en een sectionaaldeur. Deze ruimte wordt momenteel gebruikt voor opslag en het stallen van fietsen; een kleine auto zou hier eventueel kunnen parkeren (let op: er is sprake van een hogere opritdrempel, hier zal een voorziening voor moeten worden aangelegd).

Vanuit de berging is er toegang tot een kelder met stahoogte.

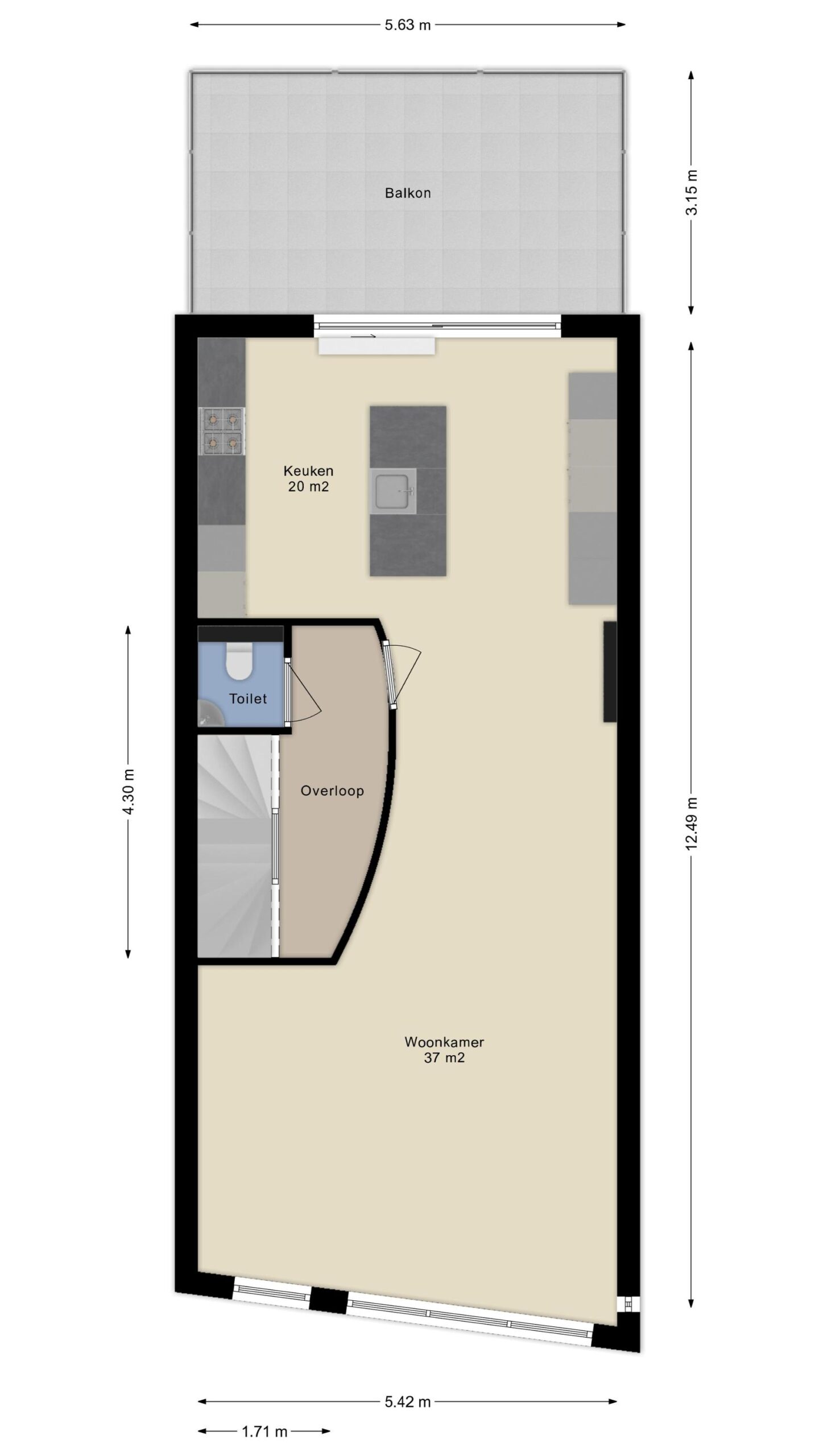
Eerste verdieping:
De eerste verdieping vormt het leefgedeelte van de woning, waar de woonkamer en keuken samenkomen in één open ruimte. De verdieping is afgewerkt met een gietvloer, gestucte wanden en plafonds en voorzien van inbouwspots.

De keuken is in 2026 vergroot en gemoderniseerd, waarbij een stijlvolle hoge kastenwand is geplaatst en het bestaande keukengedeelte professioneel is gewrapt. Dit zorgt voor een moderne en verzorgde uitstraling.

De keuken beschikt over diverse inbouwapparatuur. Zo zijn de vaatwasser en de koel-vriescombinatie recent vervangen door energiezuinige exemplaren. Daarnaast zijn er twee extra ovens toegevoegd, beide voorzien van een stoomfunctie, wat zorgt voor extra kookcomfort en veelzijdigheid. Verder is de keuken uitgerust met een 5-pits gasfornuis en een Quooker.

Het kookeiland vormt een centraal en sfeervol element in de ruimte en biedt extra werk- en opbergruimte. De keuken is daarnaast voorzien van mechanische ventilatie.

Vanuit de keuken is er toegang tot een terras op het westen, waar in de middag en avond van de zon kan worden genoten. Het terras is voorzien van een elektrisch zonnescherm.

Tweede verdieping:
Op deze verdieping bevinden zich twee slaapkamers, een badkamer en een multifunctionele ruimte.

De slaapkamer aan de voorzijde is afgewerkt met een gietvloer, gestucte wanden en plafonds en beschikt over een ruime inbouwkast. Vanuit deze kamer is er direct toegang tot de badkamer.

De badkamer is uitgevoerd met grijze tegelafwerking en voorzien van een douche, dubbele wastafel met vernieuwd meubel (2026), toilet en radiator.

Vanuit de badkamer is een multifunctionele ruimte bereikbaar, momenteel in gebruik als werkplek en opstelplaats voor de wasmachine en droger. Deze ruimte is eveneens voorzien van een gietvloer.

Aansluitend bevindt zich de tweede slaapkamer aan de achterzijde, afgewerkt met een PVC vloer, deels behang en deels gestucte wanden, en voorzien van een airco.

Derde verdieping:
De zolder is bereikbaar via een vaste trap en afsluitbaar met een schuifdeur. Hier is een zelfstandige studio gerealiseerd.

De ruimte is open van opzet en beschikt over een kleine keukenopstelling met kraan, elektrische kookplaat en koelkast. Daarnaast is er een badkamer aanwezig met een inloopdouche, wastafel en toilet.

Vanuit de studio is er toegang tot het tweede dakterras op het oosten. Verder is er een separate kast aanwezig met de cv-ketel en mechanische ventilatie, waar tevens ruimte is voor een wasmachine en droger (momenteel staan deze hier niet).

De zolder is afgewerkt met een laminaatvloer en gestucte wanden en plafonds en voorzien van een airco (koelen en verwarmen).

Bijzonderheden:
• Herenhuis in het centrum van Tilburg;
• Volwaardige studio op zolder met eigen voorzieningen;
• Twee terrassen (oost en west);
• Meerdere slaapkamers en multifunctionele ruimtes;
• Gietvloer op de leefverdieping en deels op de tweede verdieping;
• Keuken uitgebreid en gemoderniseerd;
• Badkamermeubel vernieuwd in 2026;
• Airconditioning aanwezig op meerdere verdiepingen;
• Berging/garage met kelder.

Aanvullend:
De woning is juridisch gesplitst in een appartementsrecht in verband met een leiding van het naastgelegen pand. Er zijn geen maandelijkse servicekosten; enkel de opstalverzekering wordt jaarlijks voldaan. Verdere informatie hierover is beschikbaar via de documentatie in move.

Algemeen:
• Bij een verkoop wordt als basis gebruik gemaakt van het model van de koopovereenkomst, vastgesteld door de Nederlandse Vereniging van Makelaars in onroerende goederen NVM, de Consumentenbond en de Vereniging Eigen Huis. In deze koopovereenkomst wordt standaard de verplichting tot het storten van een waarborgsom of het stellen van een bankgarantie door de koper ter grootte van 10% van de koopsom opgenomen.
• Een koopovereenkomst komt tot stand onder de opschortende voorwaarde dat beide partijen de koopovereenkomst ondertekenen. Partijen kunnen derhalve noch aan een mondelinge overeenkomst, noch aan een schriftelijke bevestiging daarvan, rechten ontlenen.
• Deze brochure bestaat uit vrijblijvende informatie en is met de grootste zorg samengesteld, echter aan de inhoud van deze brochure kunnen geen rechten worden ontleend. Indelingstekeningen en maatvoeringen zijn slechts indicatief, kunnen afwijken van de werkelijke situatie en zijn uitsluitend bedoeld om een indruk te geven van de indeling.

Kenmerken

  • StatusVerkocht
  • Soort objectWoonhuis
  • Soort woningHerenhuis
  • Type woningTussenwoning
  • Bouwjaar2008
  • BouwvormBestaande bouw
  • LiggingenAan rustige weg, In centrum

Interesse in IJzerstraat 13?

Laat hieronder uw gegevens achter en onze makelaar zal contact met u opnemen. Wilt u niet wachten? Neem dan telefonisch contact op!

"*" geeft vereiste velden aan

Aangepaste openingstijden

Tijdens eerste kerstdag, tweede kerstdag en Nieuwjaarsdag zijn wij gesloten. Daarnaast zijn wij ook woensdagmiddag 24 december vanaf 12:30 uur en 31 december de hele dag gesloten. Daar buiten staan wij voor u klaar zoals u van ons gewend bent.

Fijne feestdagen! 

Team Van de Water