Goirkestraat 79
Tilburg
Afbeeldingen





























Omschrijving
INSCHRIJVINGSTERMIJN VOOR HET PLANNEN VAN BEZICHTIGINGEN IS VERSTREKEN.
Goirkestraat 79, 5046 GE Tilburg
Object:
Stichting WonenBreburg is eigenaar van het karakteristieke vrijstaande gebouw aan de Goirkestraat 79 in Tilburg en is voornemens dit gebouw te verkopen.
Deze verkoopinformatie geeft een beknopte beschrijving van het gebouw en het proces van het verkooptraject. Samen met de 'verkoopdocumenten' vormt deze informatie de basis waarop geïnteresseerden in de gelegenheid worden gesteld om zich te oriënteren op de mogelijkheden van het gebouw en het perceel.
N.B. namens stichting WonenBreburg bieden wij ook het gebouw aan de Boerhaavestraat 40 in Tilburg voor verkoop aan. Dat verkoopproces loopt gelijk met het verkoopproces van dit gebouw. Is hier ook interesse in? Laat het ons dan weten!
Het gebouw:
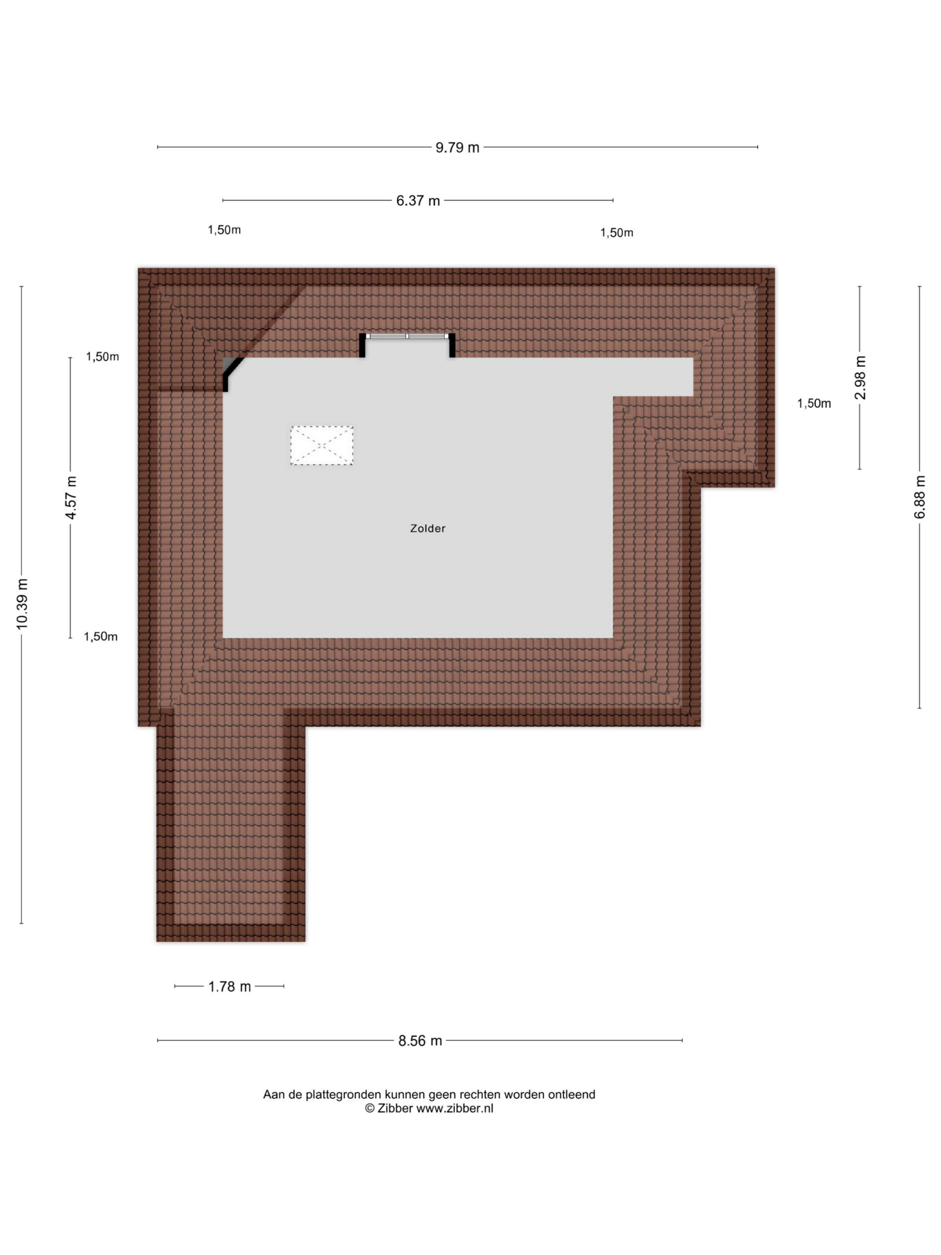
Het gebouw beschikt over een centrale entree die toegang geeft tot de begane grond, waar zich drie slaapkamers, een woonkamer en een eetkamer met open keuken bevinden. Daarnaast is de begane grond voorzien van een douche en een toilet. Via een bordestrap is de eerste verdieping bereikbaar. Op deze verdieping bevinden zich vijf slaapkamers, waarvan twee zijn voorzien van een aangrenzende woonkamer, evenals twee doucheruimten en een toilet. Vanuit een van de slaapkamers leidt een trap naar de bergzolder. Het geheel is gelegen op een perceel van 1.455 m². Het terrein is deels bestraat met klinkers, deels voorzien van grind en deels onverhard. In de tuin staat een berging die aan beide zijden is voorzien van een overkapping.
Huidig gebruik:
Door middel van een overeenkomst van lastgeving wordt het pand tijdelijk beheerd door Ad Hoc. Het pand is momenteel in gebruik als anti-kraakwoning.
Oppervlakte:
Het object omvat ca. 399,3 m² GO en 660,5 m² BVO (excl. externe buitenruimte), als volgt onderverdeeld:
Begane grond ca. 151 m² GO - ca. 188 m² BVO (incl. buitenruimte)
Eerste verdieping ca. 130,8 m² GO - ca. 165,9 m² BVO (incl. buitenruimte)
Tweede verdieping ca. 117,50 m² GO - ca. 157,3 BVO
Zolder ca. 81,5 m² BVO
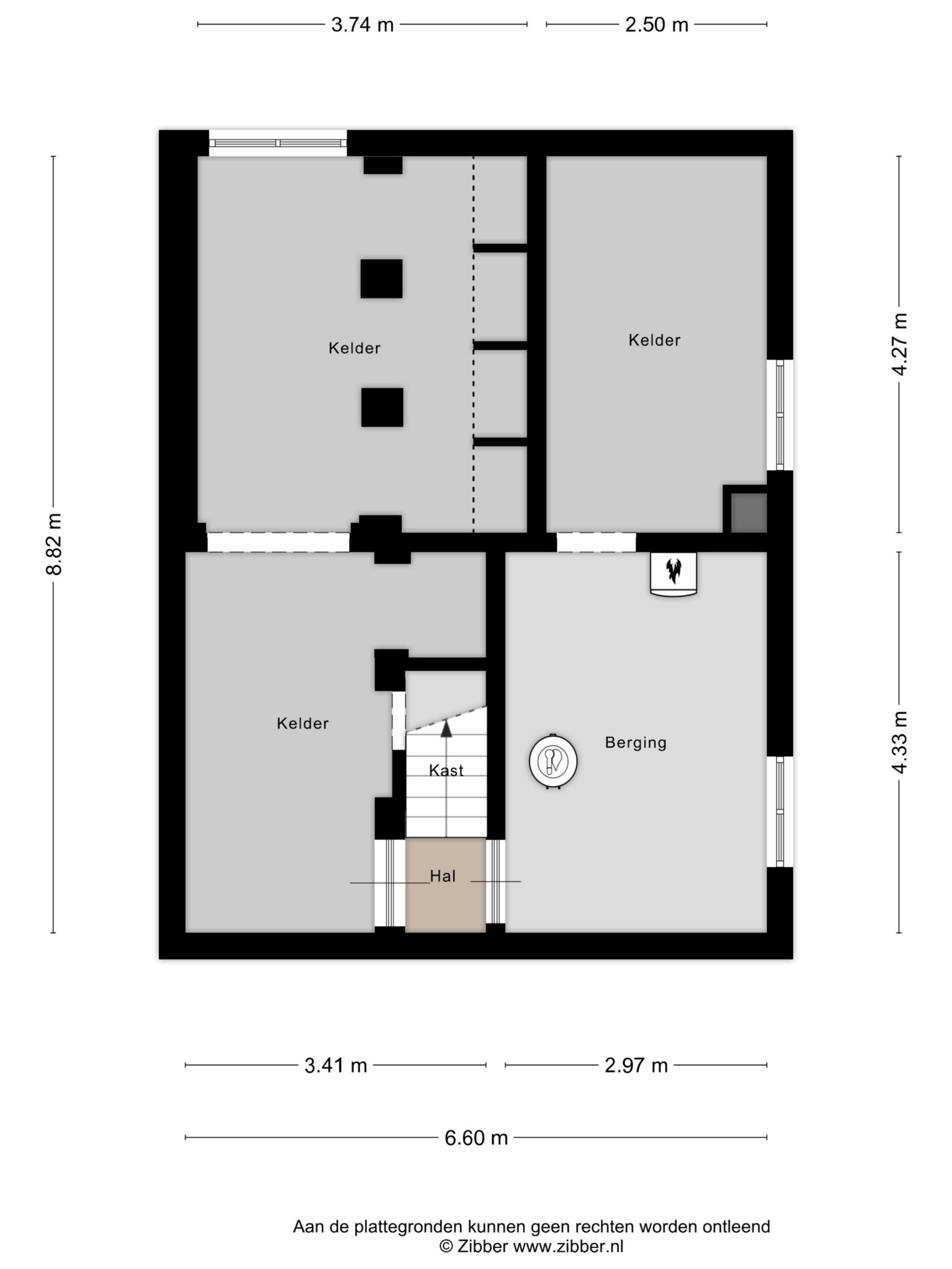
kelder ca. 67,8 m² BVO
Daarnaast beschikt het pand over ca. 88,2 m² aan overige inpandige ruimte.
Parkeren:
Op het eigen terrein is voldoende parkeergelegenheid.
Contract:
In de dataroom zijn zowel een standaard NVM-koopovereenkomst voor bedrijfs-onroerendgoed als een NVM-koopovereenkomst voor bestaande eengezinswoningen opgenomen. Enkel wanneer de koper en zijn gezin het pand permanent gaan bewonen, al dan niet toegestaan door het vigerende omgevingsplan, wordt geopteerd voor de NVM-koopovereenkomst voor bestaande eengezinswoningen.
In alle overige gevallen wordt de NVM-koopovereenkomst voor bedrijfs-onroerend goed gehanteerd.
Notaris:
De verkoop verloopt via de projectnotaris van de verkoper, te weten via De Kerf & Van Sprang Notarissen te Tilburg. Derhalve is deze notaris in de concept koopovereenkomst reeds opgenomen.
Zekerheidsstelling:
Waarborgsom ter grootte van 10% van de koopsom.
Kadaster:
Gemeente: Tilburg
Sectie: O
Nummers: 1765
Grootte: 1.455 m²
Verkoopproces/bijzonderheden:
Deze verkoopinformatie, tezamen met de verkoopdocumenten, is opgesteld om potentiële kopers te informeren over de voorgenomen verkoop van het complex.
Geïnteresseerden kunnen zich tot en met 13 oktober 2025, 12:00 uur aanmelden voor de bezichtigingsdagen op 20, 21, 22, 23 of 24 oktober 2025.
Na de bezichtigingsdagen is er tevens gelegenheid tot het schriftelijk stellen van vragen. De vragen dienen uiterlijk 7 november 2025, 12:00 uur per e-mail toegezonden te worden aan Bart van de Water. De antwoorden op de schriftelijk gestelde vragen worden in een nota van toelichting op uiterlijk 21 november 2025 verstrekt. De nota van toelichting wordt onderdeel van de inschrijfdocumenten.
Gedurende het verkoopproces loopt de communicatie via Van de Water Bedrijfsmakelaars, contactpersoon: Bart van de Water (bac@vandewatergroep.nl).
Uw bod dient uiterlijk op 5 december 2025, 12:00 uur te zijn ingediend.
Bieden namens ''nader te noemen meester'' is niet toegestaan. Verkoper sluit een koopovereenkomst met de bieder aan wie gegund wordt. Deze bieder is verantwoordelijk voor de nakoming van de koopovereenkomst. Ook bij de levering dient er dus aan de bieder geleverd te worden.
Belangrijke data op een rij:
- Aanmelden bezichtigingsdagen uiterlijk 13 oktober 2025, 12:00 uur;
- Bezichtigingsmogelijkheden op 20, 21, 22, 23 of 24 oktober 2025;
- Schriftelijke vragen indienen op uiterlijk 7 november 2025, 12:00 uur;
- Nota van toelichting uiterlijk 21 november 2025;
- Indienen bieding uiterlijk 5 december 2025, 12:00 uur;
- Einde termijn van ‘beraad’ 19 december 2025;
- Levering notaris uiterlijk 30 juni 2026, of zoveel eerder als partijen nader overeenkomen.
Voorbehoud:
Een en ander geschiedt onder aanvaarding en uitdrukkelijk voorbehoud en definitieve goedkeuring van het Bestuur van Stichting WonenBreburg.
Stichting WonenBrebrug is verplicht een integriteitsonderzoek naar koper in te stellen. Koper dient op eigen titel een VOGnp en voor zover van toepassing een VOGrp aan te vragen en te overhandigen bij de bieding.
BTW:
Er is geen BTW van toepassing.
Antispeculatiebeding:
Indien koper binnen twee (2) jaar na ondertekening van de akte van levering tot vervreemding van het verkochte, (of een gedeelte daarvan), overgaat, dan is koper een boete van 20% van de koopsom ter zake van iedere overtreding aan verkoper verschuldigd. Onder vervreemding wordt verstaan: levering van eigendom, uitgifte in erfpacht, opstal of vruchtgebruik, verpachten of het “om niet” in gebruik afstaan, voorts iedere (obligatoire) overeenkomst die de strekking heeft een derde de economische eigendom te verschaffen, dit alles in de ruimste zin.
Verdere uitwerking van het antispeculatiebeding is opgenomen in de concept koopovereenkomst, die is terug te vinden in de verkoopinformatie.
Ander gebruik:
De huidige bestemming van het perceel is ‘gemengd’. Dit houdt ook in dat het pand eveneens geschikt is voor kantoren tot maximaal 250 m² bvo per zelfstandige eenheid, met een maximum van 700 m² per bestemmingsvlak, woonhuis en kamerverhuur.
Volgens de regels in het huidige omgevingsplan is het toegestaan om voor kamerverhuur maximaal aan vijf personen te verhuren, of aan maximaal twaalf personen in het geval van beschermd wonen.
Wenst de toekomstig eigenaar aan meer personen verhuren, dan moet hiervoor een vergunning worden aangevraagd om af te wijken van het omgevingsplan.
Alle door ons verstrekte informatie is geheel vrijblijvend en uitsluitend bestemd voor geadresseerde. Alle gegevens zijn met zorg samengesteld en uit ons inziens betrouwbare bron afkomstig. Ten aanzien van de juistheid ervan kunnen wij echter geen aansprakelijkheid aanvaarden.
Kenmerken
- StatusBeschikbaar
- VraagprijsVerkoop bij inschrijving
- Soort objectWoonhuis
- Soort woningVilla
- Type woningVrijstaande woning
- Bouwjaar1919
- BouwvormBestaande bouw
- LiggingenAan drukke weg
Ligging
Interesse in Goirkestraat 79?
Laat hieronder uw gegevens achter en onze makelaar zal contact met u opnemen. Wilt u niet wachten? Neem dan telefonisch contact op!
"*" geeft vereiste velden aan

Tessa Stoop
Secretaresse