Skip to content

Oosterhout – Zandheuvel 8

Nieuw

Zandheuvel 8

Oosterhout

Omschrijving

Nabij het centrum, aan één van de oudste straten van Oosterhout gelegen, ruim opgezette hoekwoning met o.a. een zeer diepe achtertuin op het zonnige zuiden, 3 bergingen en zonnepanelen op een perceel van maar liefst 285m²! Tevens beschikt de woning over een definitief energielabel C.

De binnenstad ligt op slechts een paar minuten loopafstand. Hier kunt u terecht voor een groot winkelaanbod en diverse gezellige eet- en drinkgelegenheden. Er zijn ook meerdere parken te vinden in de dichte omgeving, waaronder het Slotpark en Het Lukwelpark. Sportvoorzieningen, scholen en het ziekenhuis zijn op fietsafstand van de woning gelegen. De woning heeft ook een uitstekende ligging ten opzichte van de bushalte en uitvalswegen. De A27 en A59 zijn snel bereikbaar.

Indeling:

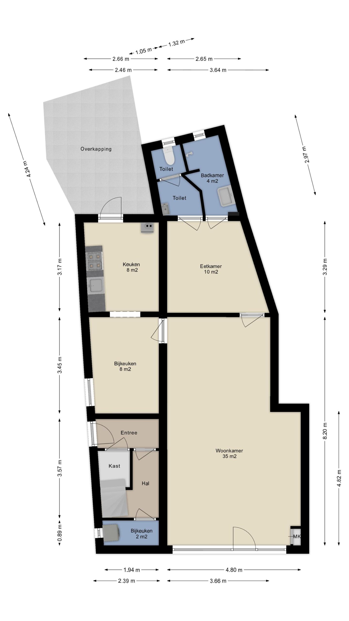
Begane grond:
Zij-entree/hal met toegang tot een praktische trapkast, tussenportaal met de trapopgang naar de eerste verdieping en een wasruimte. De ruime woonkamer van ca. 35m² is toegankelijk via een aparte voordeur aan de straatzijde en is voorzien van een laminaatvloer. De meterkast bevindt zich in de hoek van de kamer. Grenzend aan de woonkamer bevindt zich een extra eet-/werk-/hobby-/speelkamer van ca. 10m² met toegang tot de toiletruimte met fonteintje en de badkamer. De badkamer is volledig betegeld en voorzien van een douche, wastafelmeubel met spiegelkastje en een designradiator. Vanuit de woonkamer bereikt u de praktische bijkeuken/extra kamer van ca. 8m² met toegang tot de keuken. De keuken van ca. 8m² is voorzien van diverse apparatuur, te weten: een 4-pits gaskookplaat, afzuigkap, oven en een losse koel-/vriescombinatie. Tevens hangt hier de c.v.-ketel en is er een loopdeur naar de achtertuin.

Eerste verdieping:
Overloop met toegang tot een tweede keuken van ca. 8m² (welke weer eenvoudig teruggezet kan worden naar een slaapkamer) en nog 2 kamers aan de voor- en achterzijde van resp. ca. 18m² en 8m². De grootste kamer aan de voorzijde is voorzien van een dakkapel. Op deze verdieping is er eveneens een douche aanwezig, aparte toiletruimte, een wastafel en de c.v.-ketel.

Tuin en bergingen:
De woning is voorzien van een zeer diepe achtertuin op het zonnige zuiden met diverse ruime bergingen met elektra en een poort aan de zijkant.

Bijzonderheden:
- Lopend van en naar het centrum!
- Recent afgegeven 'groen' energielabel C (geldig tot 12 maart 2035).
- Er liggen zonnepanelen op het dak.
- Met modernisering dient rekening te worden gehouden.
- Er is een bouwkundig rapport aanwezig d.d. 13 maart 2025 welke in uw Move account te zien zal zijn.
- In de koopakte zal de zgn. 'niet zelf bewoningsclausule' worden opgenomen, omdat het een verkoop uit een nalatenschap betreft.
- Oplevering in overleg.

Algemeen:
- Bij een verkoop wordt als basis gebruik gemaakt van het model van de koopovereenkomst, vastgesteld door de Nederlandse Vereniging van Makelaars in onroerende goederen NVM, de Consumentenbond en de Vereniging Eigen Huis. In deze koopovereenkomst wordt standaard de verplichting tot het storten van een waarborgsom of het stellen van een bankgarantie door de koper ter grootte van 10% van de koopsom opgenomen.
- Een koopovereenkomst komt tot stand onder de opschortende voorwaarde dat beide partijen de koopovereenkomst ondertekenen. Partijen kunnen derhalve noch aan een mondelinge overeenkomst, noch aan een schriftelijke bevestiging daarvan, rechten ontlenen.
- Deze brochure bestaat uit vrijblijvende informatie en is met de grootste zorg samengesteld, echter aan de inhoud van deze brochure kunnen geen rechten worden ontleend. Indelingstekeningen en maatvoeringen zijn slechts indicatief, kunnen afwijken van de werkelijke situatie en zijn uitsluitend bedoeld om een indruk te geven van de indeling.

Kenmerken

  • StatusBeschikbaar
  • Vraagprijs€ 369.000,- k.k.
  • Soort objectWoonhuis
  • Soort woningEengezinswoning
  • Type woningHoekwoning
  • Bouwjaar1890
  • BouwvormBestaande bouw
  • LiggingenAan rustige weg, In centrum, In woonwijk

Interesse in Zandheuvel 8?

Laat hieronder uw gegevens achter en onze makelaar zal contact met u opnemen. Wilt u niet wachten? Neem dan telefonisch contact op!

"*" geeft vereiste velden aan

Ebru Köse- Bayram

Vastgoedadviseur

Aangepaste openingstijden

Tijdens eerste kerstdag, tweede kerstdag en Nieuwjaarsdag zijn wij gesloten. Daarnaast zijn wij ook woensdagmiddag 24 december vanaf 12:30 uur en 31 december de hele dag gesloten. Daar buiten staan wij voor u klaar zoals u van ons gewend bent.

Fijne feestdagen! 

Team Van de Water