Skip to content

Oosterhout – Gaanderij 9

Nieuw

Gaanderij 9

Oosterhout

Omschrijving

Aan rustige straat, op uitstekende en kindvriendelijke locatie gelegen, onder fraaie architectuur gebouwde vrijstaande villa met inpandige berging en hobbyruimte (voormalige garage). Dit heerlijke familiehuis is traditioneel gebouwd en verkeert in een goede staat van onderhoud. De indeling van het pand is erg speels opgezet en mag zeker niet als twaalf in een dozijn worden gekwalificeerd. De vrijstaande villa is omgeven door een fraai aangelegde tuin met een geweldig overdekt terras, diverse zonneterrassen een (kunst)grasgazon en een gezellige buiten open haard. De ligging is op korte loopafstand van het gezellige centrum. Er kunnen met gemak drie auto's op eigen terrein worden geparkeerd!

Begane grond:
Entree, ruime en lichte ontvangsthal met fraaie tegelvloer, meterkast, garderobe en deels licht betegelde toiletruimte met een vrijhangend closet en een fontein. Hier bevindt zich ook de trapopgang naar de eerste verdieping.

Vanuit de hal is er middels een prachtige stalen deur toegang tot de zeer riante leefruimte van ca. 90m² welke als volgt is onderverdeeld:

Tuingerichte, lichte woonkamer van ca. 35m² voorzien van een prachtige houten vloer, schouw met gashaard en zicht op de tuin. De woonkamer en de eetkamer zijn van elkaar gescheiden door middel van schuifdeuren met glas!
Aan de achterzijde van de woning is de eetkamer van ca. 21m² gesitueerd, deze is eveneens voorzien is van een prachtige houten vloer. Vanuit de eetkamer zijn er twee schuifpuien die toegang geven tot de tuin. Een biedt er toegang tot het op het zuiden gelegen terras en een geeft toegang tot het grote aangebouwde en overdekte terras. Het is hier heerlijk zitten tot in de late uurtjes! De eetkamer grenst direct aan de woon/eetkeuken en is door middel van fraaie stalen pui met dubbele openslaande deuren af te scheiden.

Riant opgezette woonkeuken deels met hoog plafond en sierspanten van ca. 33m² groot. Deze ruimte met een sfeervolle gashaard is deels voorzien van een houten vloer en deels van een tegelvloer en biedt plaats aan een prachtig centraal in de ruimte opgestelde keukeninrichting met een kookeiland met eetbar. Daarnaast is er nog een prachtige "hoge" kastenwand. Deze heerlijke leefkeuken is voorzien van diverse hoogwaardige inbouwapparatuur te weten: een 6 pits AGA kooktoestel met een viertal ovens, een design afzuigkap, koelkast, vriezer een vaatwasmachine en een Quooker!

Vanuit de keuken is de bijkeuken bereikbaar. Hier bevinden er naast een vaste kast met de cv-hete luchtverwarming ook de aansluitingen ten behoeve van de wasapparatuur op praktische werkhoogte. Vanuit de bijkeuken is er toegang tot de inpandige garage. Deze ruimte is opgesplitst in een hobbyruimte en een berging. De berging is voorzien van een elektrisch bedienbare sectionaaldeur.

Eerste verdieping:
Halverwege de trap is op de tussenverdieping een royale inloopkast te vinden. Slaapkamer 1 is ca. 4,31x2,84m (vloeroppervlakte), deze gezellige kinderkamer beschikt over een tweetal dakramen en een vaste inbouwkast, deze bevindt zich tevens op de tussenverdieping.
Op de eerste verdieping zijn bereikbaar: 2 slaapkamers, de badkamer en het aparte toilet.
De voorslaapkamer 2 (ca. 14m²) met directe toegang tot het balkon op het zuiden.
De achterslaapkamer 3 (ca. 14m²) met eveneens een deur naar hetzelfde balkon.
De licht uitgevoerde badkamer, afmeting ca. 3.00x3.00m. is uitgerust met ligbad, douchecabine en wastafelmeubel met dubbele spoelbak.
De tussenverdieping, de overloop en de slaapkamers zijn allen voorzien van een hoogwaardige houten vloerafwerking.

Tweede verdieping:
Overloop met bergruimte. In de bergruimte bevindt zich de boiler.
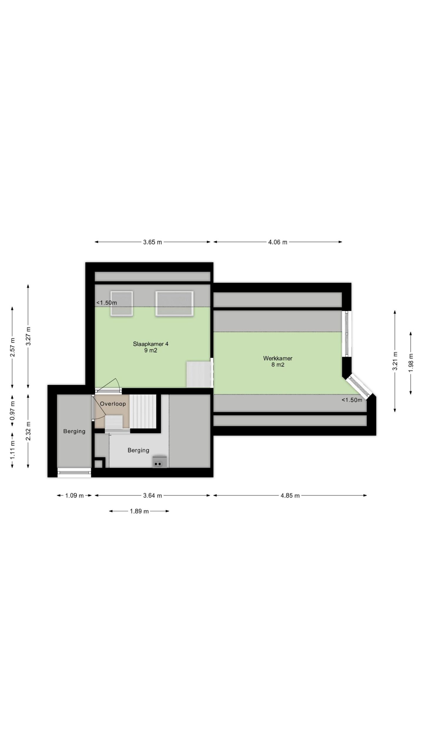
De tweede verdieping is met een vaste trap bereikbaar en biedt toegang tot een 4e slaapkamer. Deze slaapkamer van ca. 3,65x3,27m. (vloeroppervlakte) beschikt over een tweetal dak-tuimelramen en biedt via een paar treden toegang tot een 5e (werk)kamer van ca. 8m².

Bijzonderheden:
- De vrijstaande villa op een kindvriendelijke locatie gelegen.
- Verrassend speelse indeling met gezellige leefruimtes.
- Heerlijke achter-, zij- en voortuin met veel privacy.
- Prachtig aan de achterzijde gelegen overdekt terras.
- Rustige ligging en toch vlakbij het centrum.
- Living ca. 89m² verdeeld in een woonkamer, eetkamer en een leefkeuken.
- Parkeren voor meerdere auto's op eigen terrein.
- Volledig geïsoleerd en voorzien van HR++ beglazing.
- Energielabel B.

Algemeen:
- Bij een verkoop wordt als basis gebruik gemaakt van het model van de koopovereenkomst, vastgesteld door de Nederlandse Vereniging van Makelaars in onroerende goederen NVM, de Consumentenbond en de Vereniging Eigen Huis. In deze koopovereenkomst wordt standaard de verplichting tot het storten van een waarborgsom of het stellen van een bankgarantie door de koper ter grootte van 10% van de koopsom opgenomen.
- Een koopovereenkomst komt tot stand onder de opschortende voorwaarde dat beide partijen de koopovereenkomst ondertekenen. Partijen kunnen derhalve noch aan een mondelinge overeenkomst, noch aan een schriftelijke bevestiging daarvan, rechten ontlenen.
- Deze brochure bestaat uit vrijblijvende informatie en is met de grootste zorg samengesteld, echter aan de inhoud van deze brochure kunnen geen rechten worden ontleend. Indelingstekeningen en maatvoeringen zijn slechts indicatief, kunnen afwijken van de werkelijke situatie en zijn uitsluitend bedoeld om een indruk te geven van de indeling.

Kenmerken

  • StatusBeschikbaar
  • Vraagprijs€ 1.045.000,- k.k.
  • Soort objectWoonhuis
  • Soort woningEengezinswoning
  • Type woningVrijstaande woning
  • Bouwjaar1987
  • BouwvormBestaande bouw
  • LiggingenIn woonwijk

Interesse in Gaanderij 9?

Laat hieronder uw gegevens achter en onze makelaar zal contact met u opnemen. Wilt u niet wachten? Neem dan telefonisch contact op!

"*" geeft vereiste velden aan

Robert Benschop

Makelaar RM

Aangepaste openingstijden

Tijdens eerste kerstdag, tweede kerstdag en Nieuwjaarsdag zijn wij gesloten. Daarnaast zijn wij ook woensdagmiddag 24 december vanaf 12:30 uur en 31 december de hele dag gesloten. Daar buiten staan wij voor u klaar zoals u van ons gewend bent.

Fijne feestdagen! 

Team Van de Water