Skip to content

Loon Op Zand – Klokkenlaan 10

Klokkenlaan 10

Loon Op Zand

Omschrijving

Aan de rand van het centrum en tegen de nieuwe wijk “Van Lier Park”, bieden wij u dit robuuste en ruim opgezet geschakeld jaren ’30 woonhuis met dubbele garage en grote loods/ multifunctionele ruimte aan.

De woning heeft een woonoppervlakte van maar liefst circa 308m² en is op een ruim perceel van 667m² gelegen. Vanwege de ruime opzet zowel binnen als buiten biedt het geheel een scala van mogelijkheden, zoals dubbele bewoning/ mantelzorg, opslag, hobbyruimte of bedrijfsruimte aan huis. *
De woning heeft in totaal 7 slaapkamers (met mogelijkheid voor het creëren van extra slaapkamers) en 2 badkamers, waarvan 2 slaapkamers en een badkamer op de begane grond.

De woning is goed onderhouden maar behoeft modernisering. Om u een idee te geven van de mogelijkheid om de woonkamer te moderniseren en de keuken bij de woonkamer te betrekken én een mogelijkheid van de achtergelegen loods/ multifunctionele hebben wij hiervoor twee impressies toegevoegd.

De woning is, naast een kelder, op de begane grond onder andere voorzien van een royale woonkamer, woonkeuken met erker, twee slaapkamers, complete badkamer en een bijkeuken. Op de eerste verdieping zijn nog eens vijf slaapkamers (waarvan één met inloopgarderobe/ berging), een 2e badkamer en een grote bergruimte (met diverse mogelijkheden) aanwezig. Naast een dubbele garage van circa 45m² (met daarboven een bergzolder) is er achterop het perceel een loods/ multifunctionele ruimte van maar liefst circa 184m². De privacy biedende zijtuin is voorzien van meerdere terrassen.

De woning is op een rustige locatie op loopafstand van het centrum van Loon op Zand gelegen. Op korte afstand zijn supermarkten, scholen, restaurants en terrassen te vinden. Vanuit hier fiets je naar het Nationaal Park “Loonse en Drunense Duinen”, wat een bijzonder en uitermate vrij gevoel geeft. In de Loonse en Drunense Duinen vindt je bos, heide en vooral veel zand. Het is een van de grootste stuifzandgebieden van West-Europa en al meer dan 100 jaar beschermd.
Diverse uitvalswegen naar onder andere steden als ’s-Hertogenbosch, Tilburg en Breda en de omliggende dorpen Loon op Zand, Waalwijk en Kaatsheuvel zijn makkelijk te bereiken.

Bouwjaar: ca. 1930
Inhoud: ca. 1.200m³
Perceeloppervlakte: 667m²
Aanvaarding: in onderling overleg

Indeling

Kelder
Vanuit de hal is er toegang tot een ruime en betegelde kelder circa 16m² op stahoogte. Een ideale ruimte voor opslag/ provisie.

Begane grond
Entree, hal met leistenen vloer, de meterkast en een garderobe hoek. De hal geeft toegang tot de woonkamer.

Royale woonkamer circa 60m² met leistenen vloer voorzien van vloerverwarming, sfeervol balken plafond, open haard en twee openslaande tuindeuren.

Via een portaal met fontein is er toegang tot een separate toiletruimte.

Dichte woonkeuken circa 19m² met gezellige halfronde erker, tegelvloer met vloerverwarming en een keukeninrichting in hoekopstelling. De keukeninrichting is voorzien van een dubbele spoelbak, keramische kookplaat, afzuigkap, koelkast en een oven.

Aan de achterzijde is een hal gelegen die toegang geeft tot twee slaapkamers, een badkamer en de bijkeuken. Centraal in de hal bevindt zich de trapopgang naar de kelder en verdieping.

Slaapkamer circa 15m² met vaste kastenwand en een slaapkamer circa 8m².

Ruime badkamer voorzien van vloerverwarming, vaste wastafel met meubel, ligbad, douche met thermostaatkraan en een toilet.

Praktische en betegelde bijkeuken voorzien van een keukenblok met spoelbak, inbouwkasten en de aansluitingen voor de wasapparatuur. Vanuit de bijkeuken is er toegang tot de dubbele garage.

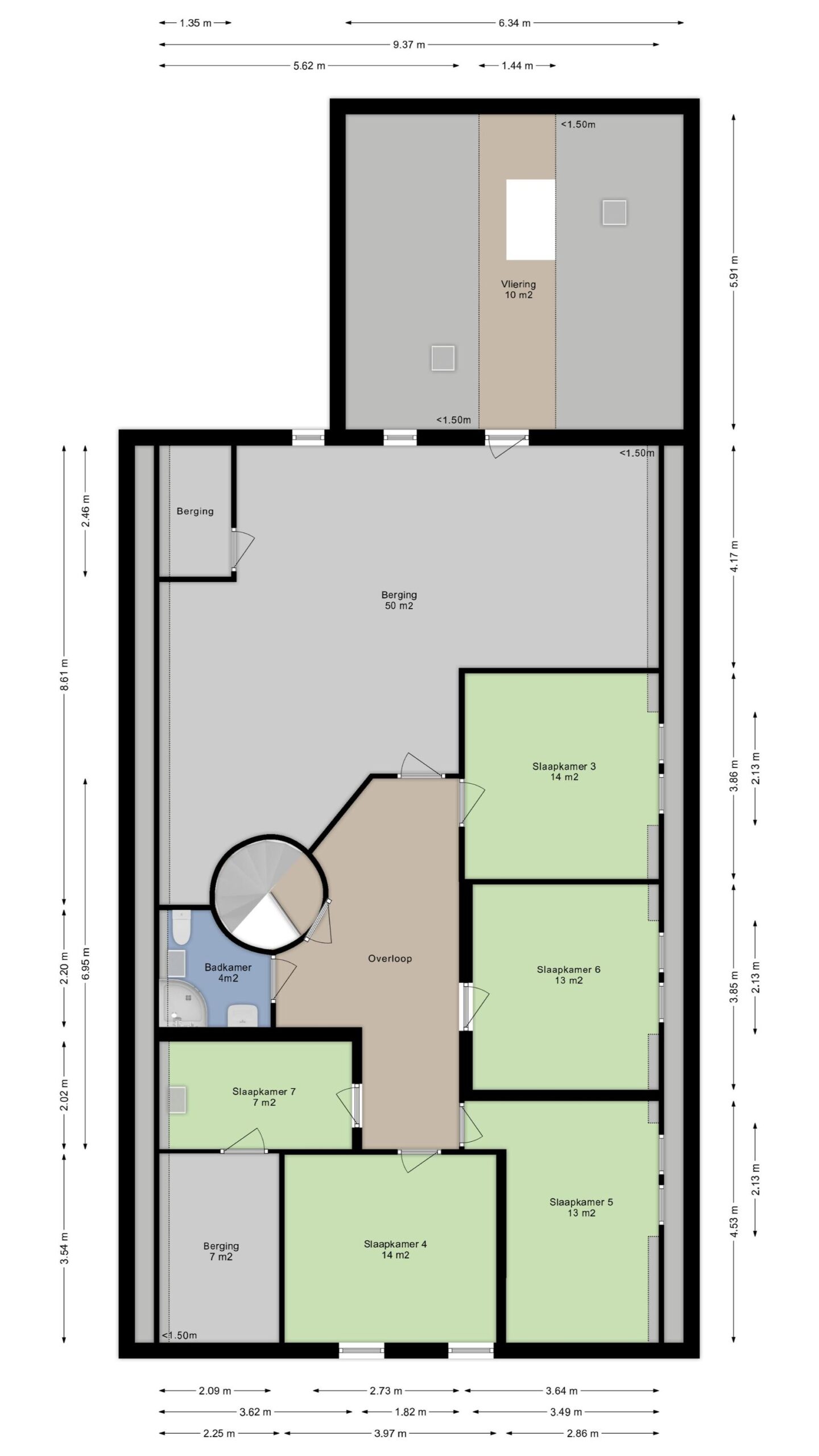
Eerste verdieping
Ruime overloop die toegang geeft tot vijf slaapkamers, een 2e badkamer en een grote bergruimte.

Slaapkamer circa 14m², slaapkamer circa 7m² met inloopkast/ berging circa 7m², slaapkamer circa 13m² met dakkapel, slaapkamer circa 13m² met dakkapel en een slaapkamer circa 14m² met dakkapel.

2e badkamer voorzien van een vaste wastafel met meubel, douche met thermostaatkraan en een toilet. In de badkamer is daarnaast een Velux dakraam aanwezig.

Royale zolderruimte circa 50m² met een vaste kast voorzien van de c.v. combi ketel (Atag, 2024) en de opstelplaats van de hete lucht verwarming. Gezien de grootte van deze zolderruimte kan deze ruimte voor diverse doeleinden gebruikt worden.
Vanuit deze ruimte is tevens de bergzolder die boven de garage is gelegen te bereiken.

Tuin
Aan de zijkant van de woning is de tuin gelegen. De tuin is aan de voorzijde omsloten door groen en biedt hierdoor volop privacy.

Aansluitend aan de woonkamer bevindt zich een verhoogd en gezellig terras. In de achtertuin is daarnaast een 2e terras met buitenhaard, graspartij en diverse borders.

Naast de woning is een eigen, afsluitbare oprit aanwezig die toegang geeft tot de dubbele garage en de achter op het perceel gelegen loods/ multifunctionele ruimte.

Naast een dubbele garage van circa 45m² (met daarboven een bergzolder) is er achterop het perceel een loods/ multifunctionele ruimte van maar liefst circa 184m², die voor diverse doeleinden gebruikt kan worden.

Algemeen
- Robuust woonhuis met dubbele garage en multifunctionele ruimte.
- Maar liefst 7 slaapkamers, 2 badkamers en een grote berging op de verdieping voor het eventueel creëren van extra slaapkamers.
- * Indien toestemming van de daartoe bevoegde instanties.
- Bij een verkoop wordt als basis gebruik gemaakt van het model van de koopovereenkomst, vastgesteld door de Nederlandse Vereniging van Makelaars in onroerende goederen NVM, de Consumentenbond en de Vereniging Eigen Huis. In deze koopovereenkomst wordt standaard de verplichting tot het storten van een waarborgsom of het stellen van een bankgarantie door de koper ter grootte van 10% van de koopsom opgenomen.
- Een koopovereenkomst komt tot stand onder de opschortende voorwaarde dat beide partijen de koopovereenkomst ondertekenen. Partijen kunnen derhalve noch aan een mondelinge overeenkomst, noch aan een schriftelijke bevestiging daarvan, rechten ontlenen.
- Deze brochure bestaat uit vrijblijvende informatie en is met de grootste zorg samengesteld, echter aan de inhoud van deze brochure kunnen geen rechten worden ontleend. Indelingstekeningen en maatvoeringen zijn slechts indicatief, kunnen afwijken van de werkelijke situatie en zijn uitsluitend bedoeld om een indruk te geven van de indeling.

Kenmerken

  • StatusBeschikbaar
  • Vraagprijs€ 747.500,- k.k.
  • Soort objectWoonhuis
  • Soort woningEengezinswoning
  • Type woningGeschakelde woning
  • Bouwjaar1930
  • BouwvormBestaande bouw
  • LiggingenIn centrum, In woonwijk, In bosrijke omgeving

Interesse in Klokkenlaan 10?

Laat hieronder uw gegevens achter en onze makelaar zal contact met u opnemen. Wilt u niet wachten? Neem dan telefonisch contact op!

"*" geeft vereiste velden aan

Paul Hulskes

Makelaar RM

Aangepaste openingstijden

Tijdens eerste kerstdag, tweede kerstdag en Nieuwjaarsdag zijn wij gesloten. Daarnaast zijn wij ook woensdagmiddag 24 december vanaf 12:30 uur en 31 december de hele dag gesloten. Daar buiten staan wij voor u klaar zoals u van ons gewend bent.

Fijne feestdagen! 

Team Van de Water