Skip to content

Breda – Oede van Hoornestraat 12

Oede van Hoornestraat 12

Breda

Omschrijving

Wonen in rustige straat, doch midden in het centrum van historisch Breda? Kom dan kijken naar deze verrassend royale stadswoning met een 16 meter diepe achtertuin. Met modernisering dient men rekening te houden.

Ligging:
In de directe omgeving van deze woning vind de komende jaren een ware transformatie plaats. Zo is gestart met de aanleg van de Nieuwe Mark. Ook het terrein van de Seeligkazerne verandert in een groene stadswijk (Seeligpark). Dankzij deze ontwikkelingen woont u hier straks in de directe omgeving van het water én bij een nieuw groen stadspark, en op loopafstand van de Grote Markt met haar sfeervolle terrassen, winkels en restaurants.

Bouwjaar: 1908
Woonoppervlakte: ca. 87 m²
Perceel oppervlakte: 134 m²
Aanvaarding: in onderling overleg / op korte termijn mogelijk

Indeling:

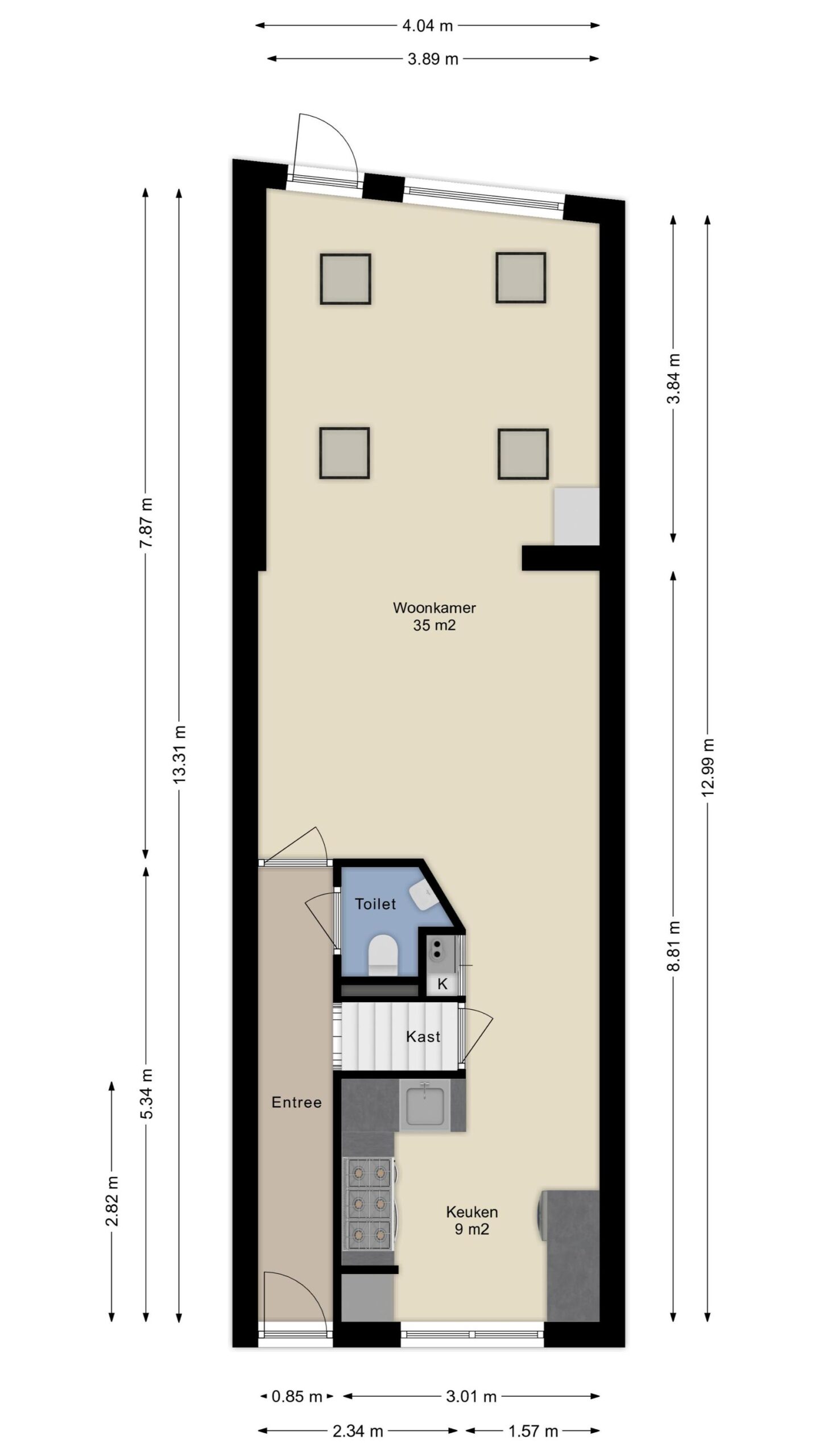
Begane grond:
Entree/gang met trapopgang naar de eerste verdieping en een gedeeltelijk betegelde toiletruimte met wandcloset voorzien van inbouw reservoir en een fonteintje; royale living ca. 44 m² met een houten vloerafwerking, schouw met open haard, loopdeur naar de achtertuin en een half open keuken met een keukeninrichting voorzien van 6 pits fornuis met oven en aansluitingen ten behoeve van de wasapparatuur.

Eerste verdieping:
Overloop met vaste kast; voor slaapkamer ca. 4 m² met dakraam; achter slaapkamer ca. 13 m² met vaste kastenwand en een gedeeltelijk betegelde badkamer ca. 10 m² met drie dakramen, ligbad, separate douche en een wastafel.

Tuin:
De 16 meter diepe achtertuin is voorzien van een terras nabij de achtergevel en een houten overkapping achterin de tuin.

Parkeren:
In deze straat parkeert men met een parkeervergunning, de eerste vergunning is gratis en er is een bezoekersregeling.

Algemeen:
- De woning is voorzien van 8 zonnepanelen en een thuisbatterij. 4 zonnepanelen zijn gehuurd en dit huurcontract is ter overname of kan worden afgekocht. De andere 4 zonnepanelen met de thuisbatterij worden door de erfgenamen afgekocht en blijven in de woning achter.
- Bij een aan-/verkoop wordt gebruik gemaakt van het model van de koopovereenkomst, vastgesteld door de Nederlandse Vereniging van Makelaars in onroerende goederen NVM, de Consumentenbond en de Vereniging Eigen Huis. In deze koopovereenkomst wordt standaard de verplichting tot het storten van een waarborgsom of het stellen van een bankgarantie door de koper ter grootte van 10% van de koopsom opgenomen.
- Een koopovereenkomst komt tot stand onder de opschortende voorwaarde dat beide partijen de koopakte ondertekenen. Partijen kunnen derhalve aan een mondelinge overeenkomst geen rechten en plichten ontlenen.
- Gezien het bouwjaar van de woning zal in de koopovereenkomst de algemene ouderdomsclausule worden opgenomen.
- Doordat de verkoper zelf niet in de woning heeft gewoond zal de niet zelfbewoningsclausule in de koopovereenkomst worden opgenomen.
- Deze vrijblijvende informatie is met de grootste zorg samengesteld, echter aan de inhoud hiervan kunnen geen rechten worden ontleend. Indelingstekeningen en maatvoeringen zijn slechts indicatief, kunnen afwijken van de werkelijke situatie en zijn uitsluitend bedoeld om een indruk te geven van de indeling.

Kenmerken

  • StatusBeschikbaar
  • Vraagprijs€ 375.000,- k.k.
  • Soort objectWoonhuis
  • Soort woningEengezinswoning
  • Type woningHoekwoning
  • Bouwjaar1908
  • BouwvormBestaande bouw
  • LiggingenAan rustige weg, In centrum, In woonwijk

Interesse in Oede van Hoornestraat 12?

Laat hieronder uw gegevens achter en onze makelaar zal contact met u opnemen. Wilt u niet wachten? Neem dan telefonisch contact op!

"*" geeft vereiste velden aan

Henk Lodewikus

Makelaar RM

Aangepaste openingstijden

Tijdens eerste kerstdag, tweede kerstdag en Nieuwjaarsdag zijn wij gesloten. Daarnaast zijn wij ook woensdagmiddag 24 december vanaf 12:30 uur en 31 december de hele dag gesloten. Daar buiten staan wij voor u klaar zoals u van ons gewend bent.

Fijne feestdagen! 

Team Van de Water