Skip to content

Levensloopbestendige hoek- en tussenwoningen | Type I

0 van de 8 vrij

Levensloopbestendige hoek- en tussenwoningen | Type I

Omschrijving

Woningtype I

Fraaie levensloopbestendige hoek- en tussenwoningen

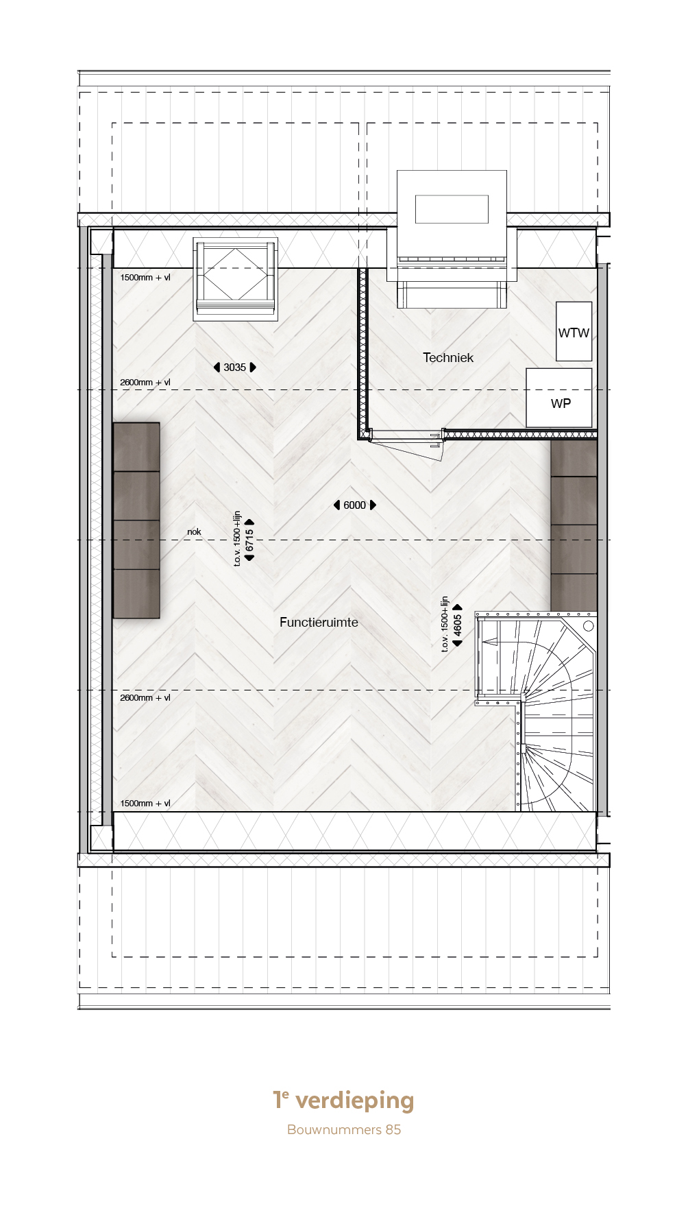
Bouwnummer 85 t/m 92

Deze levensloopbestendige woningen hebben een fraaie uitstraling door o.a. de toepassing van grote raampartijen, accenten in het metselwerk en een hoogwaardige gevelsteen. Met alle voorzieningen op de begane grond bent u gegarandeerd van optimaal wooncomfort en een toekomstbestendige woning.

Kenmerken
• Uitnodigende woonkamer met open keuken.
• Gelijkvloers wonen met de slaapkamer en badkamer op de begane grond.
• Badkamer aan de slaapkamer, uitgerust met een inloopdouche, wastafel en toilet.
• Fraai perceel met een achterom.
• Standaard voorzien van een houten buitenberging in de achtertuin.
• Bouwnummer 85 voorzien van een oprit op eigen terrein met één parkeerplaats.
• Parkeermogelijkheid voor de deur in het openbaar gebied.

Kenmerken

  • StatusBeschikbaar
  • Prijs€ 420.000,- t/m € 480.000,-
  • Aantal bouwnummers8
  • ObjecttypeWoonhuis
  • WoonhuissoortEengezinswoning
  • WoonhuistypeTussenwoning
  • LiggingenIn woonwijk, In bosrijke omgeving
  • WoonhuiskwaliteitLuxe

Bouwnummers

Verkocht o.v.

De Biezen - fase 3 92

4926 BV Lage Zwaluwe

Verkocht o.v.

De Biezen - fase 3 91

4926 BV Lage Zwaluwe

Verkocht o.v.

De Biezen - fase 3 90

4926 BV Lage Zwaluwe

Verkocht o.v.

De Biezen - fase 3 89

4926 BV Lage Zwaluwe

Verkocht o.v.

De Biezen - fase 3 88

4926 BV Lage Zwaluwe

Verkocht o.v.

De Biezen - fase 3 87

4926 BV Lage Zwaluwe

Verkocht o.v.

De Biezen - fase 3 86

4926 BV Lage Zwaluwe

Verkocht o.v.

De Biezen - fase 3 85

4926 BV Lage Zwaluwe

Interesse in Levensloopbestendige hoek- en tussenwoningen | Type I

"*" geeft vereiste velden aan

Vestiging Oosterhout

Keiweg 24

4901 JA Oosterhout

(0162) 447 447

Aangepaste openingstijden

Tijdens eerste kerstdag, tweede kerstdag en Nieuwjaarsdag zijn wij gesloten. Daarnaast zijn wij ook woensdagmiddag 24 december vanaf 12:30 uur en 31 december de hele dag gesloten. Daar buiten staan wij voor u klaar zoals u van ons gewend bent.

Fijne feestdagen! 

Team Van de Water