Skip to content

Hoekwoningen

2 van de 2 vrij

Hoekwoningen

Omschrijving

Oude Haven te Raamsdonksveer

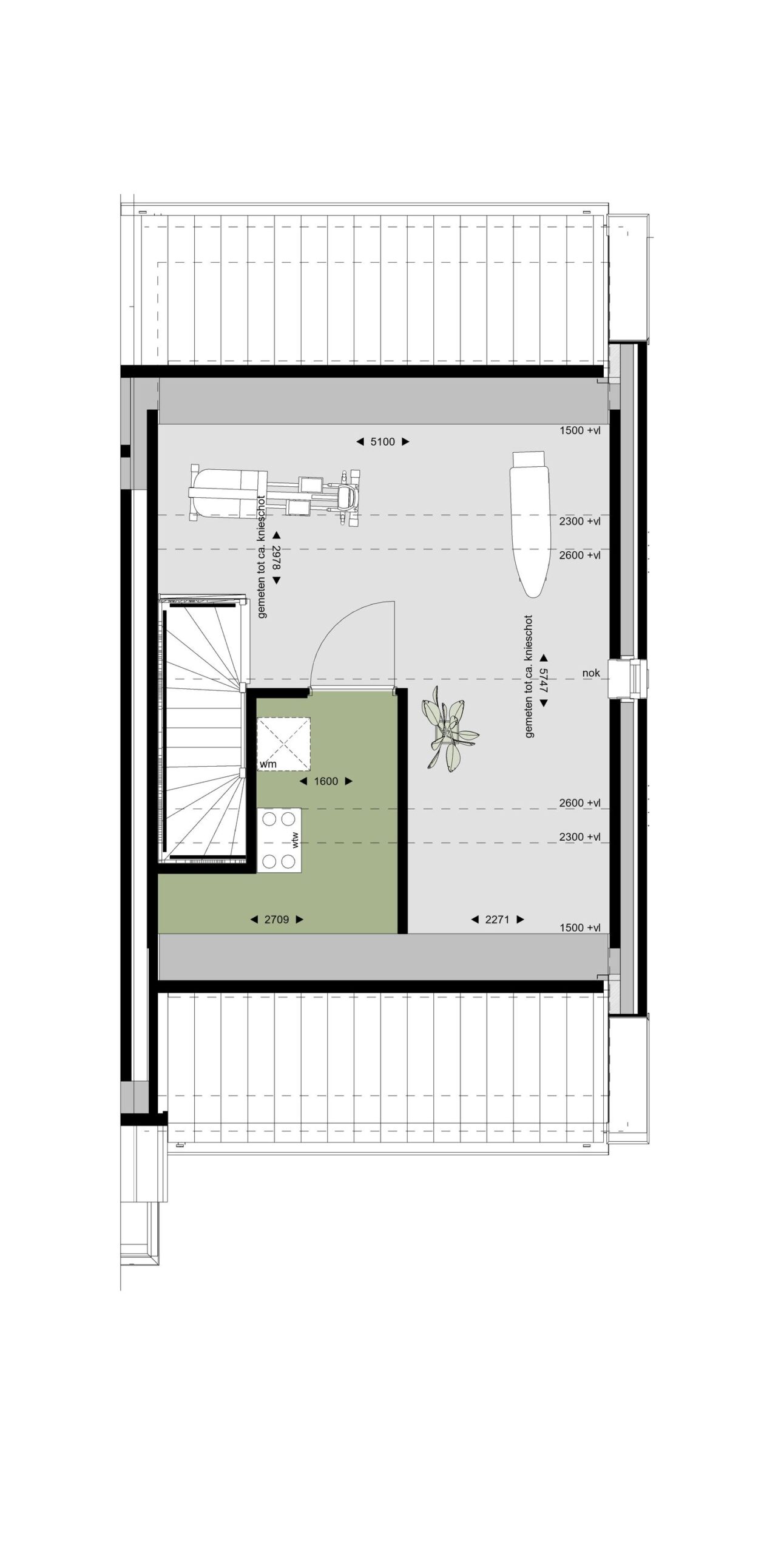
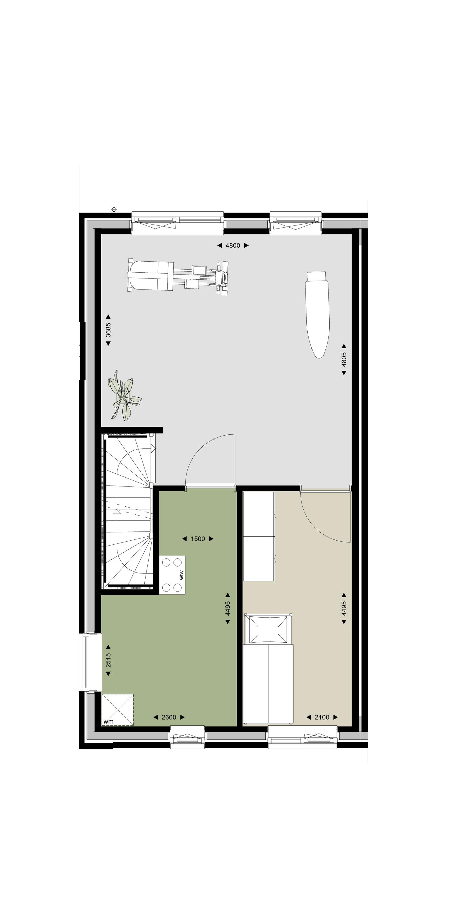
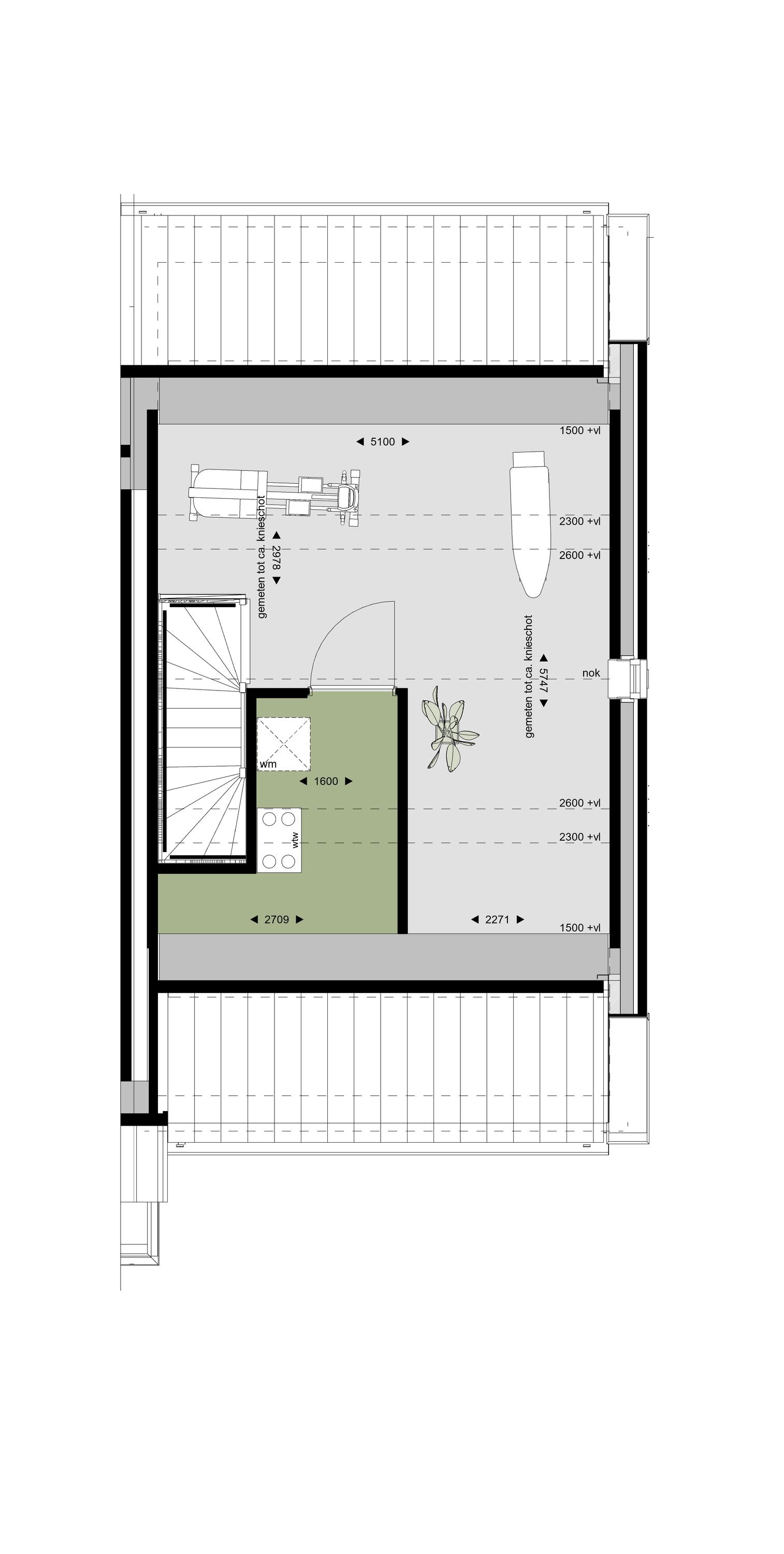
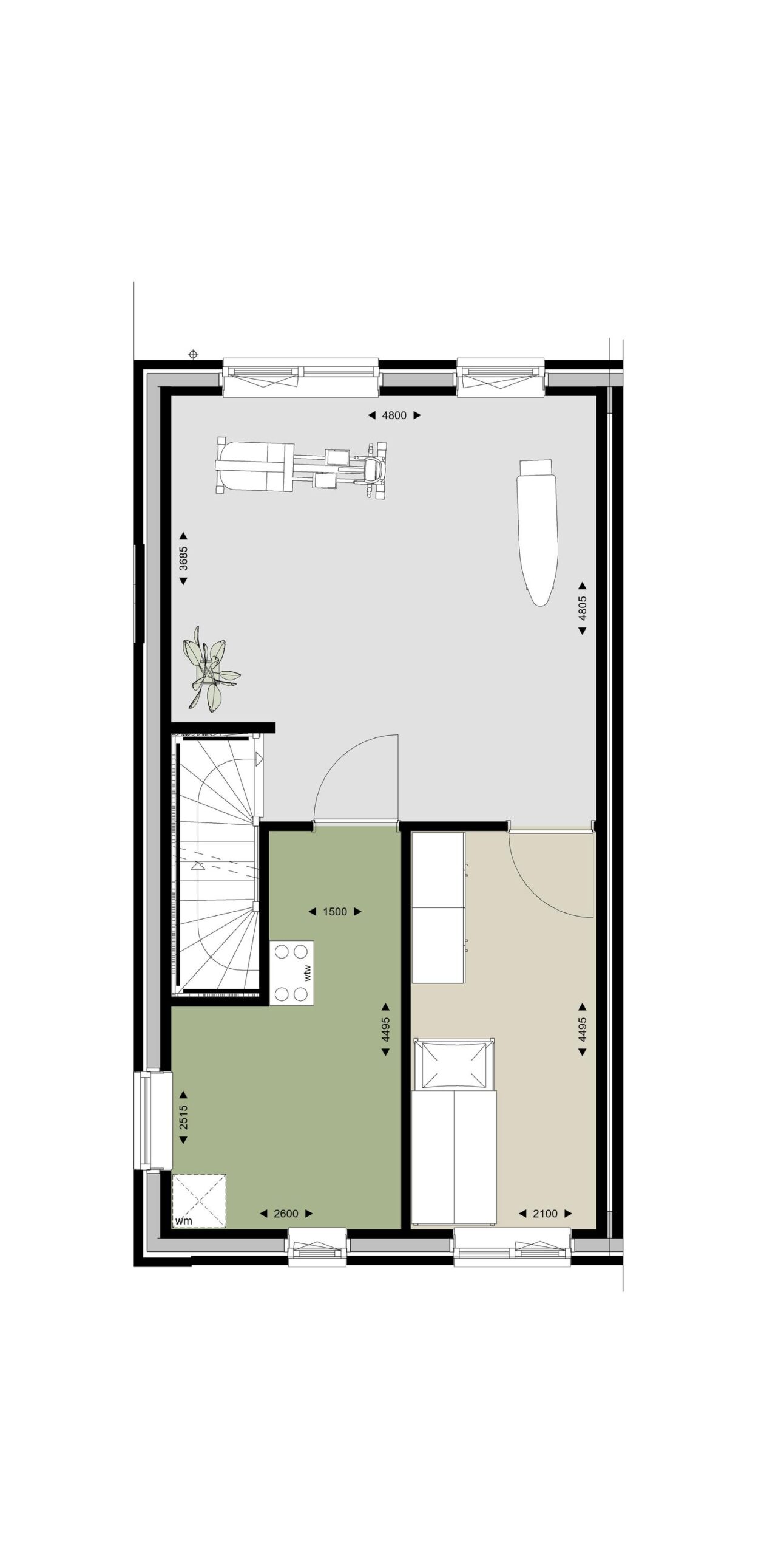
De rijwoningen aan de Haven bieden een gevarieerd aanbod, perfect afgestemd op gezinnen die op zoek zijn naar een sfeervolle en comfortabele woning. Van types O of R1-hoekwoning tot de ruime types P1 en 2, Q of R2: elke woning combineert een slimme indeling met volop licht, praktische ruimtes en de mogelijkheid om alles naar eigen wens in te richten.

Ook op het gebied van duurzaamheid zit je goed. Dankzij het (voorlopige) energielabel A+++ profiteer je van een lage energierekening. De woningen zijn uitgerust met een energiezuinige lucht/waterwarmtepomp, vloerverwarming en triple beglazing.

Ontdek welk woningtype bij jou past en maak van deze duurzame rijwoning jouw toekomstige thuis.

Bij interesse in dit project, kunt u zich via de projectwebsite inschrijven voor een of meerdere bouwnummers. Indien het bouwnummer van uw voorkeur op dat moment nog beschikbaar is, dan kunnen wij het bouwnummer vrijblijvend voor u reserveren en plannen wij graag een afspraak in om het project en de woning uitgebreid aan u toe te lichten. Mocht het bouwnummer van uw voorkeur reeds gereserveerd zijn, dan wordt u automatisch op de reservelijst geplaatst en zullen wij contact met u opnemen indien het bouwnummer voor u vrijkomt. 

Kenmerken

  • StatusBeschikbaar
  • Prijs€ 505.000,- t/m € 520.000,-
  • Aantal bouwnummers2
  • Aantal vrije eenheden2
  • ObjecttypeWoonhuis
  • WoonhuissoortEengezinswoning
  • WoonhuistypeHoekwoning
  • LiggingenIn centrum, In woonwijk
  • WoonhuiskwaliteitNormaal

Bouwnummers

Oude Haven 52

4941 ZB Raamsdonksveer

Oude Haven 46

4941 ZB Raamsdonksveer

Interesse in Hoekwoningen

"*" geeft vereiste velden aan

Vestiging Oosterhout

Keiweg 24

4901 JA Oosterhout

(0162) 447 447

Aangepaste openingstijden

Tijdens eerste kerstdag, tweede kerstdag en Nieuwjaarsdag zijn wij gesloten. Daarnaast zijn wij ook woensdagmiddag 24 december vanaf 12:30 uur en 31 december de hele dag gesloten. Daar buiten staan wij voor u klaar zoals u van ons gewend bent.

Fijne feestdagen! 

Team Van de Water