Skip to content

Lage Zwaluwe – De Biezen – fase 3 75

Verkocht o.v.

De Biezen - fase 3 75

4926 BV Lage Zwaluwe

Omschrijving

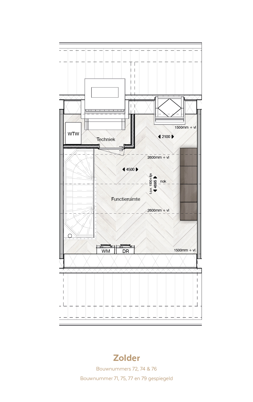
Woningtype G

Stijlvolle tussenwoning

Bouwnummer 75

Deze stijlvolle tussenwoning is uiterst geschikt als starterswoning. De woning is in basis van alle gemakken voorzien. Naast het complete woonprogramma zijn er volop optiemogelijkheden om de woning helemaal aan te laten sluiten op uw woonwensen. Denk bijvoorbeeld aan het vergroten van de woonkamer d.m.v. een aanbouw of het indelen van de zolder voor meer slaapkamers.

Kenmerken
• Uitnodigende woonkamer met open keuken.
• Divers gevelbeeld door variatie in raampartijen op de verdieping.
• Twee slaapkamers op de eerste verdieping.
• Badkamer uitgerust met een inloopdouche, wastafel en toilet.
• Fraai perceel met een diepe achtertuin en een achterom.
• Standaard voorzien van een houten buitenberging in de achtertuin.
• Parkeermogelijkheid voor de deur in het openbaar gebied.

Kenmerken

  • StatusVerkocht o.v.
  • Vraagprijs€ 399.000,- v.o.n.
  • Soort objectWoonhuis
  • Soort woningEengezinswoning
  • Type woningTussenwoning
  • Bouwjaar2026
  • Bouwjaar periodeVANAF_2021_TM_2030
  • BouwvormNieuwbouw
  • LiggingenIn woonwijk, In bosrijke omgeving

Interesse in De Biezen - fase 3

"*" geeft vereiste velden aan

Vestiging Oosterhout

Keiweg 24

4901 JA Oosterhout

(0162) 447 447

Aangepaste openingstijden

Tijdens eerste kerstdag, tweede kerstdag en Nieuwjaarsdag zijn wij gesloten. Daarnaast zijn wij ook woensdagmiddag 24 december vanaf 12:30 uur en 31 december de hele dag gesloten. Daar buiten staan wij voor u klaar zoals u van ons gewend bent.

Fijne feestdagen! 

Team Van de Water