Boerhaavestraat 40
Tilburg
Afbeeldingen

































Omschrijving
Boerhaavestraat 40, Tilburg
Propositie:
Stichting WonenBreburg is eigenaar van het karakteristieke vrijstaande gebouw aan de Boerhaavestraat 40 in Tilburg en is voornemens dit gebouw te verkopen.
Deze verkoopinformatie geeft een beknopte beschrijving van het complex en het proces van het verkooptraject. Samen met de 'verkoopdocumenten' vormt deze informatie de basis waarop geïnteresseerden in de gelegenheid worden gesteld om zich te oriënteren op de mogelijkheden van het gebouw en het perceel.
N.B. namens Stichting WonenBreburg bieden wij ook het gebouw aan de Goirkestraat 79 in Tilburg voor verkoop aan. Dat verkoopproces loopt gelijk met het verkoopproces van dit pand. Is hier ook interesse in? Laat het ons dan weten.
Het gebouw:
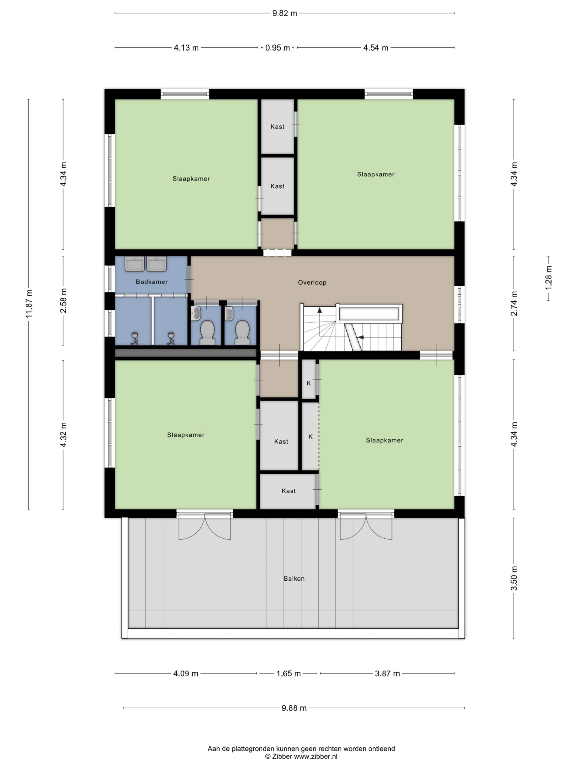
Het gebouw beschikt over een centrale entree die toegang biedt tot drie slaapkamers, de woonkamer en de eetkamer met aangrenzende keuken. Via een vaste trap is de eerste verdieping te bereiken. Hier bevinden zich vier slaapkamers, twee toiletten en een badkamer. De tweede vaste trap leidt naar de zolderverdieping, waar nog eens drie
slaapkamers zijn gesitueerd.
Het geheel is gelegen op een perceel van 1.008 m². Het terrein is deels bestraat en voorzien van grind, waarmee meerdere parkeerplaatsen op eigen terrein zijn gecreëerd. In de tuin staat een tuinhuis dat direct grenst aan een overkapping, die toegang geeft tot de berging. Daarnaast is er een garage aanwezig.
Huidig gebruik:
Door middel van een overeenkomst van lastgeving wordt het pand tijdelijk beheerd door Ad Hoc. Het pand is momenteel in gebruik als anti-kraakwoning.
Oppervlakte:
Het object omvat ca. 333,9 m² GO en ca. 552,6 BVO, als volgt onderverdeeld:
Begane grond ca. 146,7 m² GO - ca. 166,1 m² BVO (incl. buitenruimte)
Eerste verdieping ca. 114,8 m² GO - ca. 163,9 m² BVO (incl. buitenruimte)
Tweede verdieping ca. 57,5 m² GO - ca. 129,4 m² BVO
Kelder ca. 35,0 m² BVO
Daarnaast beschikt het buitengebouw over ca. 14,9 m² GO en ca. 58,2 m² BVO.
Parkeren:
Op het eigen terrein is voldoende parkeergelegenheid.
Contract:
In de dataroom zijn zowel een standaard NVM-koopovereenkomst voor bedrijfs-onroerendgoed als een NVM-koopovereenkomst voor bestaande eengezinswoningen opgenomen. Enkel wanneer de koper en zijn gezin het pand permanent gaan bewonen, al dan niet toegestaan door het vigerende omgevingsplan, wordt geopteerd voor de NVM-koopovereenkomst voor bestaande eengezinswoningen.
In alle overige gevallen wordt de NVM-koopovereenkomst voor bedrijfs-onroerend goed gehanteerd.
Notaris:
De verkoop verloopt via de projectnotaris van de verkoper, te weten De Kerf & Van Sprang Notarissen te Tilburg. Derhalve is deze notaris in de concept koopovereenkomst reeds opgenomen.
Zekerheidsstelling:
Waarborgsom ter grootte van 10% van de koopsom.
Kadaster:
Gemeente: Tilburg
Sectie: B
Nummers: 8959
Grootte: 1.008 m²
Verkoopproces/bijzonderheden:
Deze verkoopinformatie, tezamen met de verkoopdocumenten, is opgesteld om potentiële kopers te informeren over de voorgenomen verkoop van het complex.
Geïnteresseerden kunnen zich tot en met 13 oktober 2025, 12:00 uur aanmelden voor de bezichtigingsdagen op 20, 21, 22, 23 of 24 oktober 2025.
Na de bezichtigingsdagen is er tevens gelegenheid tot het schriftelijk stellen van vragen. De vragen dienen uiterlijk 7 november 2025, 12:00 uur per e-mail toegezonden te worden aan Bart van de Water. De antwoorden op de schriftelijk gestelde vragen worden in een nota van toelichting op uiterlijk 21 november 2025 verstrekt. De nota van toelichting wordt onderdeel van de inschrijfdocumenten.
Gedurende het verkoopproces loopt de communicatie via Van de Water Bedrijfsmakelaars, contactpersonen: Bart van de Water (bac@vandewatergroep.nl).
Uw bod dient uiterlijk op 5 december 2025, 12:00 uur te zijn ingediend.
Bieden namens ''nader te noemen meester'' is niet toegestaan. Verkoper sluit een koopovereenkomst met de bieder aan wie gegund wordt. Deze bieder is verantwoordelijk voor de nakoming van de koopovereenkomst. Ook bij de levering dient er dus aan de bieder geleverd te worden.
Belangrijke data op een rij:
- Aanmelden bezichtigingsdagen uiterlijk 13 oktober 2025, 12:00 uur;
- Bezichtigingsmogelijkheden op 20, 21, 22, 23 of 24 oktober 2025;
- Schriftelijke vragen indienen op uiterlijk 7 november 2025, 12:00 uur;
- Nota van toelichting uiterlijk 21 november 2025;
- Indienen bieding uiterlijk 5 december 2025, 12:00 uur;
- Einde termijn van ‘beraad’ 19 december 2025;
- Levering notaris uiterlijk 30 juni 2026, of zoveel eerder als partijen nader overeenkomen.
Voorbehoud:
Een en ander geschiedt onder aanvaarding en uitdrukkelijk voorbehoud en definitieve goedkeuring van het Bestuur van Stichting WonenBreburg.
Stichting WonenBrebrug is verplicht een integriteitsonderzoek naar koper in te stellen. Koper dient op eigen titel een VOGnp en voor zover van toepassing een VOGrp aan te vragen en te overhandigen bij de bieding.
BTW:
Er is geen BTW van toepassing.
Antispeculatiebeding:
Indien koper binnen twee (2) jaar na ondertekening van de akte van levering tot vervreemding van het verkochte, (of een gedeelte daarvan), overgaat, dan is koper een boete van 20% van de koopsom ter zake van iedere overtreding aan verkoper verschuldigd. Onder vervreemding wordt verstaan: levering van eigendom, uitgifte in erfpacht, opstal of vruchtgebruik, verpachten of het “om niet” in gebruik afstaan, voorts iedere (obligatoire) overeenkomst die de strekking heeft een derde de economische eigendom te verschaffen, dit alles in de ruimste zin.
Verdere uitwerking van het antispeculatiebeding is opgenomen in de concept koopovereenkomst, die is terug te vinden in de verkoopinformatie.
Ander gebruik:
De huidige bestemming van het perceel is ‘wonen’. Hieronder wordt verstaan het gebruik van gebouwen en bijbehorende erven ten behoeve van het huisvesten van personen. Hieronder vallen reguliere woonfuncties zoals slapen, eten en recreëren, alsmede bijzondere woonvormen zoals studentenhuisvesting en ouderenhuisvesting, zolang er wordt voldaan aan het huidige omgevingsplan.
Tevens is onder voorwaarden het uitoefenen van een aan huis verbonden beroep toegestaan, mits:
- de woonfunctie primair blijft;
- de beroepsactiviteit ondergeschikt is in omvang (maximaal 40% van het vloeroppervlak, tot een maximum van 80 m²);
- geen detailhandel plaatsvindt (behoudens verkoop van ter plaatse vervaardigde goederen);
- geen sprake is van milieuhinder of onevenredige publieks- of verkeersaantrekking;
- de woonomgeving niet onevenredig wordt aangetast.
Wenst de toekomstig eigenaar aan meer personen verhuren of het pand te gebruiken voor een ander doeleind, dan moet hiervoor een vergunning worden aangevraagd om af te wijken van het omgevingsplan.
Alle door ons verstrekte informatie is geheel vrijblijvend en uitsluitend bestemd voor geadresseerde. Alle gegevens zijn met zorg samengesteld en uit ons inziens betrouwbare bron afkomstig. Ten aanzien van de juistheid ervan kunnen wij echter geen aansprakelijkheid aanvaarden.
Kenmerken
- StatusBeschikbaar
- PrijsGeen prijs beschikbaar
- BouwvormBestaande bouw
- Bouwjaar1925
Ligging
Interesse in Boerhaavestraat 40
Laat hieronder uw gegevens achter en onze makelaar zal contact met u opnemen. Wilt u niet wachten? Neem dan telefonisch contact op!
"*" geeft vereiste velden aan