Skip to content

Breda – Voorerf 33

Omschrijving

VOORERF 33, BREDA

Object:
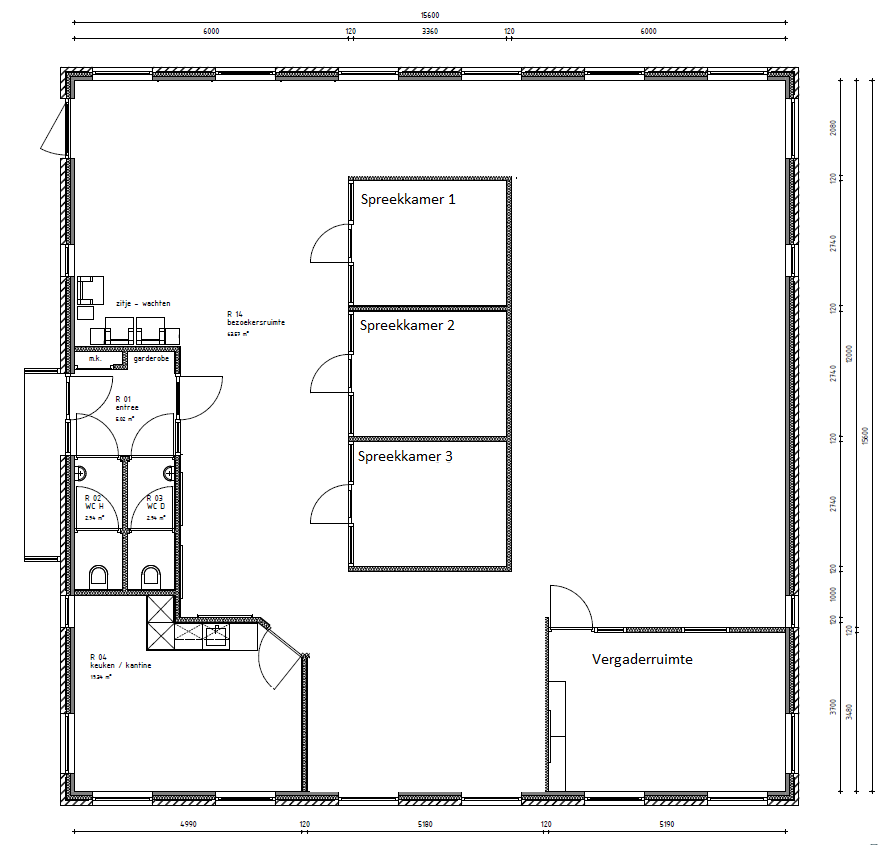
De moderne, instapklare kantoorruimte maakt deel uit van een kleinschalig kantoorverzamelgebouw en is gelegen aan de noordkant van Breda op korte afstand van de A-16. De kantoorruimte beschikt over een zelfstandige entree aan de voor- en achterzijde van het gebouw en is volledig gelegen op de begane grond. De kantoorruimte beschikt over veel daglicht in alle ruimtes.

Ligging en bereikbaarheid:
Het bedrijventerrein Breda-Noord omvat de gebieden De Krogten, Hintelaken, Emer-Noord en Emer-Zuid. Het Voorerf betreft een kantorenlocatie op bedrijventerrein Achter-Emer.

Via de Emerparklaan zijn de rijkswegen A16 (Breda / Rotterdam / Antwerpen) en de A59 (Breda/Den Bosch) eenvoudig en binnen enkele autominuten te bereiken.

Oppervlakte:
De kantoorruimte omvat ca. 262 m² en is volledig gelegen op de begane grond. Aan de voorzijde van het gebouw is eveneens de GGD gevestigd, die ook over een zelfstandige entree beschikt. Aan de achterzijde van het kantoorgebouw bevindt zich de entree naar de kantoorruimtes op de eerste verdieping.

Op de eerste verdieping wordt Voorerf 29 Breda, die 105 m² kantoorruimte omvat eveneens voor verhuur aangeboden.

Parkeren:
Aan de voorzijde zijn 8 parkeerplaatsen gelegen die bij de huurprijs zijn inbegrepen. Indien er behoefte is aan meer parkeerplaatsen, dan zijn deze voor € 250,-- per jaar exclusief BTW extra bij te huren (op basis van beschikbaarheid) aan de zijkant of aan de achterzijde van het gebouw.

Huurprijs:
De huurprijs voor de beschikbare kantoorruimte op de begane grond bedraagt € 35.000,-- per jaar exclusief servicekosten en BTW.

Indexering:
Jaarlijkse indexering voor het eerst één jaar na huuringangsdatum op basis van de Consumenten Prijs Index (CPI) Alle Huishoudens (2015=100) samengesteld door het Centraal Bureau voor de Statistiek.

Servicekosten:
De servicekosten bedragen € 655,- per maand exclusief BTW voor de begane grond als voorschot op de werkelijk gemaakte kosten.

De levering en diensten omvatten o.a.:
• glasbewassing buitenzijde;
• onderhoud tuin en parkeerplaatsen;
• onderhoud technische installaties;
• divers klein dagelijks onderhoud;
• waterverbruik (bij normaal verbruik);
• elektraverbruik (bij normaal verbruik);
• administratiekosten ad 5% over de hierboven genoemde leveringen en diensten.

Huurder wordt zelfstandig contractant voor de afname van (stads)verwarming bij Ennatuurlijk.

Opleveringsdatum:
De oplevering geschiedt in onderling overleg.

Huurperiode:
De huurperiode bedraagt 5 jaar met aansluitende verlengingsperioden van telkens 5 jaar.

Contract:
Standaard R.O.Z. contract

Voorzieningen:
Het object beschikt onder andere over de navolgende voorzieningen:
• entreehal met een toe-en uitgang aan de voor- en achterzijde;
• receptiebalie;
• airconditioning;
• spreekkamers voorzien van glazen wanden;
• vergaderruimte;
• kantoortuin;
• toiletgroep;
• kantine voorzien van keukenblok.

Zekerheidsstelling:
Bankgarantie of waarborgsom ter hoogte van drie maanden huur inclusief servicekosten en BTW.

Huurbetaling:
Huurbetaling per maand vooruit.

Voorbehoud:
Een en ander geschiedt onder aanvaarding en uitdrukkelijk voorbehoud goedkeuring eigenaar.

BTW:
Indien huurder niet aan het 90% criterium voldoet, zal er van rechtswege sprake zijn van omzetbelasting vrijgestelde verhuur. Alsdan wordt de overeengekomen kale huurprijs exclusief omzetbelasting, zodanig verhoogd dat het voor verhuurder ontstane financiële nadeel wordt gecompenseerd.

Alle door ons verstrekte informatie is geheel vrijblijvend en uitsluitend bestemd voor geadresseerde. Alle gegevens zijn
met zorg samengesteld en uit ons inziens betrouwbare bron afkomstig. Ten aanzien van de juistheid ervan kunnen wij
echter geen aansprakelijkheid aanvaarden.

Kenmerken

  • StatusBeschikbaar
  • Prijs€ 35.000,- p/j.
  • Servicekosten€ 655,- p/m.
  • BouwvormBestaande bouw
  • Bouwjaar1997

Interesse in Voorerf 33

Laat hieronder uw gegevens achter en onze makelaar zal contact met u opnemen. Wilt u niet wachten? Neem dan telefonisch contact op!

"*" geeft vereiste velden aan

Vestiging Breda

Keizerstraat 91 - 93

4811 HL Breda

(076) 5 24 24 00

Aangepaste openingstijden

Tijdens eerste kerstdag, tweede kerstdag en Nieuwjaarsdag zijn wij gesloten. Daarnaast zijn wij ook woensdagmiddag 24 december vanaf 12:30 uur en 31 december de hele dag gesloten. Daar buiten staan wij voor u klaar zoals u van ons gewend bent.

Fijne feestdagen! 

Team Van de Water