Skip to content

Tilburg – Ringbaan-Oost 24

Verkocht

Ringbaan-Oost 24

Tilburg

Omschrijving

Op fietsafstand van het bruisende stadscentrum én om de hoek van het Wilhelminakanaal met veel groen bieden wij deze uitgebouwde middenwoning met grote stenen garage en stenen berging aan. De woning is verrassend ruim van opzet met een woonoppervlakte van maar liefst circa 118m² en een vrijstaande garage van circa 24m².

De woning is netjes onderhouden en in 2019 is de begane grond gemoderniseerd waaronder strak stucwerk wandafwerking, nieuwe laminaatvloer, toiletruimte en een nieuwe keukeninrichting. De woning is nagenoeg geheel voorzien van kunststof kozijnen met dubbele beglazing en grotendeels van rolluiken.

De woning is op de begane grond onder andere voorzien van een sfeervolle en uitgebouwde woonkamer en een dichte keuken met moderne keukeninrichting. Op de eerste verdieping zijn twee grote slaapkamers, een inloopgarderobe en een nette badkamer aanwezig. Via een vaste trap is de tweede verdieping te bereiken die naast een voorzolder een ruime zolderslaapkamer met twee dakkapellen en een extra slaap-/ werkkamer heeft.
De achtertuin met gezellige overkapping geeft toegang tot de grote garage, berging en een achterom.

De woning is aan de rand van het stadscentrum gelegen. Door deze centrale ligging is het bruisende stadscentrum met al zijn voorzieningen snel en makkelijk te bereiken.
Via de Ringbanen is er een goede ontsluiting naar de A65 en A58 richting onder andere de steden Breda, Eindhoven en ’s-Hertogenbosch.

Bouwjaar: ca. 1952
Inhoud: ca. 417m³
Perceeloppervlakte: 161m²
Aanvaarding: in onderling overleg

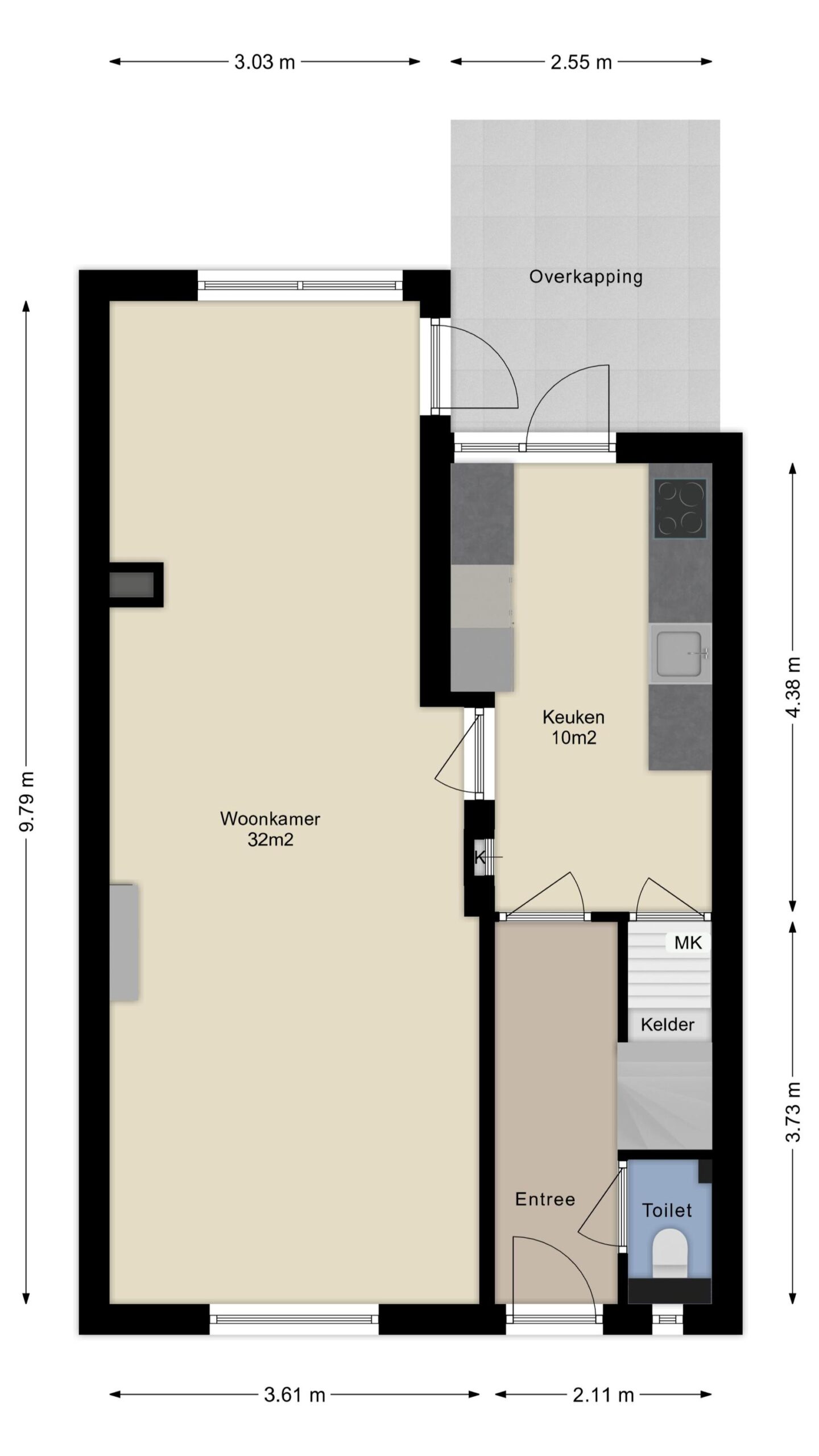
Kelder
Vanuit de keuken is een praktische kelder te bereiken met een vernieuwde en uitgebreide meterkast (8 groepen en 2 aardlekschakelaars) en provisieruimte.

Begane grond
Entree, hal met kurkvloer en een moderne toiletruimte voorzien van een vrij hangend toilet.
De hal geeft toegang tot de keuken en trapopgang naar de eerste verdieping.

Sfeervolle en uitgebouwde woonkamer circa 32m² (exclusief keuken) met laminaatvloer, strak stucwerk wandafwerking en een schouw. De vele raampartijen geven een fraai zicht op de achtertuin.

Dichte keuken circa 10m² met kurkvloer en een moderne en uitgebreide keukeninrichting. De keukeninrichting is voorzien van een granieten blad, inductie kookplaat, afzuigkap, koelkast met vriesvak, oven en een vaatwasser. In de keuken is daarnaast de aansluiting voor een wasmachine aanwezig.

Eerste verdieping
Overloop met laminaatvloer en die toegang geeft tot twee slaapkamers (voorheen drie slaapkamers) en de badkamer.

Voorslaapkamer circa 10m² met laminaatvloer, strak stucwerk wandafwerking, inbouwspots en een aansluiting voor een vaste wastafel. Ruime achterslaapkamer circa 21m² met laminaatvloer, een op maat gemaakt bed met omgebouwde kasten en een inloopgarderobe (voorheen slaapkamers). De inloopgarderobe is voorzien van op maat gemaakte inbouwkasten, een dubbele vaste wastafel met meubel en een deur naar het balkon.

Moderne en licht betegelde badkamer voorzien van een inloopdouche met thermostaat kraan, vrij hangend toilet en een design radiator. In de badkamer zijn daarnaast inbouwspots aanwezig.

Tweede verdieping
Middels vaste trap bereikbare voorzolder met bergkast. De voorzolder geeft toegang tot twee (slaap)kamers.

Ruime en sfeervolle zolderslaapkamer circa 16m² met twee dakkapellen en een vaste kast.

Slaap-/ werkkamer circa 4m² met dakraam en een vaste wastafel.

Buiten
Aansluitend aan de keuken bevindt zich een gezellige overkapping, waar u heerlijk beschut kunt vertoeven met zicht op de achtertuin.

De achtertuin ligt op het noord oosten, is bestraat en voorzien van een achterom.

Stenen berging met de c.v. combi ketel (Nefit circa 2015).

Grote stenen garage circa 24m² met verwarming en een fonteintje.

Algemeen
- Verrassend ruime en uitgebouwde middenwoning.
- Vrijstaande grote stenen garage en een berging.
- Moderne keukeninrichting en badkamer.
- De woning is nagenoeg geheel voorzien van kunststof kozijnen met dubbele beglazing.
- Grotendeels voorzien van rolluiken.
- Bij verkoop zullen er een aantal aanvullende clausules worden opgenomen, waaronder een ouderdomsclausule, asbestclausule en een niet-zelfbewoningsclausule (aangezien de verkoper de woning zelf niet bewoond heeft). Voor vragen neem contact op met de makelaar.
- Bij een verkoop wordt als basis gebruik gemaakt van het model van de koopovereenkomst, vastgesteld door de Nederlandse Vereniging van Makelaars in onroerende goederen NVM, de Consumentenbond en de Vereniging Eigen Huis. In deze koopovereenkomst wordt standaard de verplichting tot het storten van een waarborgsom of het stellen van een bankgarantie door de koper ter grootte van 10% van de koopsom opgenomen.
- Een koopovereenkomst komt tot stand onder de opschortende voorwaarde dat beide partijen de koopovereenkomst ondertekenen. Partijen kunnen derhalve noch aan een mondelinge overeenkomst, noch aan een schriftelijke bevestiging daarvan, rechten ontlenen.
- Deze brochure bestaat uit vrijblijvende informatie en is met de grootste zorg samengesteld, echter aan de inhoud van deze brochure kunnen geen rechten worden ontleend. Indelingstekeningen en maatvoeringen zijn slechts indicatief, kunnen afwijken van de werkelijke situatie en zijn uitsluitend bedoeld om een indruk te geven van de indeling.

Kenmerken

  • StatusVerkocht
  • Soort objectWoonhuis
  • Soort woningEengezinswoning
  • Type woningTussenwoning
  • Bouwjaar1952
  • BouwvormBestaande bouw
  • LiggingenAan drukke weg, In woonwijk

Interesse in Ringbaan-Oost 24?

Laat hieronder uw gegevens achter en onze makelaar zal contact met u opnemen. Wilt u niet wachten? Neem dan telefonisch contact op!

"*" geeft vereiste velden aan

Paul Hulskes

Makelaar RM

Aangepaste openingstijden

Tijdens eerste kerstdag, tweede kerstdag en Nieuwjaarsdag zijn wij gesloten. Daarnaast zijn wij ook woensdagmiddag 24 december vanaf 12:30 uur en 31 december de hele dag gesloten. Daar buiten staan wij voor u klaar zoals u van ons gewend bent.

Fijne feestdagen! 

Team Van de Water