Skip to content

Tilburg – Generaal de Wetstraat 37

Verkocht

Generaal de Wetstraat 37

Tilburg

Omschrijving

Op een ideale locatie nabij het stadscentrum en op slechts enkele minuten van het leisure gebied ‘Stappegoor’ bieden wij u deze instapklare uitgebouwde en opgebouwde middenwoning met grote stenen berging aan. De woning is verrassend ruim met een woonoppervlakte van circa 117m².

De woning is voorzien van een moderne keukeninrichting, moderne badkamer en toiletruimte, strak stucwerk wand- en plafondafwerking, fraaie vloeren en grotendeels van kunststof kozijnen.

De woning is in 2023 voorzien van muurisolatie, HR++ beglazing met ventilatieroosters en in 2024 van 5 zonnepanelen. Mede hierdoor heeft de woning een groen energielabel B!

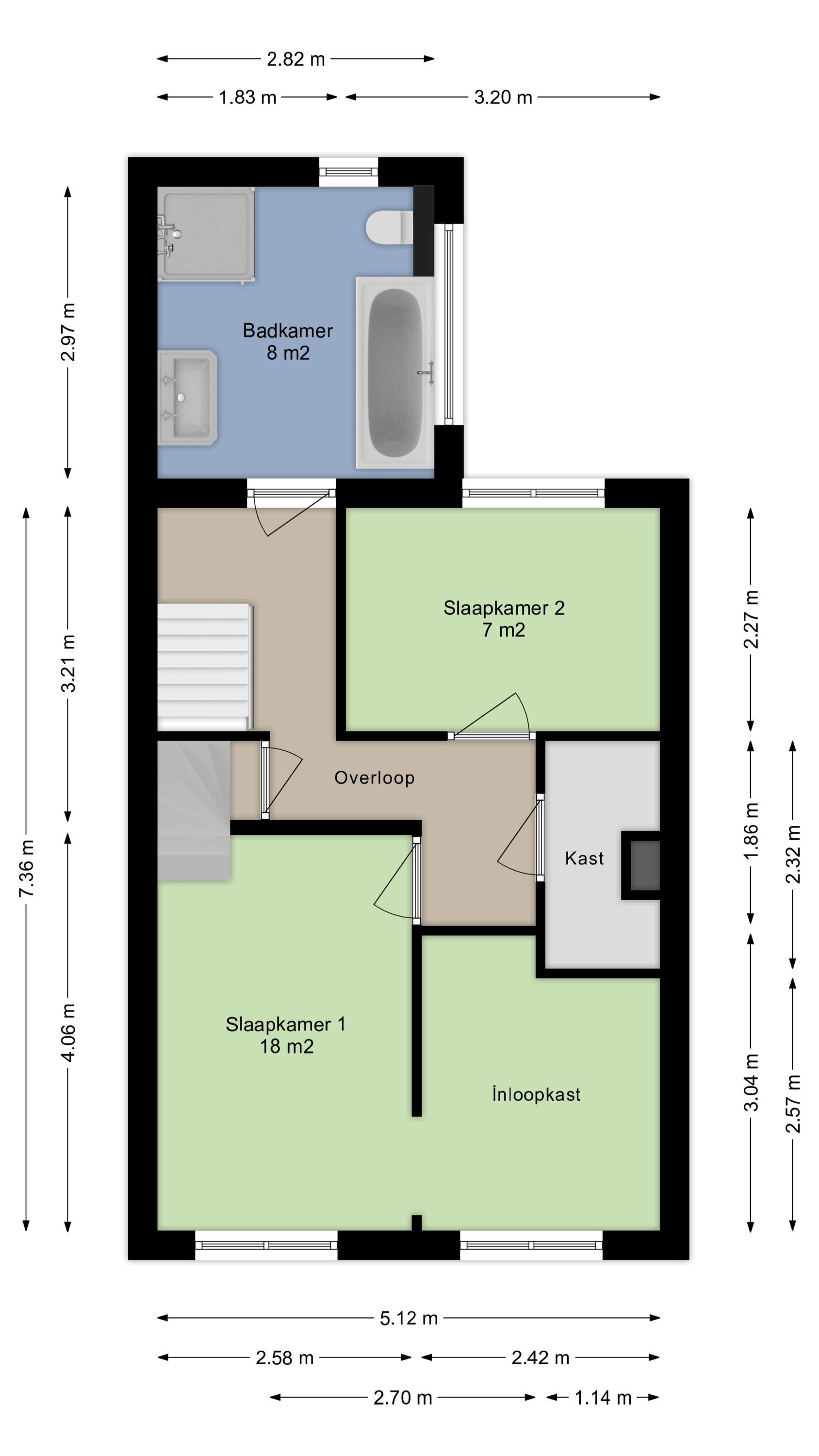
De woning is op de begane grond onder andere voorzien van een sfeervolle woonkamer met houtkachel, moderne en complete keukeninrichting en een ruime bijkeuken. Op de eerste verdieping zijn twee slaapkamers (waarvan één met inloopgarderobe), een opgebouwde complete badkamer en een grote inloopkast aanwezig. Via een vaste trap is er toegang tot een uitermate sfeervolle zolderslaapkamer met dakkapel en op maat gemaakte kasten. De achtertuin ligt op het noorden en heeft een overkapping, achterom en een grote stenen berging.

De woning is centraal maar op een rustige locatie gelegen aan de rand van het stadscentrum. Op loopafstand ligt onder andere een supermarkt, een bakker en diverse andere winkelvoorzieningen. Leisure gebied ‘Stappegoor’ met onder andere de Jumbo Tilburg Foodmarkt, recreatiebad Stappegoor, sportcomplex T-kwadraat en het IJssportcentrum, de bruisende Piushaven en winkelcentrum AaBe Fabriek liggen tevens nabij. Vele voorzieningen liggen dus binnen handbereik!
Diverse uitvalswegen richting de steden Breda, Eindhoven en ’s-Hertogenbosch zijn erg makkelijk te bereiken.

Bouwjaar: ca. 1954
Inhoud: ca. 401m³
Perceeloppervlakte: 140m²
Aanvaarding: in onderling overleg

Indeling

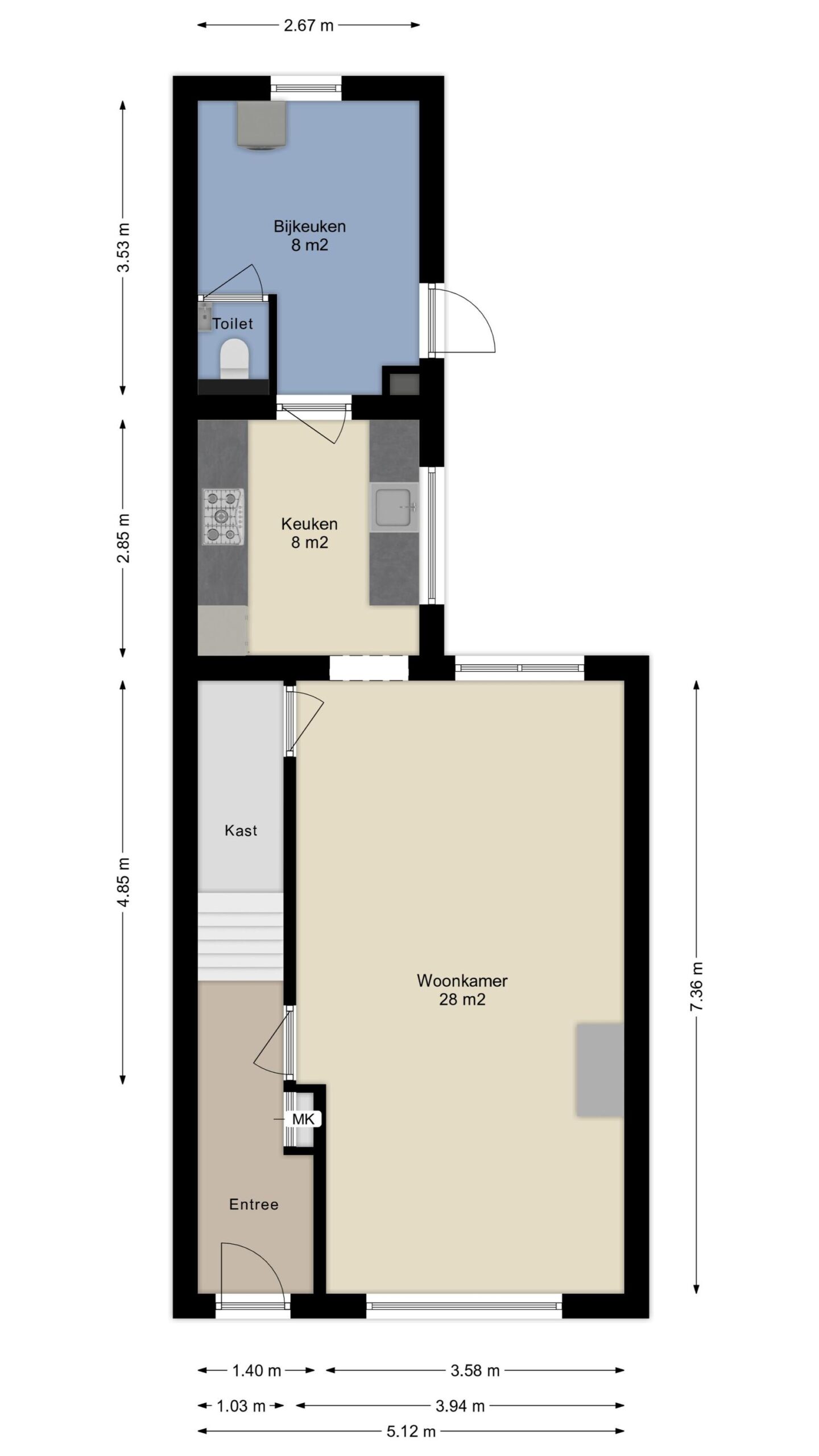
Begane grond
Entree, hal met tegelvloer, de meterkast en trapopgang naar de eerste verdieping.
Middels een zwarte stalen deur met glas is de woonkamer te bereiken.

Sfeervolle woonkamer circa 28m² met eiken vloer, gezellige houtkachel (met ingebouwd ventilatie systeem) en een praktische trapkast.

Aansluitend aan de woonkamer bevindt zich de uitgebouwde keuken circa 8m² met tegelvloer voorzien van vloerverwarming. De moderne keukeninrichting bestaat uit twee keukenblokken in rechte opstelling en is voorzien van een granieten blad, 5-pits gaskookplaat, afzuigkap, koelkast, combi magnetron en een vaatwasser (2024). In de keuken zijn daarnaast inbouwspots aanwezig.

Praktische en ruime bijkeuken circa 8m² met tegelvloer voorzien van vloerverwarming, inbouwspots, de aansluitingen voor de wasapparatuur en een deur naar de achtertuin.

Aparte en moderne toiletruimte voorzien van een vrij hangend toilet met fontein.

Eerste verdieping
Overloop met laminaatvloer, inbouwspots en een handige, grote inloopkast. De overloop geeft toegang tot twee slaapkamers (voorheen drie slaapkamers, welke eventueel op eenvoudige wijze weer terug te brengen zijn) en een opgebouwde badkamer.

Voorslaapkamer circa 18m² met inloopgarderobe en een achterslaapkamer circa 7m². Beide slaapkamers zijn voorzien van een laminaatvloer.

Ruime, opgebouwde en moderne badkamer voorzien van een dubbele vaste wastafel met meubel, ligbad met thermostaat kraan, douche met regendouche en inbouwkranen, vrij hangend toilet en een design radiator.

Tweede verdieping
Via een vaste trap is er toegang tot een uitermate sfeervolle zolderslaapkamer circa 14m² met dakkapel, laminaatvloer, inbouwspots en bergruimte onder de dakschuinte. In deze slaapkamer bevinden zich daarnaast op maat gemaakte inbouwkasten en de c.v. combi ketel (Remeha, 2021).

Buiten
Diepe achtertuin op het noorden welke is bestraat. Achterin de tuin is een overkapping met achterom aanwezig en een grote stenen berging.

Vanwege de ruime opzet van de achtertuin is er altijd wel een plekje waar u van de zon of schaduw kunt genieten.

Algemeen
- Instapklare middenwoning nabij het stadscentrum.
- Moderne keukeninrichting en sanitair.
- De elektra is in 2021 vernieuwd.
- Buitenschilderwerk achterzijde 2025.
- Bij een verkoop wordt als basis gebruik gemaakt van het model van de koopovereenkomst, vastgesteld door de Nederlandse Vereniging van Makelaars in onroerende goederen NVM, de Consumentenbond en de Vereniging Eigen Huis. In deze koopovereenkomst wordt standaard de verplichting tot het storten van een waarborgsom of het stellen van een bankgarantie door de koper ter grootte van 10% van de koopsom opgenomen.
- Een koopovereenkomst komt tot stand onder de opschortende voorwaarde dat beide partijen de koopovereenkomst ondertekenen. Partijen kunnen derhalve noch aan een mondelinge overeenkomst, noch aan een schriftelijke bevestiging daarvan, rechten ontlenen.
- Deze brochure bestaat uit vrijblijvende informatie en is met de grootste zorg samengesteld, echter aan de inhoud van deze brochure kunnen geen rechten worden ontleend. Indelingstekeningen en maatvoeringen zijn slechts indicatief, kunnen afwijken van de werkelijke situatie en zijn uitsluitend bedoeld om een indruk te geven van de indeling.

Kenmerken

  • StatusVerkocht
  • Soort objectWoonhuis
  • Soort woningEengezinswoning
  • Type woningTussenwoning
  • Bouwjaar1954
  • BouwvormBestaande bouw
  • LiggingenAan rustige weg, In woonwijk

Interesse in Generaal de Wetstraat 37?

Laat hieronder uw gegevens achter en onze makelaar zal contact met u opnemen. Wilt u niet wachten? Neem dan telefonisch contact op!

"*" geeft vereiste velden aan

Paul Hulskes

Makelaar RM