Skip to content

Oosterhout – Sint Antoniusstraat 11

Verkocht

Sint Antoniusstraat 11

Oosterhout

Omschrijving

Wilt u op steenworp afstand van het stadscentrum wonen? Dan is deze twee-onder-een-kap woning echt iets voor u! Deze woning heeft een ruime garage, eigen oprit en is aan de achterzijde uitgebouwd met een serre. Door de ligging van de woning zijn er volop voorzieningen in de omgeving zoals gezellige eet- en drinkgelegenheden in het centrum, diverse winkels, (basis)scholen en openbaar vervoer.

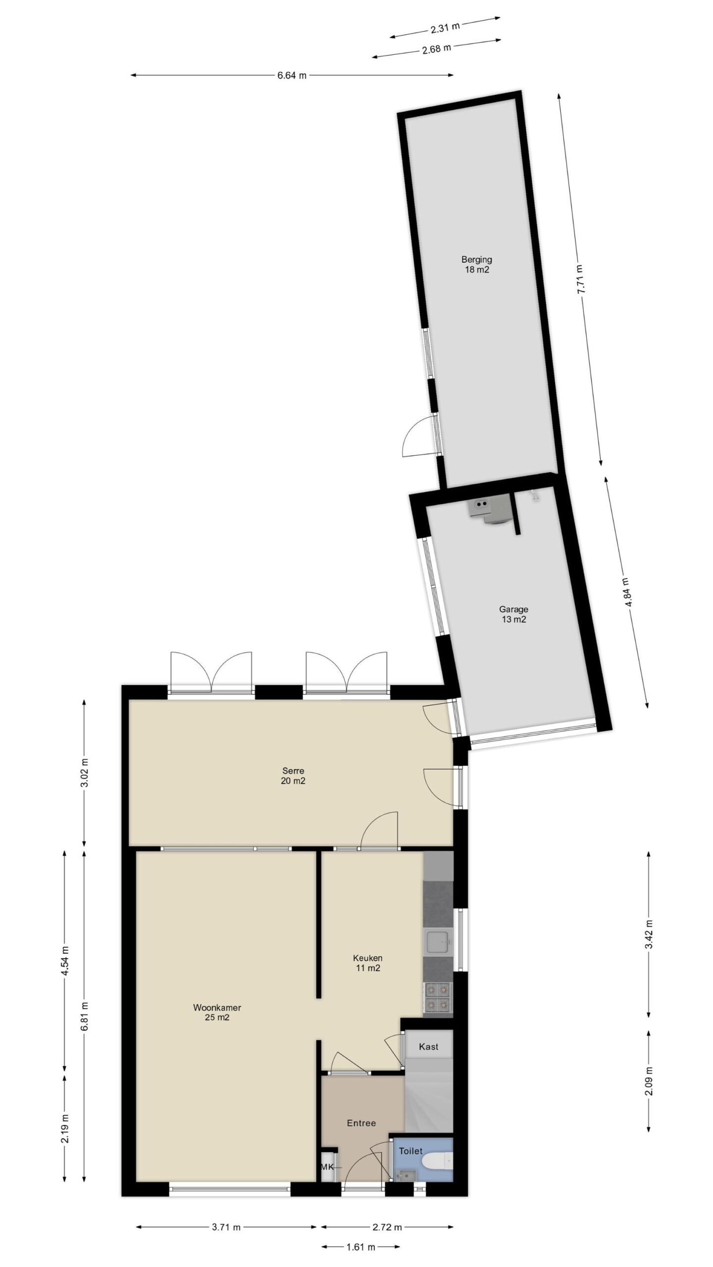
Indeling:

Begane grond:

Entree/hal met PVC clickvloer en de trapopgang naar de eerste verdieping. Meterkast en toiletruimte. De toiletruimte is deels licht betegeld en voorzien van een fonteintje. Vanuit de hal is de keuken toegankelijk.

De keuken is bereikbaar vanuit de hal en is aan de achterzijde gelegen. De keuken is voorzien van een groot zij-raam met sunscreen en een nette en verzorgde keukeninrichting met voldoende kastruimte en de navolgende inbouwapparatuur te weten: gaskookplaat, afzuigkap en een koel/vries combinatie. Daarnaast is er een grote kelderkast. Op de vloer liggen lichte tegels. Vanuit de keuken is de serre bereikbaar

De woonkamer is voorzien van een PVC clickvloer en fijn licht te noemen o.a. door de grote raampartijen aan de voor- en achterzijde van de woonkamer. Vanuit de woonkamer heeft u zicht op de serre aan de achterzijde van de woning.

De serre is over de volledige breedte van de woning gelegen. Door de dubbele openslaande tuindeuren heeft u vanuit de serre direct toegang tot de privacy biedende en sfeervolle achtertuin. Ook de garage en de oprit zijn middels loopdeur vanuit de serre toegankelijk. Tevens is er centrale verwarming aanwezig zodat deze het hele jaar door gebruikt kan worden.

De grote garage is niet alleen bereikbaar vanuit de serre, ook vanaf de oprit is de garage bereikbaar middels een elektrisch bedienbare garagedeur. Deze garage is voorzien van elektra, water, verwarming en een douchegelegenheid. Tevens zijn hier de wasmachine en droger aansluiting. Door het aanwezige raam is er een prettige lichtinval.

Eerste verdieping:

De overloop biedt toegang tot de slaapkamers en de badkamer. Er zijn 3 slaapkamers, te weten:
- Ruime tweepersoons slaapkamer (ca. 3,72 x 2,67m) met een vaste kast en aan de voorzijde gelegen.
- Ruime tweepersoons slaapkamer (ca. 3,72 x 4,04m) met vaste kast en aan de achterzijde gelegen.
- Slaapkamer (ca. 2,90x2,71m) met vaste kast en eveneens aan de achterzijde gelegen.
Alle slaapkamers zijn voorzien van rolluiken.

De badkamer is aan de voorzijde van de woning gelegen. De badkamer is volledig licht betegeld en ingericht met een ligbad met douche en een wastafel in een wandmeubel.

Tweede verdieping:

Middels een vlizo trap is de zolder bereikbaar.
Grote open zolderruimte met opstelplaats van de cv-combiketel (Nefit) De zolder biedt momenteel veel bergruimte en er is de mogelijkheid tot het realiseren van een extra kamer.

Buiten:

De woning heeft zowel aan de voor- als achterzijde een ruime tuin. De achtertuin biedt veel privacy door het ontbreken van directe achterburen. Het sier bestrate terras is gelegen direct achter de woning en strekt zich uit over de gehele tuin die daarmee heerlijk onderhoudsarm te noemen is. Ook is hier de toegang tot een tweetal ruime bergingen welke momenteel ingericht zijn met vollieres.

De voortuin is fraai aangelegd en voorzien van eigen oprit die toegang verschaft tot de garage. De oprit is volledig bestraat met grote tegels en biedt tevens plaats voor het royaal parkeren van zeker 2 auto’s.

Bijzonderheden:

- Ruime 2/1-kapwoning met inpandig bereikbare garage.
- Aangebouwde overkapping welke later is dichtgemaakt (cv-verwarmd).
- Parkeren op eigen terrein.
- Woning gelegen vlakbij het centrum van Oosterhout vlakbij diverse voorzieningen.
- Leuke en privacy biedende achtertuin.
- Ruime bergingen voorzien van elektra en één ervan ook met water waardoor deze gebruikt kan worden als kantoor of mancave.
- Oplevering in overleg.

Algemeen:
- Bij een verkoop wordt als basis gebruik gemaakt van het model van de koopovereenkomst, vastgesteld door de Nederlandse Vereniging van Makelaars in onroerende goederen NVM, de Consumentenbond en de Vereniging Eigen Huis. In deze koopovereenkomst wordt standaard de verplichting tot het storten van een waarborgsom of het stellen van een bankgarantie door de koper ter grootte van 10% van de koopsom opgenomen.
- Een koopovereenkomst komt tot stand onder de opschortende voorwaarde dat beide partijen de koopovereenkomst ondertekenen. Partijen kunnen derhalve noch aan een mondelinge overeenkomst, noch aan een schriftelijke bevestiging daarvan, rechten ontlenen.
- Deze brochure bestaat uit vrijblijvende informatie en is met de grootste zorg samengesteld, echter aan de inhoud van deze brochure kunnen geen rechten worden ontleend. Indelingstekeningen en maatvoeringen zijn slechts indicatief, kunnen afwijken van de werkelijke situatie en zijn uitsluitend bedoeld om een indruk te geven van de indeling.

Kenmerken

  • StatusVerkocht
  • Soort objectWoonhuis
  • Soort woningEengezinswoning
  • Type woningTwee onder één kapwoning
  • Bouwjaar1970
  • BouwvormBestaande bouw
  • LiggingenIn centrum, In woonwijk

Interesse in Sint Antoniusstraat 11?

Laat hieronder uw gegevens achter en onze makelaar zal contact met u opnemen. Wilt u niet wachten? Neem dan telefonisch contact op!

"*" geeft vereiste velden aan

Robert Benschop

Makelaar RM