Skip to content

Breda – Vermeerstraat 17

Verkocht o.v.

Vermeerstraat 17

Breda

Omschrijving

Over de volle breedte aan de achterzijde uitgebouwde, karakteristieke jaren ’30 tussenwoning, gelegen op een leuke locatie op korte afstand van het gezellige centrum van Breda. De woning is ingedeeld met een gezellige woonkamer en royale woonkeuken op de begane grond, 2 slaapkamers en een complete badkamer op de eerste verdieping en een multi-functionele zolder voorzien van een grote dakkapel en dakraam die via een vaste trap te bereiken is.

Bouwjaar: ca. 1938
Woonoppervlakte ca. 98 m²
inhoud: ca. 325 m³
perceel grootte: 112 m²
Aanvaarding: In onderling overleg

Ligging en omgeving
Deze woning is gelegen in de wijk Haagpoort/Boeimeer in een fijne buurt in de geliefde Vermeerstraat, een sfeervolle straat met karakter en groen. Op slechts enkele fietsminuten afstand van het bruisende centrum van Breda, alsmede het Centraal Station van Breda. Er zijn diverse scholen, winkelcentrum en andere voorzieningen in de directe buurt. De verbinding ten opzichte van de uitvalswegen en snelwegen is uitstekend. Binnen een paar minuten bent u op de A16 en ook de A58 is snel te bereiken.

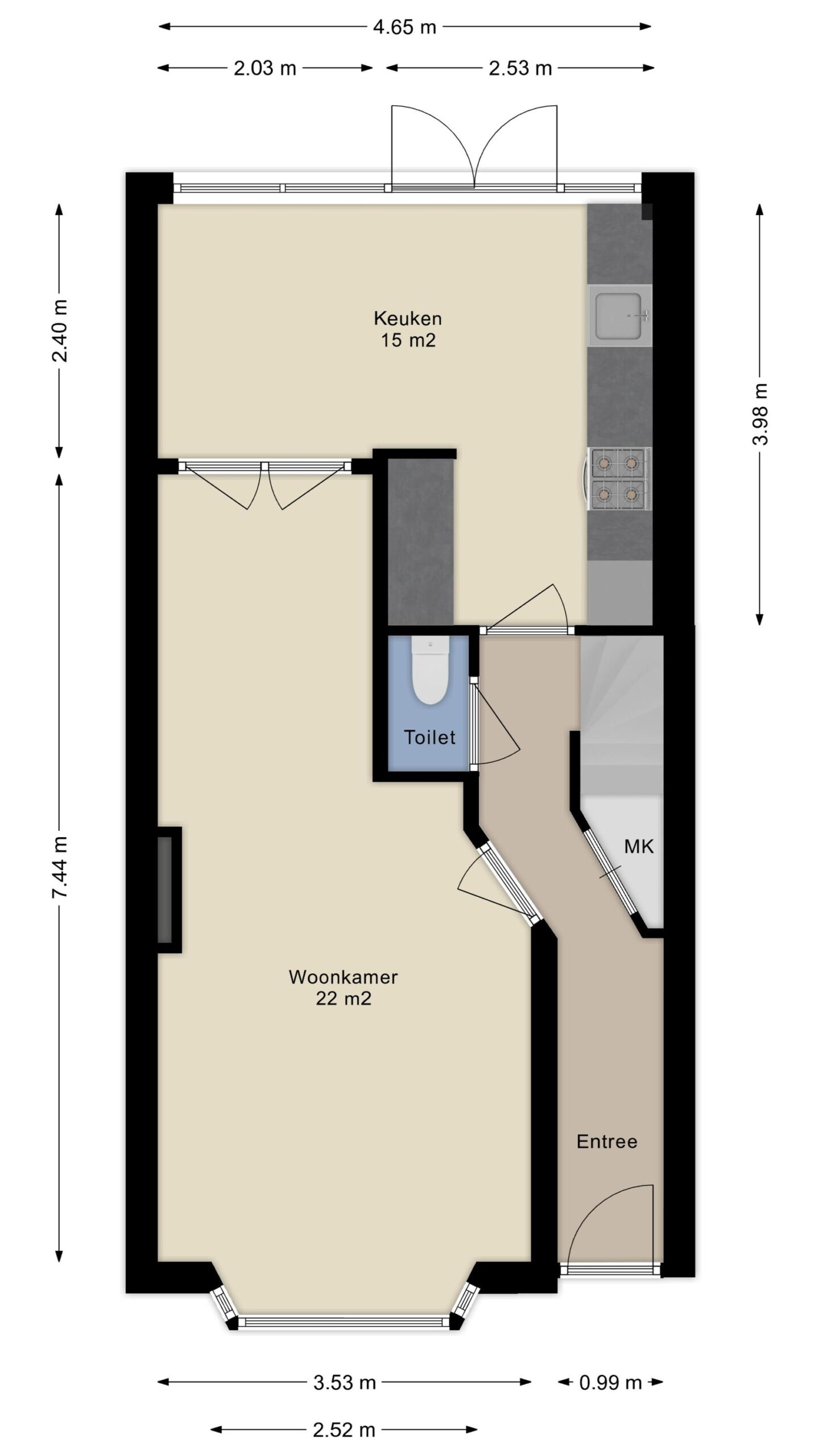
Begane grond:
Entree/hal met plavuizen vloer, trapopgang naar de eerste verdieping, praktische trapkast en een gedeeltelijk betegelde toiletruimte met toilet.

Royale leefruimte (ca. 37 m²) voorzien van lamell Eiken vloer, sierschouw en onderverdeeld in een: Woonkamer (ca. 22 m²) met een erker en een woonkeuken (ca. 15 m²) met openslaande deuren naar de achtertuin en een keukeninrichting voorzien van: 5 pits gaskookplaat, elektrische oven, afzuigkap, koel/vries combinatie, vaatwasser, close-in boiler en aansluitingen ten behoeve van de wasapparatuur. De woonkamer en woonkeuken zijn gescheiden van elkaar middels glas-in-lood deuren.

Eerste verdieping:
Overloop; slaapkamer achterzijde (ca. 3.00x4.50 m.) met laminaat vloer en airconditioning; slaapkamer voorzijde (ca. 2.40x4.30 m.) met parket vloer en een gedeeltelijk betegelde royale badkamer (ca. 2.30x3.40 m.) voorzien van ligbad met whirlpool installatie, separate douche, wastafel in meubel en wandcloset voorzien van inbouwreservoir.

Tweede verdieping:
Overloop; royale multi-functionele ruimte (ca. 12 m²) en een grote dakkapel aan de achterzijde van de woning, dakraam aan de voorzijde, vaste kast met opstelling CV-Combiketel en zonneboiler en voldoende bergruimte achter de knieschotten.

Achtertuin:
Gezellige stadstuin (ca. 4.20x5.00 m.) gunstig gesitiueerd op het zuiden en voorzien van sierbestrating en toegang tot een royale stenen berging (ca. 1.95x4.60 m.) voorzien van elektra en bereikbaar middels een achterom.

Parkeren:
Het is (vanaf oktober) betaald parkeren in de omgeving. Een bewoner kan een vergunning aanvragen via de gemeente. Momenteel is de (eerste) basisvergunning gratis en de (tweede) jaarvergunning ca. 8 euro per maand. Bezoek kan via bezoekerspas parkeren (dan betaal je ca. 0,25 cent per uur, met een maximum van 10 euro per maand, gaat via aanmelden kenteken via de park app)

Algemeen:
- De woning is voorzien van 8 zonnepanelen met een GoodWe omvormer.
- Op de tweede verdieping bevindt zich de zonneboiler van 80 liter.
- De hoofdslaapkamer is voorzien van airconditioning.
- Bij een verkoop wordt als basis gebruik gemaakt van het model van de koopovereenkomst, vastgesteld door de Nederlandse Vereniging van Makelaars in onroerende goederen NVM, de Consumentenbond en de Vereniging Eigen Huis. In deze koopovereenkomst wordt standaard de verplichting tot het storten van een waarborgsom of het stellen van een bankgarantie door de koper ter grootte van 10% van de koopsom opgenomen.
- Een koopovereenkomst komt tot stand onder de opschortende voorwaarde dat beide partijen de koopovereenkomst ondertekenen. Partijen kunnen derhalve noch aan een mondelinge overeenkomst, noch aan een schriftelijke bevestiging daarvan, rechten ontlenen.
- Deze vrijblijvende informatie is met de grootste zorg samengesteld, echter aan de inhoud hiervan kunnen geen rechten worden ontleend. Maatvoeringen zijn slechts indicatief en kunnen afwijken van de werkelijke situatie en zijn uitsluitend bedoeld om een indruk te geven van de indeling.

Kenmerken

  • StatusVerkocht o.v.
  • Vraagprijs€ 450.000,- k.k.
  • Soort objectWoonhuis
  • Soort woningEengezinswoning
  • Type woningTussenwoning
  • Bouwjaar1939
  • BouwvormBestaande bouw
  • LiggingenAan rustige weg, In woonwijk, Beschutte ligging

Interesse in Vermeerstraat 17?

Laat hieronder uw gegevens achter en onze makelaar zal contact met u opnemen. Wilt u niet wachten? Neem dan telefonisch contact op!

"*" geeft vereiste velden aan

Henk Lodewikus

Makelaar RM

Aangepaste openingstijden

Tijdens eerste kerstdag, tweede kerstdag en Nieuwjaarsdag zijn wij gesloten. Daarnaast zijn wij ook woensdagmiddag 24 december vanaf 12:30 uur en 31 december de hele dag gesloten. Daar buiten staan wij voor u klaar zoals u van ons gewend bent.

Fijne feestdagen! 

Team Van de Water