Skip to content

Breda – Isabellastraat 36

Omschrijving

INSTAPKLAAR !! (Alleen nog raam stoffering ophangen en heerlijk wonen)

In het recent opgeleverde nieuwbouwproject The Marker, midden in het centrum van historisch Breda, wacht dit prachtige 3-kamerappartement met straks een uniek uitzicht op "de Nieuwe Mark" op je. Dit nieuwe appartement biedt optimaal wooncomfort voor mensen die willen genieten van duurzaam wonen in het bruisende centrum van de stad.

Het appartementengebouw The Marker ligt aan de Markendaalseweg, die op termijn wordt heringericht tot een aantrekkelijke promenade waar de auto te gast is. De directe omgeving ondergaat de komende jaren een ware transformatie. Zo is gestart met de aanleg van "de Nieuwe Mark", die straks direct achter het gebouw langsloopt. Ook het terrein van de Seeligkazerne verandert in een groene oase met vijverpartij "Het Seeligpark". Dankzij deze ontwikkelingen woont u hier straks aan en met uitzicht op het water én bij een nieuw groen stadspark, op loopafstand van de Grote Markt met haar sfeervolle terrassen, winkels en restaurants.

Enkele highlights van het appartement:

Tweede verdieping
Voorzien van wand- en vloer-afwerking
Royale dubbele inloopdouche in luxe badkamer
Luxe keuken compleet met inbouwapparatuur.
Energielabel A+++

Bouwjaar: 2025
Woonoppervlakte: ca 120 m²
Externe bergruimte: ca 5 m²
balkon: ca 8 m²
Aanvaarding: In onderling overleg (op korte termijn mogelijk)

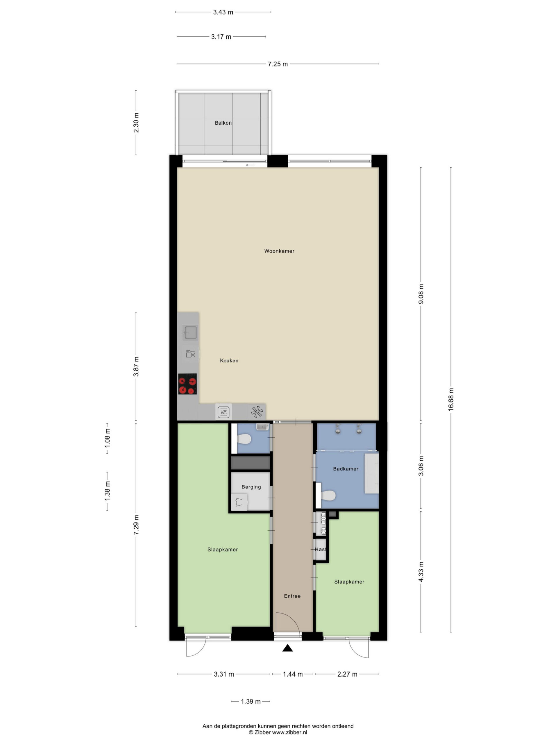
Indeling:

Begane grond:
Centrale entree met brievenbussen, video-intercom en toegang tot het trappenhuis en de liftinstallatie. De privé parkeerplaats met eigen laadpaal, bevindt zich in de parkeerkelder onder het gebouw. Tevens vind je daar je eigen berging; ideaal voor bijvoorbeeld fietsen of seizoensspullen.

Tweede verdieping:
Bij binnenkomst treedt u binnen in de ruime entree/hal die u toegang verleent tot alle vertrekken van het appartement. Hier vindt u tevens de meterkast en de opstelplaats voor de unit van de stadsverwarming. Het appartement is volledig voorzien van comfortabele vloerverwarming, wat zorgt voor een fijn binnenklimaat en een gelijkmatige warmteverdeling in alle ruimtes. De vloer is met uitzondering van het sanitair voorzien van een fraaie PVC vloerafwerking.

Woonkamer:
De riante living (ca. 66 m²) kent een prettige lichtinval dankzij de grote raampartijen die mooi uitzicht geven over de stad en straks "de Nieuwe Mark". De strakke afwerking draagt bij aan een rustige en moderne uitstraling. Vanuit de woonkamer heeft u direct toegang tot het gunstig op het westen gesitueerde balkon (ca. 8 m² ), een fijne buitenruimte waar u in alle rust kunt ontspannen. De luxe L-vormige keukeninrichting is compleet afgewerkt met hoogwaardige inbouwapparatuur.

Slaapkamer I
De hoofdslaapkamer (ca. 20 m²) is ruim van formaat en biedt voldoende ruimte voor een tweepersoonsbed en een nis welke ideaal is voor een walk-in closet.

Slaapkamer II
De tweede slaapkamer (ca. 9 m²) is veelzijdig te gebruiken. Ook deze kamer beschikt over een grote raampartij voor natuurlijke lichtinval.

Toilet
Het separate toilet is gedeeltelijk betegeld en voorzien van een wandcloset met fonteintje.

Badkamer
De badkamer (ca. 7 m²) is gedeeltelijk betegeld en ruim van opzet. voorzien van een ruime dubbele inloopdouche met draingoot, dubbele wastafel in meubel en een elektrische designradiator.

Technische ruimte / berging:
In de technische ruimte (ca. 2 m2) vindt u de opstelplaats voor de mechanische (balans)ventilatie, de verdeler van de vloerverwarming en de aansluitingen voor de wasapparatuur.

Parkeerplaats:
In de ondergelegen parkeerkelder, bereikbaar via de speedgate aan de Markendaalseweg, beschikt u over een eigen parkeerplaats met een eigen laadpaal ten behoeve van het opladen van een elektrische auto.

Berging:
Tot slot beschikt u over een eigen berging (ca. 5 m2) in de parkeergarage, ideaal voor het stallen van fietsen of het opbergen van overige spullen.

Bijzonderheden:
- Instapklaar en luxe afgewerkt;
- Straks fraai gelegen met uitzicht op "De Nieuwe Mark";
- Nieuwbouw appartement met een energielabel A+++;
- Privé parkeerplaats met laadpaal in de parkeerkelder;
- Comfortabel balkon als verlengstuk van de woonkamer;
- Volledige vloerverwarming in het gehele appartement;
- Aangesloten op duurzame stadsverwarming;
- Centrale ligging in het historische centrum van Breda.

ALGEMEEN:
- Als u een appartement koopt, wordt u automatisch lid van de Vereniging van Eigenaren (de VvE). De bijdrage voor deze vereniging ("de servicekosten") bedraagt ca. € 265,- per maand voor het appartement met parkeerplaats en berging. Deze bijdrage omvat onder meer de brandverzekering voor het complex, de opstalverzekering, onderhoud van de gemeenschappelijke ruimtes en liftinstallatie en reservering groot en klein onderhoud.
- Ter zake de herontwikkeling van de omgeving alsook de aanleg van "de Nieuwe Mark" en de herinrichting van de Markendaalseweg wordt verwezen naar de bestemmingsplannen en gebiedsvisies van de gemeente Breda.
- Bij een aan-/-verkoop wordt gebruik gemaakt van het model van de koopovereenkomst, vastgesteld door de Nederlandse Vereniging van Makelaars in onroerende goederen NVM, de Consumentenbond en de Vereniging Eigen Huis. In deze koopovereenkomst wordt standaard de verplichting tot het storten van een waarborgsom of het stellen van een bankgarantie door de koper ter grootte van 10% van de koopsom opgenomen.
- Een koopovereenkomst komt tot stand onder de opschortende voorwaarde dat beide partijen de koopakte ondertekenen. Partijen kunnen derhalve aan een mondelinge overeenkomst geen rechten en plichten ontlenen.
-Verkoper attendeert koper uitdrukkelijk op het feit, dat hij het verkochte nooit zelf feitelijk heeft gebruikt en dat hij derhalve koper niet heeft kunnen informeren over de eigenschappen c.q. gebreken aan het verkochte waarvan hij op de hoogte zou zijn geweest indien verkoper het verkochte zelf feitelijk zou hebben gebruikt.
- Deze vrijblijvende informatie is met de grootste zorg samengesteld, echter aan de inhoud hiervan kunnen geen rechten worden ontleend. Indelingstekeningen en maatvoeringen zijn slechts indicatief, kunnen afwijken van de werkelijke situatie en zijn uitsluitend bedoeld om een indruk te geven van de indeling.

Kenmerken

  • StatusBeschikbaar
  • Vraagprijs€ 785.000,- k.k.
  • Soort objectAppartement
  • Bouwjaar2025
  • BouwvormBestaande bouw
  • LiggingenAan water, In centrum, Vrij uitzicht, Aan vaarwater

Interesse in Isabellastraat 36?

Laat hieronder uw gegevens achter en onze makelaar zal contact met u opnemen. Wilt u niet wachten? Neem dan telefonisch contact op!

"*" geeft vereiste velden aan

Henk Lodewikus

Makelaar RM

Aangepaste openingstijden

Tijdens eerste kerstdag, tweede kerstdag en Nieuwjaarsdag zijn wij gesloten. Daarnaast zijn wij ook woensdagmiddag 24 december vanaf 12:30 uur en 31 december de hele dag gesloten. Daar buiten staan wij voor u klaar zoals u van ons gewend bent.

Fijne feestdagen! 

Team Van de Water