Skip to content

Berkel-Enschot – Erasmuslaan 6

Verkocht

Erasmuslaan 6

Berkel-Enschot

Omschrijving

In een rustige straat met eenrichtingsverkeer en veel volwassen bomen en groen bieden wij u deze ruime en instapklare middenwoning met twee dakkapellen en een prachtige afsluitbare veranda in de achtertuin.

De mogelijkheid bestaat tot aankoop van een losse garagebox (niet in de koopsom inbegrepen) die in de directe omgeving is gelegen.

De woning is goed onderhouden en vanaf 2017 compleet gemoderniseerd. Zo zijn de volgende zaken aangepakt:

- 2017: nieuwe keuken
- 2018: nieuwe toiletruimte en badkamer
- 2020: tuin opnieuw aangelegd en de riolering vernieuwd
- 2021: veranda geplaatst, begane grond vloer geïsoleerd, voor- en achtergevel gestraald, twee dakkapellen geplaatst, kunststof kozijnen en de dakpannen vernieuwd.

Een erg complete woning dus!

De woning is voorzien van muurisolatie, vloerisolatie en dubbele beglazing. Hierdoor heeft de woning een groen energielabel B!

De woning is op de begane grond onder andere voorzien van een sfeervolle woonkamer met semi open keuken. De moderne en uitgebreide keukeninrichting is van alle gemakken voorzien. Op de eerste verdieping zijn drie ruime slaapkamers en een moderne en complete badkamer aanwezig. Via een vaste trap is de tweede verdieping te bereiken die naast een ruime voorzolder een grote en lichte vierde slaapkamer met twee dakkapellen heeft. In de achtertuin zijn een grote veranda, stenen berging en achterom aanwezig.

De ligging is ideaal: de woning ligt in een prachtige, groene en rustige straat met veel volwassen bomen. De locatie is erg kindvriendelijk en op loopafstand van diverse scholen en sportvoorzieningen. De prachtige nieuwe dorpskern is daarnaast binnen 5 minuten op de fiets te bereiken met een zeer gevarieerd winkelaanbod waaronder een Albert Heijn, Aldi en Jumbo, speciaalzaken, restaurants en een gezondheidscentrum.
Het centrum van Tilburg is vlot bereikbaar via de Bosscheweg en de A65 en A58 richting de omliggende steden ’s-Hertogenbosch, Eindhoven en Breda zijn tevens binnen enkele minuten bereikbaar. Voor degenen die graag de natuur opzoeken voor een mooie wandeling of fietstocht kunnen zowel naar de Loonse en Drunense Duinen als naar de Oisterwijkse bossen en vennen.

Bouwjaar: ca. 1972
Inhoud: ca. 455m³
Perceeloppervlakte: 186m²
Aanvaarding: In overleg

Indeling

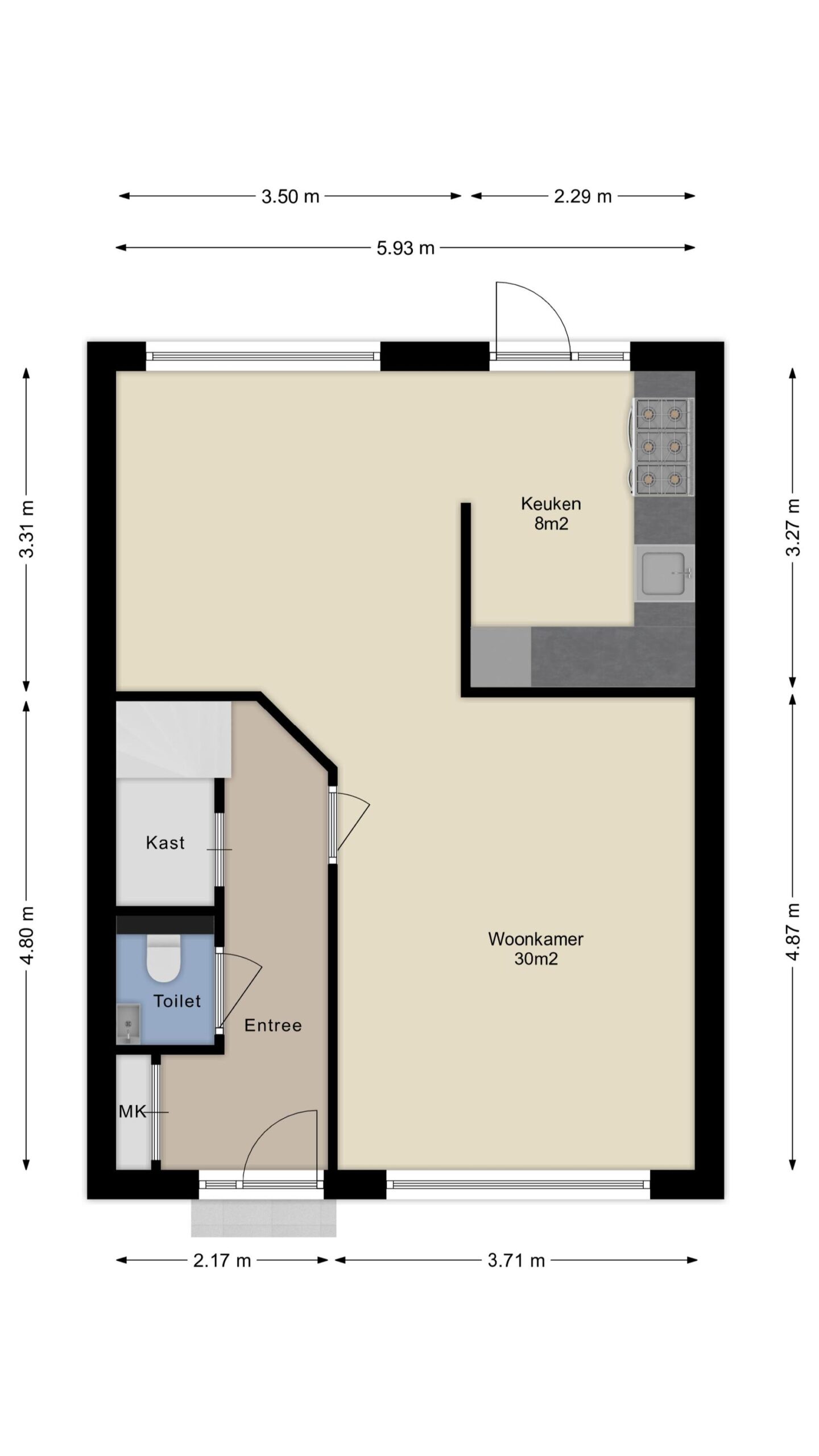
Begane grond
Entree, ruime hal met tegelvloer, praktische trapkast en meterkast. In de hal is daarnaast een moderne toiletruimte aanwezig (2018) voorzien van een vrij hangend toilet met fontein.

De hal geeft toegang tot de woonkamer en trapopgang naar de eerste verdieping.

Sfeervolle woonkamer circa 38m² (inclusief keuken) met teak houten vloer, structuur wandafwerking en een radiator ombouw.

Aan de achterzijde van de woning is de semi open keuken gelegen met een moderne keukeninrichting (2017) in hoekopstelling. De keukeninrichting is voorzien van granieten blad, 5-pits gasstel met oven, afzuigkap, koel-/ vriescombinatie en een vaatwasser. Via een deur is de achtertuin te bereiken.

Eerste verdieping
Overloop met laminaatvloer en die toegang geeft tot drie ruime slaapkamers en de badkamer.

Voorslaapkamer circa 14m², achterslaapkamer circa 12m² en een achterslaapkamer circa 11m². Alle slaapkamers zijn voorzien van een laminaatvloer en structuur wandafwerking.

Moderne badkamer (2018) voorzien van een dubbele vaste wastafel met meubel, ligbad met thermostaat kraan, douche met regendouche en thermostaat kraan, vrij hangend toilet en een design radiator.

Tweede verdieping
Via een vaste trap is de voorzolder te bereiken met laminaatvloer, Velux dakraam, de c.v. combi ketel (Remeha Avanta circa 2007), de aansluitingen voor de wasapparatuur en bergruimte onder de dakschuinte.
Twee schuifdeuren geven toegang tot een vierde slaapkamer.

Sfeervolle en ruime zolderslaapkamer circa 21m² met zowel aan de voor- als achterzijde een kunststof dakkapel (beide van 2021) en een laminaatvloer.

Buiten
Via de fraai aangelegde voortuin is de entree van de woning te bereiken.

De fraai aangelegde achtertuin (2020) ligt op het noord westen. In de achtertuin zijn een groot terras, kunstgras en een buitendouche aanwezig.

Achterin de tuin is een prachtige en middels glazen schuifpanelen afsluitbare houten veranda (2021) aanwezig. Deze grote veranda circa ..m² is voorzien van een houtkachel (ter overname) en biedt zicht op de achtertuin. Hier kunt u zowel op warme als op koude dagen heerlijk vertoeven!

Vanuit de veranda is een stenen berging (voorzien van elektra) te bereiken en de achterom.

Algemeen
- Instapklare middenwoning met prachtige veranda.
- Twee dakkapellen.
- De woning is voorzien van kunststof kozijnen met dubbele beglazing en draai-/ kiepramen.
- Energielabel B.
- De woning is ideaal gelegen nabij alle voorzieningen.
- In de straat is volop openbare parkeergelegenheid aanwezig.
- Bij een verkoop wordt als basis gebruik gemaakt van het model van de koopovereenkomst, vastgesteld door de Nederlandse Vereniging van Makelaars in onroerende goederen NVM, de Consumentenbond en de Vereniging Eigen Huis. In deze koopovereenkomst wordt standaard de verplichting tot het storten van een waarborgsom of het stellen van een bankgarantie door de koper ter grootte van 10% van de koopsom opgenomen.
- Een koopovereenkomst komt tot stand onder de opschortende voorwaarde dat beide partijen de koopovereenkomst ondertekenen. Partijen kunnen derhalve noch aan een mondelinge overeenkomst, noch aan een schriftelijke bevestiging daarvan, rechten ontlenen.
- Deze brochure bestaat uit vrijblijvende informatie en is met de grootste zorg samengesteld, echter aan de inhoud van deze brochure kunnen geen rechten worden ontleend. Indelingstekeningen en maatvoeringen zijn slechts indicatief, kunnen afwijken van de werkelijke situatie en zijn uitsluitend bedoeld om een indruk te geven van de indeling.

Kenmerken

  • StatusVerkocht
  • Soort objectWoonhuis
  • Soort woningEengezinswoning
  • Type woningTussenwoning
  • Bouwjaar1972
  • BouwvormBestaande bouw
  • LiggingenAan rustige weg, In woonwijk

Interesse in Erasmuslaan 6?

Laat hieronder uw gegevens achter en onze makelaar zal contact met u opnemen. Wilt u niet wachten? Neem dan telefonisch contact op!

"*" geeft vereiste velden aan

Paul Hulskes

Makelaar RM

Aangepaste openingstijden

Tijdens eerste kerstdag, tweede kerstdag en Nieuwjaarsdag zijn wij gesloten. Daarnaast zijn wij ook woensdagmiddag 24 december vanaf 12:30 uur en 31 december de hele dag gesloten. Daar buiten staan wij voor u klaar zoals u van ons gewend bent.

Fijne feestdagen! 

Team Van de Water