Skip to content

Type L

Omschrijving

Type L

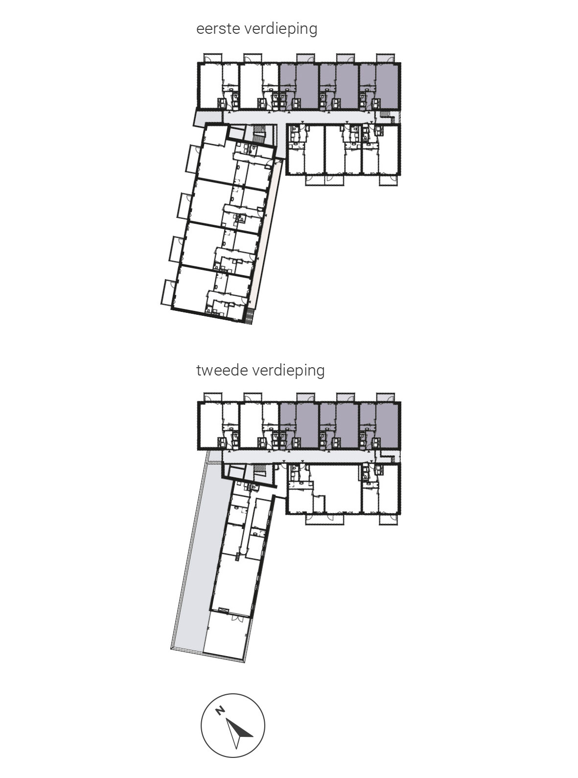
Portiekflat

Woningnummer 14 t/m 16 en 25 t/m 27
Eerste en tweede verdieping

Aan de Sweelinckstraat komen drie lagen met negentien appartementen in het betaalbare segment. Deze krijgen een woonoppervlak van ongeveer 50 m2 met één slaapkamer. Deze compacte appartementen zijn bijvoorbeeld interessant als starterswoning.

Bijzonderheden:
- gebruiksoppervlakte: 50 m2
- balkon 4 m2
- gezamenlijke fietsenberging
- aparte ruimte wasmachine/droger
- slaap- en badkamer gekoppeld
- 1 slaapkamer
- separaat toilet
- 1 toegewezen privé parkeerplaats
- energielabel A+++
- bereikbaar met lift
- zonligging: noordoost

Kenmerken

  • StatusONDER_OPTIE
  • Prijs€ 265.000,- t/m € 265.000,-
  • Aantal bouwnummers6
  • ObjecttypeAppartement
  • LiggingenIn woonwijk

Bouwnummers

Verkocht o.v.

Sweelinckhout 26

4904 MA Oosterhout

Verkocht o.v.

Sweelinckhout 14

4904 MA Oosterhout

Verkocht o.v.

Sweelinckhout 15

4904 MA Oosterhout

Verkocht o.v.

Sweelinckhout 27

4904 MA Oosterhout

Verkocht o.v.

Sweelinckhout 16

4904 MA Oosterhout

Verkocht o.v.

Sweelinckhout 25

4904 MA Oosterhout

Interesse in Type L

"*" geeft vereiste velden aan

Vestiging Oosterhout

Keiweg 24

4901 JA Oosterhout

(0162) 447 447

Aangepaste openingstijden

Tijdens eerste kerstdag, tweede kerstdag en Nieuwjaarsdag zijn wij gesloten. Daarnaast zijn wij ook woensdagmiddag 24 december vanaf 12:30 uur en 31 december de hele dag gesloten. Daar buiten staan wij voor u klaar zoals u van ons gewend bent.

Fijne feestdagen! 

Team Van de Water